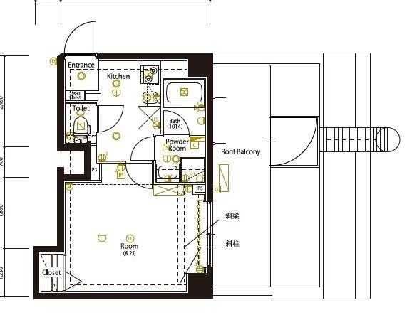
賃貸マンション
マーロ千住クレストタップⅡ
NEW-
東京都足立区千住曙町 MAP
-
- 京成本線 「京成関屋駅」 徒歩1分
- 築年月
- 2023年3月
- 構造
- 鉄筋コンクリート造
- 階数/戸数
- 地上8階建て / -
- 管理形態
- -
- 建物設備
- オートロック/分譲マンションタイプ
- 管理会社
- -
- 施工会社
- -
更新日:2025年11月6日
マーロ千住クレストタップⅡの他の空室物件
1
件
お問い合わせお待ちしております!
マーロ千住クレストタップⅡの近隣物件
生活情報
足立区の暮らしデータ
足立区は、荒川をはじめとした水辺や区内に点在する公園の緑などの自然環境が豊かな街で、江戸四宿の一つである千住や西新井大師などの古き良き時代の香りが今なお残っています。近年は、駅前などの拠点整備や大学の開設が進み、伝統と新しさが融合した新たな魅力が生まれ、若者を中心に多くの人々で賑わう活気あふれる都市へと進化しています。
基本データ
| 市区役所所在地 | 足立区中央本町1-17-1 |
|---|---|
| 公式ホームページURL | https://www.city.adachi.tokyo.jp// |
| 総人口 | 695,043人 |
| 人口増減率(2015年/2020年) | 103.7% |
地域のおすすめ情報ブログ
一覧を見る
-
ラーレ西新井こちらの物件は、西新井駅から徒歩5分ほどの場所にある1K物件です!築年数も浅く、設備も整っており、非常にお勧めできる物件です!物...続きを読む -
ドエル西伊興弐番館今回ご紹介させていただく物件は、「ドエル西伊興弐番館」です!こちらの物件は舎人公園から近くにある、1K物件です!敷地内には駐車場...続きを読む -
第2パルメゾン今回ご紹介させていただく物件は「第2パルメゾン」です!こちらの物件は見沼代親水公園駅から歩いてすぐの2LDKです。駐車場もバイク...続きを読む -
ピースオブマイン今回ご紹介させていただく物件は、「ピースオブマイン」です!こちらの物件は竹ノ塚が最寄りの1K物件になります。南向きの非常に日当た...続きを読む
取扱店舗
株式会社エスケイ・コミュニティー
- 交通
- JR山手線「新宿」駅徒歩6分都営大江戸線「新宿西口」駅徒歩2分
- 営業時間
- 09:30 〜 18:30
- 定休日
- 毎週水曜日・2月・3月は無休、夏季休暇無し・年末年始