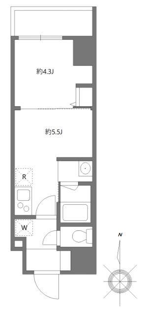
賃貸マンション
ハーモニーレジデンスグローバルキャピタル
NEW-
東京都台東区竜泉1丁目 MAP
-
- 東京メトロ日比谷線 「入谷駅」 徒歩5分 / つくばエクスプレス 「浅草駅」 徒歩14分
- 築年月
- 2023年11月
- 構造
- 鉄筋コンクリート造
- 階数/戸数
- 地上14階建て / 75戸
- 管理形態
- -
- 建物設備
- オートロック/宅配BOX/分譲マンションタイプ
- 管理会社
- 株式会社シノケンファシリティーズ 03-6860-3110
- 施工会社
- -
更新日:2025年11月20日
ハーモニーレジデンスグローバルキャピタルの他の空室物件
1
件
お問い合わせお待ちしております!
ハーモニーレジデンスグローバルキャピタルの近隣物件
生活情報
台東区の暮らしデータ
台東区は、東京23区のほぼ中心に位置し、面積10.11km2、西は上野の山、東は隅田川に接した典型的な下町で、面積は23区中で最も小さい区です。東京の北の玄関として交通の要所になっているほか、伝統、歴史、芸術などの豊かな文化資源を有し、四季折々の多彩な行事を通じて多くの来街者があります。
基本データ
| 市区役所所在地 | 台東区東上野4-5-6 |
|---|---|
| 公式ホームページURL | https://www.city.taito.lg.jp// |
| 総人口 | 211,444人 |
| 人口増減率(2015年/2020年) | 106.8% |
地域のおすすめ情報ブログ
一覧を見る
-
下町の商店街こんにちは!ピタットハウス浅草橋店の井澤です。今回ご紹介させていただくのは、鳥越神社のすぐそばにある「おかず横丁」です!今でも長...続きを読む -
西口駅前の人気パン屋さんこんにちは!ピタットハウス浅草橋店の井澤です!今回ご紹介させていただくのは、浅草橋西口駅前の「東京メロンパン」さんです!こちらの...続きを読む -
下町のハンドメイド雑貨屋さんこんにちは!ピタットハウス浅草橋店の井澤です。今回ご紹介させていただくのは、浅草駅から徒歩2分の「ArtsquareAsakus...続きを読む -
蔵前の人気ケーキ屋さんこんにちは!ピタットハウス浅草橋店の井澤です。今回ご紹介させていただくのは、蔵前駅から徒歩3分の「patisserieFOBS(...続きを読む
取扱店舗
株式会社エスケイ・コミュニティー
- 交通
- JR山手線「新宿」駅徒歩6分都営大江戸線「新宿西口」駅徒歩2分
- 営業時間
- 09:30 〜 18:30
- 定休日
- 毎週水曜日・2月・3月は無休、夏季休暇無し・年末年始