駐車場
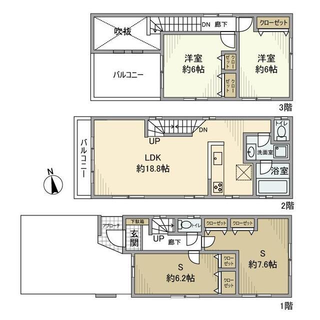
荒川戸建
NEW-
東京都荒川区荒川1丁目
-
- 東京メトロ日比谷線 「三ノ輪駅」 徒歩9分 / JR常磐線 「三河島駅」 徒歩10分
- 築年月
- 2012年9月
- 構造
- 木造
- 階数/戸数
- 地上3階建て / -
- 管理形態
- -
- 建物設備
- -
- 管理会社
- -
- 施工会社
- -
更新日:2026年1月18日
荒川戸建の他の空室物件
1
件
お問い合わせお待ちしております!
生活情報
荒川区の暮らしデータ
荒川区は、東京都の北東部に位置する、人口約22万人の街です。古くからの歴史や下町風情を随所に残しつつ、新しいまちづくりも進み、懐かしさと新しさが混ざり合う、個性と魅力あふれるまちです。「世代をつなぐ」「地域をつなぐ」「みんなの力をつなぐ」をテーマに、子育てしやすい環境や健康づくりの取組のほか、誰もが安心して暮らせるまちづくりを進めるとともに、区民一人ひとりが輝く、活力のある持続可能な街を目指しています。
基本データ
| 市区役所所在地 | 荒川区荒川2-2-3 |
|---|---|
| 公式ホームページURL | https://www.city.arakawa.tokyo.jp// |
| 総人口 | 217,475人 |
| 人口増減率(2015年/2020年) | 102.5% |
地域のおすすめ情報ブログ
一覧を見る
-
藤の湯こんにちは!ピタットハウス日暮里店の横尾です♪今回は藤の湯さんをご紹介させて頂きます。●住所:荒川区荒川3-16-4●TEL:0...続きを読む -
帝国湯こんにちは!ピタットハウス日暮里店の横尾です♪今回は帝国湯さんをご紹介させて頂きます。●住所:荒川区東日暮里3-22-3●TEL...続きを読む -
斎藤湯こんにちは!ピタットハウス日暮里店の横尾です♪今回は斎藤湯さんをご紹介させて頂きます。荒川区とりわけ日暮里、三河島エリアは銭湯が...続きを読む -
日暮里餃子定食こんにちは!ピタットハウス日暮里店の横尾です♪明けましておめでとうございます。2026年度も宜しくお願い致します。2026年度1...続きを読む
取扱店舗
株式会社エスケイ・コミュニティー
- 交通
- JR山手線「新宿」駅徒歩6分都営大江戸線「新宿西口」駅徒歩2分
- 営業時間
- 09:30 〜 18:30
- 定休日
- 毎週水曜日・2月・3月は無休、夏季休暇無し