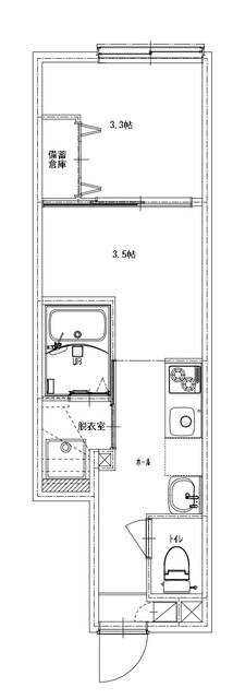
賃貸アパート
ソルナクレイシア荻窪Ⅲ
NEW-
東京都杉並区天沼3丁目 MAP
-
- JR総武・中央緩行線 「荻窪駅」 徒歩3分
- 築年月
- 2025年12月
- 構造
- 重量鉄骨造
- 階数/戸数
- 地上3階建て / 12戸
- 管理形態
- -
- 建物設備
- -
- 管理会社
- -
- 施工会社
- -
更新日:2026年1月18日
ソルナクレイシア荻窪Ⅲの他の空室物件
1
件
お問い合わせお待ちしております!
ソルナクレイシア荻窪Ⅲの近隣物件
生活情報
杉並区の暮らしデータ
杉並区は、東京23区の最西部に位置し、地名は江戸時代の初めに領地の境である青梅街道に沿って植えられた杉並木が由来となっています。杉並木はなくなりましたが、村名、町名として採用され、1932年の区制施行を経て現在に至っています。関東大震災以降、農村的たたずまいから住宅地へと変貌を遂げ、文化人や学者が多数移住するなど、今日に至るまで良好な住宅都市として発展を続けています。
基本データ
| 市区役所所在地 | 杉並区阿佐谷南1-15-1 |
|---|---|
| 公式ホームページURL | https://www.city.suginami.tokyo.jp// |
| 総人口 | 591,108人 |
| 人口増減率(2015年/2020年) | 104.8% |
地域のおすすめ情報ブログ
一覧を見る
-
高円寺駅南口広場イルミネーションご無沙汰しております!ピタットハウス高円寺店です♪先日11月22日(土)当店が加盟している高円寺南商店会主催の「高円寺駅南口広場...続きを読む -
仕事は都心、暮らしは静かに都心へのアクセスは抜群!東京メトロ丸ノ内線「東高円寺」駅から新宿までわずか約6分。それでいて、駅周辺には大型商業施設が少なく、ど...続きを読む -
分譲賃貸マンション・ペット可【方南町】グループ650店舗のネットワークでお客様のお部屋探しをサポートする方南町唯一の大手不動産会社ピタットハウス方南町店です。お部屋の...続きを読む -
杉並区和泉のマーケット特性と単身者需要グループ650店舗のネットワークでお客様のお部屋探しをサポートする方南町唯一の大手不動産会社ピタットハウス方南町店です。【杉並区...続きを読む
取扱店舗
株式会社エスケイ・コミュニティー
- 交通
- JR山手線「新宿」駅徒歩6分都営大江戸線「新宿西口」駅徒歩2分
- 営業時間
- 09:30 〜 18:30
- 定休日
- 毎週水曜日・2月・3月は無休、夏季休暇無し