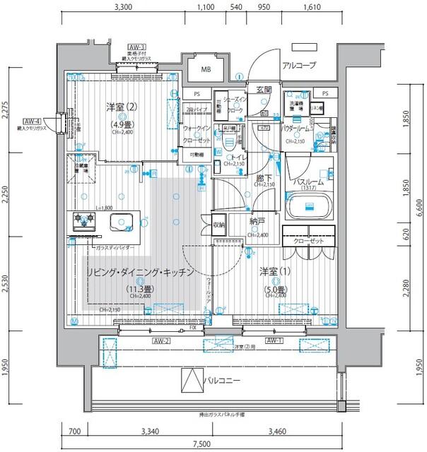
賃貸マンション
パレステージ上野入谷
NEW-
東京都台東区竜泉3丁目 MAP
-
- 東京メトロ日比谷線 「三ノ輪駅」 徒歩8分 / 東京メトロ日比谷線 「入谷駅」 徒歩9分
- 築年月
- 2022年3月
- 構造
- 鉄筋コンクリート造
- 階数/戸数
- 地上13階建て / -
- 管理形態
- -
- 建物設備
- オートロック/宅配BOX
- 管理会社
- -
- 施工会社
- -
更新日:2026年2月5日
パレステージ上野入谷の他の空室物件
1
件
お問い合わせお待ちしております!
パレステージ上野入谷の近隣物件
生活情報
台東区の暮らしデータ
台東区は、東京23区のほぼ中心に位置し、面積10.11km2、西は上野の山、東は隅田川に接した典型的な下町で、面積は23区中で最も小さい区です。東京の北の玄関として交通の要所になっているほか、伝統、歴史、芸術などの豊かな文化資源を有し、四季折々の多彩な行事を通じて多くの来街者があります。
基本データ
| 市区役所所在地 | 台東区東上野4-5-6 |
|---|---|
| 公式ホームページURL | https://www.city.taito.lg.jp// |
| 総人口 | 211,444人 |
| 人口増減率(2015年/2020年) | 106.8% |
地域のおすすめ情報ブログ
一覧を見る
-
台東区立初音児童遊園こんにちは!ピタットハウス日暮里店の横尾です♪今回は台東区立初音児童遊園についてご紹介させて頂きます。「初音児童遊園」は千駄木駅...続きを読む -
すたんどがっさんこんにちは!ピタットハウス日暮里店の横尾です♪今回はよみせ通り沿いにある「すたんどがっさん」をご紹介させて頂きます。よみせ通りに...続きを読む -
都内で自然と文化を感じれる場所こんにちは!ピタットハウス御茶ノ水店です♪今回ご紹介するのは「上野恩賜公園」です。◇上野恩賜公園とは◇1873年(明治6年)に太...続きを読む -
Calm Coffee ROASTERSこんにちは!ピタットハウス日暮里店の横尾です♪今回は谷中銀座商店街にある「CalmCoffeeROASTERS」をご紹介させてい...続きを読む
取扱店舗
株式会社エスケイ・コミュニティー
- 交通
- JR山手線「新宿」駅徒歩6分都営大江戸線「新宿西口」駅徒歩2分
- 営業時間
- 09:30 〜 18:30
- 定休日
- 毎週水曜日・2月・3月は無休、夏季休暇無し