賃貸マンション
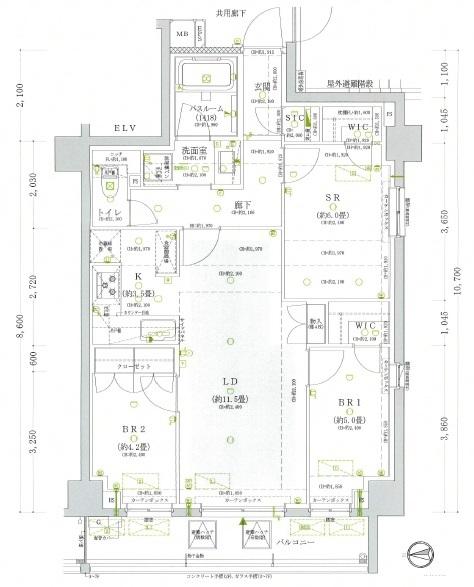
オープンハウスレジデンシア北綾瀬コート
-
東京都足立区谷中2丁目 MAP
-
- 東京メトロ千代田線 「北綾瀬駅」 徒歩3分
- 築年月
- 2025年11月
- 構造
- 鉄筋コンクリート造
- 階数/戸数
- 地上8階建て / -
- 管理形態
- -
- 建物設備
- オートロック
- 管理会社
- 株式会社オープンハウス合人社コミュニティ
- 施工会社
- -
更新日:2026年5月17日
オープンハウスレジデンシア北綾瀬コートの他の空室物件
1
件
お問い合わせお待ちしております!
オープンハウスレジデンシア北綾瀬コートの近隣物件
生活情報
足立区の暮らしデータ
足立区は、荒川をはじめとした水辺や区内に点在する公園の緑などの自然環境が豊かな街で、江戸四宿の一つである千住や西新井大師などの古き良き時代の香りが今なお残っています。近年は、駅前などの拠点整備や大学の開設が進み、伝統と新しさが融合した新たな魅力が生まれ、若者を中心に多くの人々で賑わう活気あふれる都市へと進化しています。
基本データ
| 市区役所所在地 | 足立区中央本町1-17-1 |
|---|---|
| 公式ホームページURL | https://www.city.adachi.tokyo.jp// |
| 総人口 | 695,043人 |
| 人口増減率(2015年/2020年) | 103.7% |
地域のおすすめ情報ブログ
一覧を見る
-
昔ながらの手作り豆腐!豆乳ソフトも!こんにちは!ピタットハウス西新井店新人の桑原です!みなさま、お豆腐はお好きですか?私は舌ざわりが滑らかで、どんな料理にも合う豆腐...続きを読む -
まったりたぬきと自家焙煎珈琲こんにちは!ピタットハウス西新井店新人の桑原です!本日私がご紹介させていただくお店は、日暮里舎人ライナー西新井大師西駅から徒歩5...続きを読む -
元祖タコさん滑り台公園・・・?こんにちは!ピタットハウス西新井店新人の桑原です!本日私がご紹介させていただくのは、「新西新井公園」です!こちらの公園は大師北参...続きを読む -
アンティークなカフェのキャロットケーキこんにちは!ピタットハウス北千住東口の庄野です。今回紹介するのは、北千住駅から徒歩6分ほどの『わかば堂製作所』です。細い路地裏に...続きを読む
取扱店舗
株式会社エスケイ・コミュニティー
- 交通
- JR線「新宿」駅西口より徒歩6分、都営大江戸線「新宿西口」駅D5出口より徒歩2分
- 営業時間
- 09:30 〜 18:30
- 定休日
- 毎週水曜日・2月3月は無休、夏季休暇無し・年末年始