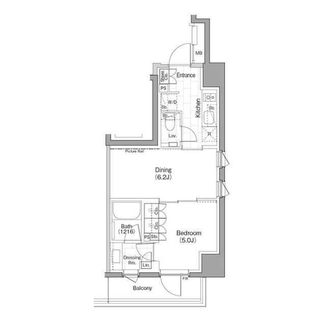
賃貸マンション
ザ・パークハビオ早稲田
NEW-
東京都新宿区早稲田町 MAP
-
- 東京メトロ東西線 「早稲田駅」 徒歩2分 / 都電荒川線 「早稲田駅」 徒歩9分
- 築年月
- 2018年3月
- 構造
- 鉄筋コンクリート造
- 階数/戸数
- 地上9階建て / 99戸
- 管理形態
- -
- 建物設備
- オートロック/宅配BOX
- 管理会社
- 三菱地所コミュニティ株式会社 プロパティ事業第二部
- 施工会社
- -
更新日:2026年3月21日
ザ・パークハビオ早稲田の他の空室物件
1
件
お問い合わせお待ちしております!
ザ・パークハビオ早稲田の近隣物件
生活情報
新宿区の暮らしデータ
新宿区は、1947年3月15日に旧四谷・旧牛込・旧淀橋の3区が統合し発足しました。東京23区のほぼ中央に位置し、面積は18.22km2。23区中13番目の広さです。歌舞伎町や西新宿などの繁華街を有する一方、緑豊かな新宿御苑や、情緒ある神楽坂、住宅街の落合など様々な特色を持つ都市です。
基本データ
| 市区役所所在地 | 新宿区歌舞伎町1-4-1 |
|---|---|
| 公式ホームページURL | https://www.city.shinjuku.lg.jp// |
| 総人口 | 349,385人 |
| 人口増減率(2015年/2020年) | 104.7% |
地域のおすすめ情報ブログ
一覧を見る
-
【四谷】地元で愛されるパティスリーこんにちは!ピタットハウス飯田橋店新人の角屋敷です。今回紹介させていただくお店は「MOCHI」さんです!四ツ谷駅から徒歩7分、曙...続きを読む -
【牛込柳町】栄養満点のジュースが飲める!こんにちは!ピタットハウス飯田橋店の角屋敷です!今回は牛込柳町エリアでおすすめのスムージーショップをご紹介します。牛込柳町から徒...続きを読む -
【神楽坂】想いのこもった美味しいコーヒーこんにちは!ピタットハウス飯田橋店新人の角屋敷です。今回紹介させていただくお店は「AKHAAMACOFFEEKAGRAZAKA」...続きを読む -
【神楽坂】店長は猫ちゃん!?こんにちは!ピタットハウス飯田橋店の角屋敷です。今回は、神楽坂にある着物・雑貨店の「ふくねこ堂」さんをご紹介します♪お店の名前に...続きを読む
取扱店舗
株式会社エスケイ・コミュニティー
- 交通
- JR山手線「新宿」駅徒歩6分都営大江戸線「新宿西口」駅徒歩2分
- 営業時間
- 09:30 〜 18:30
- 定休日
- 毎週水曜日・2月・3月は無休、夏季休暇無し