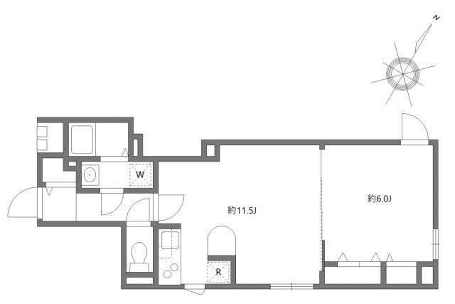
賃貸マンション
エルファーロ目黒Ⅰ
-
東京都目黒区下目黒2丁目 MAP
-
- JR山手線 「目黒駅」 徒歩7分 / 東急目黒線 「不動前駅」 徒歩11分
- 築年月
- 2023年11月
- 構造
- 鉄筋コンクリート造
- 階数/戸数
- 地上4階建て / 12戸
- 管理形態
- -
- 建物設備
- オートロック/宅配BOX
- 管理会社
- 株式会社S-FITパートナーズ
- 施工会社
- -
更新日:2026年5月19日
エルファーロ目黒Ⅰの他の空室物件
1
件
お問い合わせお待ちしております!
エルファーロ目黒Ⅰの近隣物件
生活情報
目黒区の暮らしデータ
目黒区は、東京23区の南西部にあり、区内は台地の中を二つの川の谷が走り、起伏の多い地形です。1932年に目黒町と碑衾町が合併し誕生した、山の手の緑ある良好な住宅地です。世論調査でも、「住み続けたい」という人が90%を超える、良好な住環境が特徴です。
基本データ
| 市区役所所在地 | 目黒区上目黒2-19-15 |
|---|---|
| 公式ホームページURL | https://www.city.meguro.tokyo.jp// |
| 総人口 | 288,088人 |
| 人口増減率(2015年/2020年) | 103.8% |
地域のおすすめ情報ブログ
一覧を見る
-
肉汁あふれるふっくらハンバーグ♪こんにちは!ピタットハウス自由が丘店新人の佐藤です!(^^)!今回ご紹介するのは、自由が丘駅から徒歩約3分の【山本のハンバーグ自...続きを読む -
緑に癒される、柿の木坂さんぽ♪こんにちは!ピタットハウス自由が丘店新人の佐藤です!(^^)!今回ご紹介するのは、目黒区にある【呑川柿の木坂支流緑道】です!東急...続きを読む -
昔ながらの雰囲気が魅力!こんにちは!ピタットハウス自由が丘店新人の佐藤です!(^^)!今回ご紹介するのは自由が丘の【ひかり街】、【サンリキ会】です!「自...続きを読む -
毎日に寄り添う、身近な公園 ♪こんにちは!ピタットハウス自由が丘店新人の佐藤です!(^^)!今回ご紹介するのは、自由が丘駅から徒歩約8分ほどの距離にある【緑ケ...続きを読む
取扱店舗
株式会社エスケイ・コミュニティー
- 交通
- JR線「新宿」駅西口より徒歩6分、都営大江戸線「新宿西口」駅D5出口より徒歩2分
- 営業時間
- 09:30 〜 18:30
- 定休日
- 毎週水曜日・2月3月は無休、夏季休暇無し・年末年始