賃貸マンション
GENOVIA学芸大学
NEW-
東京都目黒区目黒本町2丁目
-
- 東急東横線 「学芸大学駅」 徒歩12分 / 東急目黒線 「武蔵小山駅」 徒歩20分
- 築年月
- 2023年6月
- 構造
- 鉄筋コンクリート造
- 階数/戸数
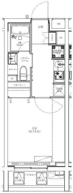
- 地上5階建て / 33戸
- 管理形態
- -
- 建物設備
- オートロック/宅配BOX
- 管理会社
- 株式会社グッドコム 本店
- 施工会社
- -
更新日:2026年4月4日
GENOVIA学芸大学の他の空室物件
1
件
お問い合わせお待ちしております!
生活情報
目黒区の暮らしデータ
目黒区は、東京23区の南西部にあり、区内は台地の中を二つの川の谷が走り、起伏の多い地形です。1932年に目黒町と碑衾町が合併し誕生した、山の手の緑ある良好な住宅地です。世論調査でも、「住み続けたい」という人が90%を超える、良好な住環境が特徴です。
基本データ
| 市区役所所在地 | 目黒区上目黒2-19-15 |
|---|---|
| 公式ホームページURL | https://www.city.meguro.tokyo.jp// |
| 総人口 | 288,088人 |
| 人口増減率(2015年/2020年) | 103.8% |
地域のおすすめ情報ブログ
一覧を見る
-
都立大学 桜と賑わいの一日東急東横線・都立大学駅前で開催された「桜まつり」に参加してきました。一昨年・昨年とあいにくの天気が続いていましたが、今年はしっか...続きを読む -
量も質も裏切らない焼肉東急東横線・都立大学駅から徒歩数分。閑静な住宅街の中にひっそりと佇む焼肉店??それが黒毛和牛焼肉七甲山都立大学店です。外観は落ち...続きを読む -
九品仏緑道の魅力をご紹介♪こんにちは!ピタットハウス自由が丘店の神田です!東京・自由が丘から九品仏にかけてゆるやかに続く「九品仏緑道」は、都会の中にありな...続きを読む -
ThanksLiberty2025♪こんにちは!ピタットハウス自由が丘店の神田です!イベントが多い自由が丘ですが、本日はThanksLibertyのお祭りがありまし...続きを読む
取扱店舗
株式会社エスケイ・コミュニティー
- 交通
- JR線「新宿」駅西口より徒歩6分、都営大江戸線「新宿西口」駅D5出口より徒歩2分
- 営業時間
- 09:30 〜 18:30
- 定休日
- 毎週水曜日・2月・3月は無休、夏季休暇無し