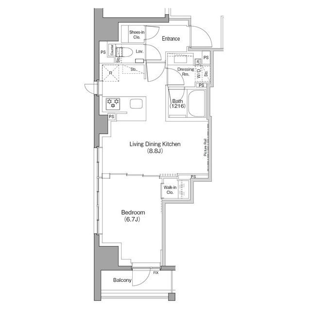
賃貸マンション
ザ・パークハビオ日本橋箱崎町
NEW-
東京都中央区日本橋箱崎町 MAP
-
- 東京メトロ半蔵門線 「水天宮前駅」 徒歩5分 / 東京メトロ東西線 「茅場町駅」 徒歩7分
- 築年月
- 2018年2月
- 構造
- 鉄筋コンクリート造
- 階数/戸数
- 地上11階建て / 50戸
- 管理形態
- -
- 建物設備
- オートロック/宅配BOX
- 管理会社
- 三菱地所コミュニティ株式会社 プロパティ事業第二部
- 施工会社
- -
更新日:2026年4月6日
ザ・パークハビオ日本橋箱崎町の他の空室物件
1
件
お問い合わせお待ちしております!
ザ・パークハビオ日本橋箱崎町の近隣物件
生活情報
中央区の暮らしデータ
中央区は、江戸以来、400年以上にわたって日本の文化・商業・情報の中心として発展してきた由緒あるまちです。1947年に日本橋区と京橋区が統合され、現在の中央区が誕生しました。面積はわずか約10km2ですが、美しい水辺の景観や全国的に有名な「銀座」「日本橋」「築地」「月島」など魅力的なスポットを擁する、「遊」「職」「住」の三拍子そろった活気と魅力にあふれる都心のまちです。
基本データ
| 市区役所所在地 | 中央区築地1-1-1 |
|---|---|
| 公式ホームページURL | https://www.city.chuo.lg.jp// |
| 総人口 | 169,179人 |
| 人口増減率(2015年/2020年) | 119.8% |
地域のおすすめ情報ブログ
一覧を見る
取扱店舗
株式会社エスケイ・コミュニティー
- 交通
- JR線「新宿」駅西口より徒歩6分、都営大江戸線「新宿西口」駅D5出口より徒歩2分
- 営業時間
- 09:30 〜 18:30
- 定休日
- 毎週水曜日・2月・3月は無休、夏季休暇無し