賃貸マンション
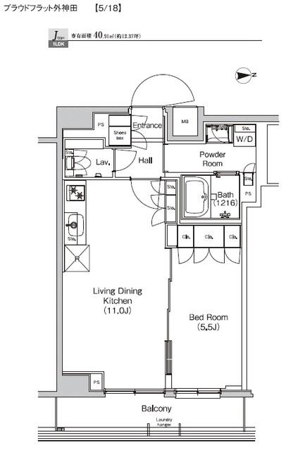
プラウドフラット外神田
NEW-
東京都千代田区外神田2丁目 MAP
-
- JR山手線 「秋葉原駅」 徒歩7分 / JR中央本線 「御茶ノ水駅」 徒歩8分
- 築年月
- 2016年4月
- 構造
- 鉄筋コンクリート造
- 階数/戸数
- 地上11階建て / 75戸
- 管理形態
- -
- 建物設備
- オートロック/宅配BOX
- 管理会社
- 野村不動産パートナーズ株式会社
- 施工会社
- -
更新日:2026年4月6日
プラウドフラット外神田の他の空室物件
1
件
お問い合わせお待ちしております!
プラウドフラット外神田の近隣物件
生活情報
千代田区の暮らしデータ
千代田区は、1947年3月15日に麹町区と神田区が統合されて誕生しました。千代田という区名は、江戸城の別名「千代田城」にちなんだものです。区の中央には、区の面積の約12%を占める皇居(1.43km2)があります。
基本データ
| 市区役所所在地 | 千代田区九段南1-2-1 |
|---|---|
| 公式ホームページURL | https://www.city.chiyoda.lg.jp// |
| 総人口 | 66,680人 |
| 人口増減率(2015年/2020年) | 114.2% |
地域のおすすめ情報ブログ
一覧を見る
-
神田明神の桜が見頃です!こんにちは!ピタットハウス御茶ノ水店です♪新年度が始まり、新入社員の方と一緒に「神田明神」へお参りに行ってきました!ちょうど桜が...続きを読む -
夜桜詣こんにちは!ピタットハウス御茶ノ水店です♪いよいよ桜も見ごろを迎える時期になりました!今回は、東京の桜の聖地「靖国神社」へ行って...続きを読む -
御茶ノ水の路線こんにちは!ピタットハウス御茶ノ水店です♪御茶ノ水といえば楽器店や大学、病院の街というイメージがありますが、実はJR中央・総武線...続きを読む -
三省堂書店の本店大復活!こんにちは!ピタットハウス御茶ノ水店です♪3月19日(木)に神保町の三省堂書店本店がリニューアルオープンし、人気絵本「ノラネコぐ...続きを読む
取扱店舗
株式会社エスケイ・コミュニティー
- 交通
- JR線「新宿」駅西口より徒歩6分、都営大江戸線「新宿西口」駅D5出口より徒歩2分
- 営業時間
- 09:30 〜 18:30
- 定休日
- 毎週水曜日・2月・3月は無休、夏季休暇無し