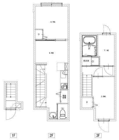
賃貸アパート
ソルナクレイシア荻窪Ⅲ
NEW-
東京都杉並区天沼3丁目 MAP
-
- JR総武・中央緩行線 「荻窪駅」 徒歩3分
- 築年月
- 2025年12月
- 構造
- 重量鉄骨造
- 階数/戸数
- 地上3階建て / 12戸
- 管理形態
- -
- 建物設備
- -
- 管理会社
- -
- 施工会社
- -
更新日:2026年4月16日
ソルナクレイシア荻窪Ⅲの他の空室物件
1
件
お問い合わせお待ちしております!
ソルナクレイシア荻窪Ⅲの近隣物件
生活情報
杉並区の暮らしデータ
杉並区は、東京23区の最西部に位置し、地名は江戸時代の初めに領地の境である青梅街道に沿って植えられた杉並木が由来となっています。杉並木はなくなりましたが、村名、町名として採用され、1932年の区制施行を経て現在に至っています。関東大震災以降、農村的たたずまいから住宅地へと変貌を遂げ、文化人や学者が多数移住するなど、今日に至るまで良好な住宅都市として発展を続けています。
基本データ
| 市区役所所在地 | 杉並区阿佐谷南1-15-1 |
|---|---|
| 公式ホームページURL | https://www.city.suginami.tokyo.jp// |
| 総人口 | 591,108人 |
| 人口増減率(2015年/2020年) | 104.8% |
地域のおすすめ情報ブログ
一覧を見る
-
西荻窪の和菓子屋さんこんにちは!ピタットハウス荻窪店の新人、山田丈です。本日は、「西荻窪是清のわらび餅」さんをご紹介させていただきます!「西荻窪是清...続きを読む -
住みたい街ランキング、方南町が人気急上昇LIFULLHOME’S発表のみんなが探した!【借りて住みたい街】急上昇ランキング2026年首都圏版に掲載されました。第一位が方...続きを読む -
方南ビール 首相官邸にて表彰!!方南町で地ビールを作って販売しています。この方南町のビール方南ビールが首相官邸にて表彰されました。是非、味わって下さい。☆引越シ...続きを読む -
高円寺駅南口広場イルミネーションご無沙汰しております!ピタットハウス高円寺店です♪先日11月22日(土)当店が加盟している高円寺南商店会主催の「高円寺駅南口広場...続きを読む
取扱店舗
株式会社エスケイ・コミュニティー
- 交通
- JR線「新宿」駅西口より徒歩6分、都営大江戸線「新宿西口」駅D5出口より徒歩2分
- 営業時間
- 09:30 〜 18:30
- 定休日
- 毎週水曜日・GW休暇、5月2日(土)〜5月6日(水)・2月・3月は無休、夏季休暇無し