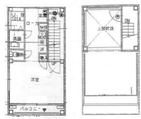
賃貸マンション
平野ビル
NEW-
兵庫県明石市本町2丁目 MAP
-
- JR山陽本線 「明石駅」 徒歩5分 / 山陽電鉄本線 「山陽明石駅」 徒歩5分 / 山陽電鉄本線 「西新町駅」 徒歩14分
- 築年月
- 1996年2月
- 構造
- 重量鉄骨造
- 階数/戸数
- 地上3階建て / 3戸
- 管理形態
- -
- 建物設備
- -
- 管理会社
- -
- 施工会社
- -
更新日:2025年12月22日
平野ビルの他の空室物件
1
件
お問い合わせお待ちしております!
周辺環境
-
ハピオス明石:281m -
ピオレ明石:241m -
セブンイレブン 明石大明石町店:270m -
山陽電鉄本線明石駅:413m -
アスピア明石:565m -
スーパーマルハチ 明石店:566m
- コンビニ
-
セブンイレブン 明石大明石町店270m
- 買物
-
スーパーマルハチ 明石店566m
- ショッピング施設
-
ハピオス明石281m
- ドラッグストア
-
-
- ホームセンター
-
-
- 病院
-
-
- 役所
-
-
- 郵便局
-
-
- 図書館
-
-
- 交番
-
-
- 公園
-
-
- 銀行
-
-
- 幼稚園
-
-
- 小学校
-
-
- 中学校
-
-
- 高校
-
-
平野ビルの近隣物件
生活情報
明石市の暮らしデータ
明石市は、人口約30万人、県下5番目の人口規模の都市です。2018年に中核市に移行し、2019年には児童相談所を設置しました。瀬戸内海に面しており、明石海峡をはさんで淡路島を眼前に臨め、気候は温暖で、古くは万葉歌人柿本人麻呂によって多くの歌が詠まれた風光明媚な地です。また、東経135度の日本標準時子午線上にあることでも有名です。さらに、阪神都市圏と播磨臨海地域、そして海を隔てて淡路・四国と結ぶ位置にあり、海陸交通のうえで重要な拠点となっています。2020年には、SDGs未来都市に選定され、SDGsをまちづくりの基軸とした取組を進めています。
基本データ
| 市区役所所在地 | 明石市中崎1-5-1 |
|---|---|
| 公式ホームページURL | https://www.city.akashi.lg.jp// |
| 総人口 | 303,601人 |
| 人口増減率(2015年/2020年) | 103.5% |
取扱店舗
株式会社ライブデザイン兵庫
- 交通
- JR山陽本線 垂水駅下車 西口改札を出て、南側(2号線沿い)商大筋南端商大筋交差点です。お車でのご来店も大歓迎!
- 営業時間
- 09:00 〜 19:00
- 定休日
- 年末年始