賃貸マンション
川崎市高津区千年マンション
NEW-
神奈川県川崎市高津区千年 MAP
-
- JR南武線 「武蔵新城駅」 徒歩11分 / JR南武線 「武蔵中原駅」 徒歩22分 / 東急田園都市線 「梶が谷駅」 徒歩32分
- 築年月
- 2026年3月
- 構造
- 鉄筋コンクリート造
- 階数/戸数
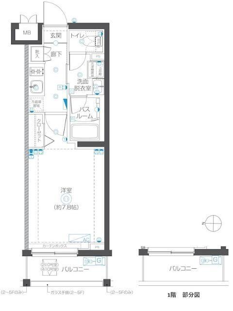
- 地上5階建て / -
- 管理形態
- -
- 建物設備
- オートロック/宅配BOX/外壁タイル張り/分譲マンションタイプ
- 管理会社
- -
- 施工会社
- -
更新日:2026年3月7日
川崎市高津区千年マンションの他の空室物件
4
件
お問い合わせお待ちしております!
周辺環境
-
川崎市立橘中学校:736m -
川崎市高津区役所:2769m -
神奈川県立川崎図書館:1609m -
高津警察署:2933m -
医療法人社団愛成会京浜総合病院:1008m -
JAセレサ川崎橘支店:588m -
A−プライス溝の口店:517m -
玉川タカシマヤ:4233m -
ヤマダデンキテックランド武蔵中原店:1670m -
私立洗足学園音楽大学:1921m
- コンビニ
-
セブンイレブン川崎千年新町店377m
- 買物
-
A−プライス溝の口店517m
- ショッピング施設
-
玉川タカシマヤ4233m
- ドラッグストア
-
クリエイトエス・ディー川崎千年店240m
- ホームセンター
-
ヤマダデンキテックランド武蔵中原1670m
- 病院
-
医療法人社団愛成会京浜総合病院1008m
- 役所
-
川崎市高津区役所2769m
- 郵便局
-
千年神社前郵便局841m
- 図書館
-
神奈川県立川崎図書館1609m
- 交番
-
高津警察署2933m
- 公園
-
たちばなふれあいの森953m
- 銀行
-
JAセレサ川崎橘支店588m
- 幼稚園
-
ちとせ山ゆり保育園81m
- 小学校
-
川崎市立橘小学校684m
- 中学校
-
川崎市立橘中学校736m
- 高校
-
神奈川県立新城高校919m
川崎市高津区千年マンションの近隣物件
生活情報
川崎市の暮らしデータ
川崎市は、自然豊かな多摩川に面し、市内を縦断するJR南武線に加え5つの私鉄が横断する利便性の高い人口増加が続くまちです。首都圏有数の広さを誇る生田緑地には「藤子・F・不二雄ミュージアム」、川崎駅前には世界有数の音響を誇る「ミューザ川崎シンフォニーホール」、さらに市内に2つの音楽大学や日本初の映画の専科大学が立地するとともに、スポーツではJリーグ川崎フロンターレ等の数多くのトップチームが活躍しています。
基本データ
| 市区役所所在地 | 川崎市川崎区宮本町1 |
|---|---|
| 公式ホームページURL | https://www.city.kawasaki.jp// |
| 総人口 | 1,538,262人 |
| 人口増減率(2015年/2020年) | 104.3% |
地域のおすすめ情報ブログ
一覧を見る
-
駅チカで通いやすいパーソナルジム!こんにちは♪ピタットハウス稲田堤店です♪本日は、【PERSONALTRAININGSTUDIOU.(スタジオU)稲田堤・中野島1...続きを読む -
手ぶらで通えるパーソナルジムこんにちは♪ピタットハウス稲田堤店です♪本日は、京王相模原線・京王稲田堤駅から徒歩1分と駅から近くて通いやすい、パーソナルジム【...続きを読む -
定額通い放題制セミパーソナルジムこんにちは♪ピタットハウス稲田堤店です♪本日は、JR南武線・稲田堤駅から徒歩1分、京王相模原線・京王稲田堤駅からは徒歩3分の少人...続きを読む -
マキシマム・ザ・ホルモン!!ピタットハウス宮前平店の殿村です。本日はうちのお店から徒歩10秒のところにある焼肉屋さん『鉄の四』さんです。焼肉屋さんですが…僕...続きを読む
取扱店舗
株式会社エイチ・アイ・トラスト
- 交通
- 東急田園都市線 高津駅 徒歩1分
- 営業時間
- 10:00 〜 19:00
- 定休日
- 毎週水曜日