前へ
次へ
前へ
次へ
賃貸マンション

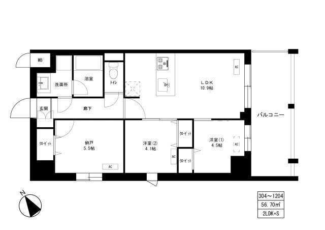
台東区今戸マンション

築年月
2025年3月
構造
鉄筋コンクリート造
階数/戸数
地上13階建て / 66戸
管理形態
-
建物設備
-
管理会社
-
施工会社
-
更新日:2025年12月21日

台東区今戸マンションの他の空室物件

1

台東区今戸マンションの近隣物件

前へ
次へ

生活情報

台東区の暮らしデータ

台東区は、東京23区のほぼ中心に位置し、面積10.11km2、西は上野の山、東は隅田川に接した典型的な下町で、面積は23区中で最も小さい区です。東京の北の玄関として交通の要所になっているほか、伝統、歴史、芸術などの豊かな文化資源を有し、四季折々の多彩な行事を通じて多くの来街者があります。

基本データ

市区役所所在地 台東区東上野4-5-6
公式ホームページURL https://www.city.taito.lg.jp//
総人口 211,444人
人口増減率(2015年/2020年) 106.8%
台東区の生活情報を詳しくみる

地域のおすすめ情報ブログ

一覧を見る

取扱店舗

株式会社エスケイ・コミュニティー
交通
JR山手線「新宿」駅徒歩6分都営大江戸線「新宿西口」駅徒歩2分
営業時間
09:30 〜 18:30
定休日
毎週水曜日・年末年始休暇12月27日〜1月4日・2月・3月は無休、夏季休暇無し