賃貸マンション
千代田区四番町マンション
-
東京都千代田区四番町 MAP
-
- 都営新宿線 「市ヶ谷駅」 徒歩5分 / 東京メトロ半蔵門線 「半蔵門駅」 徒歩7分 / JR総武・中央緩行線 「四ツ谷駅」 徒歩10分
- 築年月
- 2014年2月
- 構造
- 鉄筋コンクリート造
- 階数/戸数
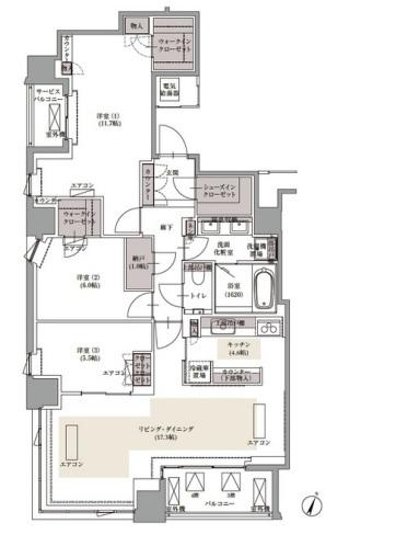
- 地上15階建て / 32戸
- 管理形態
- -
- 建物設備
- オートロック/宅配BOX/分譲マンションタイプ
- 管理会社
- -
- 施工会社
- -
更新日:2025年10月18日
千代田区四番町マンションの他の空室物件
1
件

お問い合わせお待ちしております!
周辺環境
-
miniピアゴ 九段南4丁目店:249m
-
十番:314m
-
ミニストップ 九段南4丁目店:210m
-
セブンイレブン九段北4丁目店:272m
-
池田薬局:266m
-
喜久屋クリーニング 市ヶ谷駅前店:364m
-
千代田四番町郵便局:348m
-
東郷元帥記念公園:209m
-
りそな銀行 市ヶ谷支店:274m
-
千代田区役所麹町出張所・麹町区民館:585m
- コンビニ
-
ミニストップ 九段南4丁目店210m
- 買物
-
miniピアゴ 九段南4丁目店249m
- ショッピング施設
-
-
- ドラッグストア
-
池田薬局266m
- ホームセンター
-
-
- 病院
-
-
- 役所
-
千代田区役所麹町出張所・麹町区民585m
- 郵便局
-
千代田四番町郵便局348m
- 図書館
-
-
- 交番
-
-
- 公園
-
東郷元帥記念公園209m
- 銀行
-
りそな銀行 市ヶ谷支店274m
- 幼稚園
-
-
- 小学校
-
-
- 中学校
-
-
- 高校
-
-
千代田区四番町マンションの近隣物件
生活情報
千代田区の暮らしデータ
千代田区は、1947年3月15日に麹町区と神田区が統合されて誕生しました。千代田という区名は、江戸城の別名「千代田城」にちなんだものです。区の中央には、区の面積の約12%を占める皇居(1.43km2)があります。
基本データ
市区役所所在地 | 千代田区九段南1-2-1 |
---|---|
公式ホームページURL | https://www.city.chiyoda.lg.jp// |
総人口 | 66,680人 |
人口増減率(2015年/2020年) | 114.2% |
地域のおすすめ情報ブログ
一覧を見る
-
映画チェンソーマン -レゼ編- 聖地巡礼こんにちは!ピタットハウス御茶ノ水店です(^^♪今回は現在上映中の映画「チェンソーマンレゼ編」の聖地とされている場所が御茶ノ水に...続きを読む
-
御茶ノ水 雨の日の楽しみ方こんにちは!ピタットハウス御茶ノ水店です♪今回は雨の日でも楽しめる御茶ノ水周辺のスポットをご紹介いたします。①明治大学博物館明治...続きを読む
-
本好きの聖地!神保町古書店街こんにちは!ピタットハウス御茶ノ水店です(^^♪今回は「神保町古書店街」についてご紹介!JR御茶ノ水駅からは徒歩10分ほど、東京...続きを読む
-
楽器の聖地 ♪ 御茶ノ水こんにちは!ピタットハウス御茶ノ水店です(^^♪今回は、御茶ノ水といえば!な名所「御茶ノ水楽器街」をご紹介。JR御茶ノ水駅の御茶...続きを読む
取扱店舗

株式会社リライフ
- 交通
- 四ツ谷駅 徒歩3分JR中央総武線・東京メトロ丸ノ内線・東京メトロ南北線四谷三丁目駅 徒歩9分東京メトロ丸ノ内線
- 営業時間
- 10:00 〜 18:30
- 定休日
- 毎週水曜日