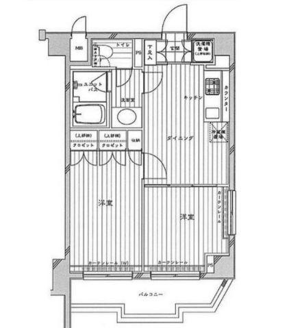
賃貸マンション
文京区水道マンション
NEW-
東京都文京区水道1丁目 MAP
-
- 東京メトロ有楽町線 「江戸川橋駅」 徒歩8分 / 東京メトロ南北線 「飯田橋駅」 徒歩12分 / 東京メトロ東西線 「神楽坂駅」 徒歩12分
- 築年月
- 2006年4月
- 構造
- 鉄筋コンクリート造
- 階数/戸数
- 地上8階建て / -
- 管理形態
- -
- 建物設備
- オートロック/宅配BOX/分譲マンションタイプ
- 管理会社
- -
- 施工会社
- -
更新日:2026年5月30日
文京区水道マンションの他の空室物件
1
件
お問い合わせお待ちしております!
周辺環境
-
まいばすけっと 東五軒町店:78m -
マルエツ プチ 水道小桜店:161m -
ファミリーマート 新宿新小川町店:166m -
セブンイレブン文京水道1丁目店:210m -
どらっぐぱぱす 新江戸川橋店:687m -
ポニークリーニング 新小川町店:493m -
文京水道郵便局:614m -
三菱UFJ銀行 神楽坂支店:876m
- コンビニ
-
ファミリーマート 新宿新小川町店166m
- 買物
-
まいばすけっと 東五軒町店78m
- ショッピング施設
-
-
- ドラッグストア
-
どらっぐぱぱす 新江戸川橋店687m
- ホームセンター
-
-
- 病院
-
JCHO東京新宿メディカルセンタ747m
- 役所
-
-
- 郵便局
-
文京水道郵便局614m
- 図書館
-
-
- 交番
-
-
- 公園
-
新宿区立白銀公園794m
- 銀行
-
三菱UFJ銀行 神楽坂支店876m
- 幼稚園
-
-
- 小学校
-
-
- 中学校
-
-
- 高校
-
-
文京区水道マンションの近隣物件
生活情報
文京区の暮らしデータ
文京区は、東京23区の中心部に位置し、由緒ある寺社、歴史を語る建造物等が数多く残るほか、江戸の大名屋敷庭園の面影を残す庭園もあります。また、明治時代には東京大学をはじめ多くの学校がつくられ、さらに、森鴎外、夏目漱石、樋口一葉、石川啄木など多くの文人ゆかりの地であり、緑豊かな文化の薫り高いまちとして発展してきました。
基本データ
| 市区役所所在地 | 文京区春日1-16-21 |
|---|---|
| 公式ホームページURL | https://www.city.bunkyo.lg.jp// |
| 総人口 | 240,069人 |
| 人口増減率(2015年/2020年) | 109.3% |
地域のおすすめ情報ブログ
一覧を見る
-
御茶ノ水で見つける「バラの名所」こんにちは!ピタットハウス御茶ノ水店です♪ピタットハウス御茶ノ水店から徒歩約5分。ビル群の中に現れる、隠れた名所「本郷給水所公苑...続きを読む -
広々とゆったり過ごせる公園こんにちは!ピタットハウス駒込店の牛窪です。本日は巣鴨駅から約7分の場所にある「文京宮下公園」をご紹介させていただきます。こちら...続きを読む -
ぜひ味わってほしいラオス産コーヒー!こんにちは!ピタットハウス駒込店の牛窪です。本日は、日本での流通が少なく珍しいラオス産のコーヒー豆を使用している「LAOSIAC...続きを読む -
最新エンタメを満喫!こんにちは!ピタットハウス御茶ノ水店です♪今回は、「東京ドームシティ」をご紹介します!文京区後楽に位置する、スタジアム・遊園地・...続きを読む
取扱店舗
株式会社リライフ
- 交通
- 四ツ谷駅 徒歩3分JR中央総武線・東京メトロ丸ノ内線・東京メトロ南北線四谷三丁目駅 徒歩9分東京メトロ丸ノ内線
- 営業時間
- 10:00 〜 18:30
- 定休日
- 毎週火水曜日(1月〜3月を除く)