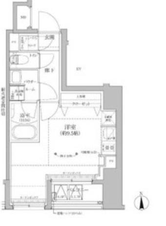
賃貸マンション
台東区元浅草マンション
NEW-
東京都台東区元浅草4丁目 MAP
-
- 東京メトロ銀座線 「田原町駅」 徒歩6分 / 東京メトロ日比谷線 「上野駅」 徒歩12分 / 東京メトロ銀座線 「稲荷町駅」 徒歩6分
- 築年月
- 2025年7月
- 構造
- 鉄筋コンクリート造
- 階数/戸数
- 地上11階建て / -
- 管理形態
- -
- 建物設備
- オートロック/宅配BOX/分譲マンションタイプ
- 管理会社
- -
- 施工会社
- -
更新日:2026年2月5日
台東区元浅草マンションの他の空室物件
1
件
お問い合わせお待ちしております!
周辺環境
-
まいばすけっと 合羽橋南店:354m -
スーパーヤマザキ 三筋店:550m -
セブンイレブン台東元浅草店:126m -
ローソン台東元浅草四丁目店:140m -
どらっぐぱぱす浅草雷門店:881m -
ポニークリーニング元浅草店:373m -
永寿総合病院:647m -
みずほ銀行稲荷町支店:592m
- コンビニ
-
セブンイレブン台東元浅草店126m
- 買物
-
まいばすけっと 合羽橋南店354m
- ショッピング施設
-
-
- ドラッグストア
-
どらっぐぱぱす浅草雷門店881m
- ホームセンター
-
オフィスバスターズ上野店883m
- 病院
-
永寿総合病院647m
- 役所
-
-
- 郵便局
-
-
- 図書館
-
-
- 交番
-
-
- 公園
-
松葉公園309m
- 銀行
-
みずほ銀行稲荷町支店592m
- 幼稚園
-
-
- 小学校
-
-
- 中学校
-
-
- 高校
-
-
台東区元浅草マンションの近隣物件
生活情報
台東区の暮らしデータ
台東区は、東京23区のほぼ中心に位置し、面積10.11km2、西は上野の山、東は隅田川に接した典型的な下町で、面積は23区中で最も小さい区です。東京の北の玄関として交通の要所になっているほか、伝統、歴史、芸術などの豊かな文化資源を有し、四季折々の多彩な行事を通じて多くの来街者があります。
基本データ
| 市区役所所在地 | 台東区東上野4-5-6 |
|---|---|
| 公式ホームページURL | https://www.city.taito.lg.jp// |
| 総人口 | 211,444人 |
| 人口増減率(2015年/2020年) | 106.8% |
地域のおすすめ情報ブログ
一覧を見る
-
台東区立初音児童遊園こんにちは!ピタットハウス日暮里店の横尾です♪今回は台東区立初音児童遊園についてご紹介させて頂きます。「初音児童遊園」は千駄木駅...続きを読む -
すたんどがっさんこんにちは!ピタットハウス日暮里店の横尾です♪今回はよみせ通り沿いにある「すたんどがっさん」をご紹介させて頂きます。よみせ通りに...続きを読む -
都内で自然と文化を感じれる場所こんにちは!ピタットハウス御茶ノ水店です♪今回ご紹介するのは「上野恩賜公園」です。◇上野恩賜公園とは◇1873年(明治6年)に太...続きを読む -
Calm Coffee ROASTERSこんにちは!ピタットハウス日暮里店の横尾です♪今回は谷中銀座商店街にある「CalmCoffeeROASTERS」をご紹介させてい...続きを読む
取扱店舗
株式会社リライフ
- 交通
- 四ツ谷駅 徒歩3分JR中央総武線・東京メトロ丸ノ内線・東京メトロ南北線四谷三丁目駅 徒歩9分東京メトロ丸ノ内線
- 営業時間
- 10:00 〜 18:30
- 定休日
- 毎週水曜日(1月〜3月を除く)