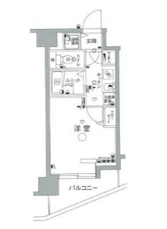
賃貸マンション
文京区小石川マンション
NEW-
東京都文京区小石川4丁目 MAP
-
- 東京メトロ南北線 「後楽園駅」 徒歩11分 / 都営大江戸線 「飯田橋駅」 徒歩14分 / 都営三田線 「春日駅」 徒歩12分
- 築年月
- 2005年11月
- 構造
- 鉄筋コンクリート造
- 階数/戸数
- 地上15階建て / 87戸
- 管理形態
- -
- 建物設備
- オートロック/宅配BOX/分譲マンションタイプ
- 管理会社
- -
- 施工会社
- -
更新日:2026年2月1日
文京区小石川マンションの他の空室物件
1
件
お問い合わせお待ちしております!
周辺環境
-
まいばすけっと 春日2丁目店:61m -
マルエツ プチ 水道小桜店:605m -
セブンイレブン 文京小石川4丁目店:53m -
ファミリーマート 伝通院前店:247m -
どらっぐぱぱす 小石川1丁目店:740m -
白洋舎春日店:308m -
オリンピック 白山店:993m -
三井住友銀行小石川支店:833m
- コンビニ
-
セブンイレブン 文京小石川4丁目店53m
- 買物
-
まいばすけっと 春日2丁目店61m
- ショッピング施設
-
-
- ドラッグストア
-
どらっぐぱぱす 小石川1丁目店740m
- ホームセンター
-
オリンピック 白山店993m
- 病院
-
JCHO東京新宿メディカルセンタ1160m
- 役所
-
-
- 郵便局
-
-
- 図書館
-
-
- 交番
-
-
- 公園
-
後楽公園927m
- 銀行
-
三井住友銀行小石川支店833m
- 幼稚園
-
-
- 小学校
-
-
- 中学校
-
-
- 高校
-
-
文京区小石川マンションの近隣物件
生活情報
文京区の暮らしデータ
文京区は、東京23区の中心部に位置し、由緒ある寺社、歴史を語る建造物等が数多く残るほか、江戸の大名屋敷庭園の面影を残す庭園もあります。また、明治時代には東京大学をはじめ多くの学校がつくられ、さらに、森鴎外、夏目漱石、樋口一葉、石川啄木など多くの文人ゆかりの地であり、緑豊かな文化の薫り高いまちとして発展してきました。
基本データ
| 市区役所所在地 | 文京区春日1-16-21 |
|---|---|
| 公式ホームページURL | https://www.city.bunkyo.lg.jp// |
| 総人口 | 240,069人 |
| 人口増減率(2015年/2020年) | 109.3% |
地域のおすすめ情報ブログ
一覧を見る
-
TOKYO SNOW DOME CITYこんにちは!ピタットハウス御茶ノ水店です♪今回は東京ドームシティウィンターイルミネーションをご紹介いたします☆彡☆詳細☆・場所:...続きを読む -
神社巡りこんにちは!ピタットハウス御茶ノ水店です(^^♪今回は妻戀神社をご紹介します。恋愛成就・夫婦円満の神社として知られています。妻戀...続きを読む -
ロケ地巡り3こんにちは♪ピタットハウス御茶ノ水店です!今回はロケ地巡り第3弾!2011年に放送されたドラマ「JIN−仁−」のロケ地です。ちょ...続きを読む -
一足早く紅葉の名所へこんにちは!ピタットハウス御茶ノ水店です。今回は紅葉の時期におすすめのスポット!小石川後楽園をご紹介いたします!ここは、後楽園駅...続きを読む
取扱店舗
株式会社リライフ
- 交通
- 四ツ谷駅 徒歩3分JR中央総武線・東京メトロ丸ノ内線・東京メトロ南北線四谷三丁目駅 徒歩9分東京メトロ丸ノ内線
- 営業時間
- 10:00 〜 18:30
- 定休日
- 毎週水曜日(1月〜3月を除く)