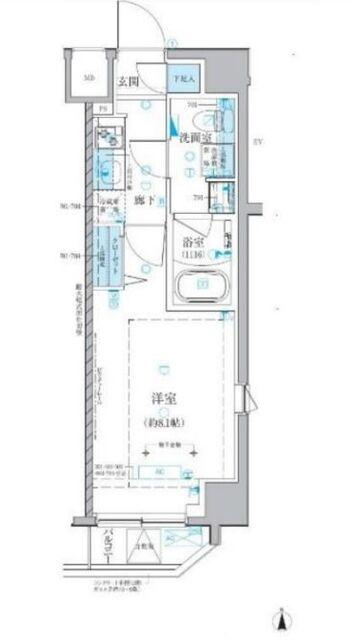
賃貸マンション
豊島区池袋本町マンション
-
東京都豊島区池袋本町2丁目 MAP
-
- 東武東上線 「下板橋駅」 徒歩7分 / 東武東上線 「北池袋駅」 徒歩8分 / JR埼京線 「板橋駅」 徒歩14分
- 築年月
- 2019年9月
- 構造
- 鉄筋コンクリート造
- 階数/戸数
- 地上9階建て / 74戸
- 管理形態
- -
- 建物設備
- オートロック/宅配BOX/分譲マンションタイプ
- 管理会社
- -
- 施工会社
- -
更新日:2026年2月20日
豊島区池袋本町マンションの他の空室物件
1
件
お問い合わせお待ちしております!
周辺環境
-
まいばすけっと 熊野町山手通り店:361m -
まいばすけっと 池袋本町1丁目店:440m -
セブンイレブン 豊島池袋本町3丁目店:212m -
セブンイレブン 池袋本町店:257m -
スギ薬局池袋本町店:279m -
東急ハンズ 池袋店:1885m -
りそな銀行 板橋支店:1038m
- コンビニ
-
セブンイレブン 豊島池袋本町3丁目店212m
- 買物
-
まいばすけっと 熊野町山手通り店361m
- ショッピング施設
-
-
- ドラッグストア
-
スギ薬局池袋本町店279m
- ホームセンター
-
東急ハンズ 池袋店1885m
- 病院
-
長汐病院996m
- 役所
-
-
- 郵便局
-
-
- 図書館
-
-
- 交番
-
-
- 公園
-
池袋西口公園1575m
- 銀行
-
りそな銀行 板橋支店1038m
- 幼稚園
-
-
- 小学校
-
-
- 中学校
-
-
- 高校
-
-
豊島区池袋本町マンションの近隣物件
生活情報
豊島区の暮らしデータ
豊島区は、ソメイヨシノ発祥の地駒込、「おばあちゃんの原宿」の巣鴨、東京で唯一の都電が街中を走る大塚、巨大ターミナルを有する池袋、歴史と文化が香る雑司が谷、緑豊かで格調ある目白、「トキワ荘のあった街」南長崎、池袋モンパルナスの面影残る長崎・要町・千早など、さまざまな顔を持っています。2025年3月、区政の最高指針であり、まちづくりの羅針盤でもある新たな「基本構想・基本計画」を策定。区民とまちの将来像を共有し、「出会いと笑顔が咲きほこる、憧れのまち」の実現を目指しています。
基本データ
| 市区役所所在地 | 豊島区南池袋2-45-1 |
|---|---|
| 公式ホームページURL | https://www.city.toshima.lg.jp// |
| 総人口 | 301,599人 |
| 人口増減率(2015年/2020年) | 103.6% |
地域のおすすめ情報ブログ
一覧を見る
-
創作うどんが楽しめるお店♪こんにちは!ピタットハウス池袋店の堀江です!ゴールデンウィークが明け、日差しが強い日が続いていますが、皆さんはいかがお過ごしです...続きを読む -
とにかくお魚がおいしいお店!こんにちは!ピタットハウス池袋店の茂木です!梅雨だとは思えない気温や天気が続いておりますが皆さんいかがお過ごしでしょうか?もうク...続きを読む -
池袋からすぐ!遊具でたくさん遊べる公園♪こんにちは!ピタットハウス池袋店の堀江です!今回ご紹介するのは、池袋駅から徒歩5分!多数の遊具がある公園、【豊島区立西池袋公園】...続きを読む -
揚げたての天ぷらが食べられるお店♪こんにちは!ピタットハウス池袋店の堀江です!さて今回ご紹介するのは、揚げたての天ぷらが食べられる天丼専門店!【天丼ふじ】さんです...続きを読む
取扱店舗
株式会社リライフ
- 交通
- 四ツ谷駅 徒歩3分JR中央総武線・東京メトロ丸ノ内線・東京メトロ南北線四谷三丁目駅 徒歩9分東京メトロ丸ノ内線
- 営業時間
- 10:00 〜 18:30
- 定休日
- 毎週水曜日(1月〜3月を除く)