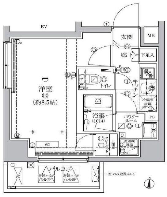
賃貸マンション
墨田区東駒形マンション
NEW-
東京都墨田区東駒形4丁目 MAP
-
- 都営浅草線 「本所吾妻橋駅」 徒歩5分 / 東武伊勢崎・大師線 「東京スカイツリー駅」 徒歩7分 / 東京メトロ半蔵門線 「押上駅」 徒歩10分
- 築年月
- 2021年6月
- 構造
- 鉄筋コンクリート造
- 階数/戸数
- 地上8階建て / 22戸
- 管理形態
- -
- 建物設備
- オートロック/宅配BOX/分譲マンションタイプ
- 管理会社
- -
- 施工会社
- -
更新日:2025年10月3日
墨田区東駒形マンションの他の空室物件
1
件

お問い合わせお待ちしております!
周辺環境
-
まいばすけっと とうきょうスカイツリー駅南店:399m
-
まいばすけっと本所3丁目店:458m
-
セブンイレブン墨田業平1丁目店:205m
-
セブンイレブン墨田吾妻橋3丁目店:253m
-
どらっぐぱぱす東駒形店:302m
-
ポニークリーニング吾妻橋店:537m
-
本所吾妻橋駅前郵便局:523m
-
三菱UFJ銀行押上駅前支店:873m
- コンビニ
-
セブンイレブン墨田業平1丁目店205m
- 買物
-
まいばすけっと とうきょうスカイ399m
- ショッピング施設
-
-
- ドラッグストア
-
どらっぐぱぱす東駒形店302m
- ホームセンター
-
212キッチンストア 東京スカイ796m
- 病院
-
-
- 役所
-
-
- 郵便局
-
本所吾妻橋駅前郵便局523m
- 図書館
-
-
- 交番
-
-
- 公園
-
区立大横川親水公園418m
- 銀行
-
三菱UFJ銀行押上駅前支店873m
- 幼稚園
-
-
- 小学校
-
-
- 中学校
-
-
- 高校
-
-
墨田区東駒形マンションの近隣物件
生活情報
墨田区の暮らしデータ
墨田区は、東京の母なる川、隅田川に沿って発展してきた、下町情緒が色濃く残る商工業の町です。この町には伝統に培われた確かな技術や物が溢れています。そして、歴史と文化に育まれた様々な行事が四季を通じて行われ、区の内外の皆さんに楽しんでいただいています。
基本データ
市区役所所在地 | 墨田区吾妻橋1-23-20 |
---|---|
公式ホームページURL | https://www.city.sumida.lg.jp// |
総人口 | 272,085人 |
人口増減率(2015年/2020年) | 106.2% |
地域のおすすめ情報ブログ
一覧を見る
-
緑町公園こんにちは!ピタットハウス錦糸町北口店新人の末信です!!両国駅から徒歩約10分、墨田区にある「緑町公園」は、子どもたちに大人気の...続きを読む
-
【本所松坂町公園(吉良邸跡)】こんにちは!ピタットハウス錦糸町北口店新人の末信です!両国駅から歩いて6分ほど、静かな街角に「本所松坂町公園(吉良邸跡)」があり...続きを読む
-
両国橋両国橋は、1659年に創架されたとされる隅田川最古の橋で、当時は封建時代の二つの領土を結ぶ重要な役割を担っていました。その歴史的...続きを読む
-
墨田区立 両国橋児童遊園こんにちは!ピタットハウス錦糸町北口店新人の末信です!!両国駅から徒歩7分、「墨田区立両国児童遊園」は、昭和44年6月30日に開...続きを読む
取扱店舗

株式会社リライフ
- 交通
- 四ツ谷駅 徒歩3分JR中央総武線・東京メトロ丸ノ内線・東京メトロ南北線四谷三丁目駅 徒歩9分東京メトロ丸ノ内線
- 営業時間
- 10:00 〜 18:30
- 定休日
- 毎週水曜日