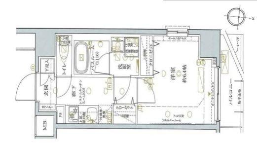
賃貸マンション
大田区多摩川マンション
NEW-
東京都大田区多摩川1丁目 MAP
-
- 東急多摩川線 「矢口渡駅」 徒歩2分 / 東急池上線 「蒲田駅」 徒歩19分 / 東急池上線 「蓮沼駅」 徒歩13分
- 築年月
- 2017年1月
- 構造
- 鉄筋コンクリート造
- 階数/戸数
- 地上8階建て / 44戸
- 管理形態
- -
- 建物設備
- オートロック/宅配BOX/分譲マンションタイプ
- 管理会社
- -
- 施工会社
- -
更新日:2026年2月28日
大田区多摩川マンションの他の空室物件
2
件
お問い合わせお待ちしております!
周辺環境
-
まいばすけつと 矢口渡店:116m -
まいばすけつと 矢口渡駅北店:209m -
ローソンストア100 矢口渡駅前店:43m -
ファミリーマート 大田矢口渡駅前店:83m -
スギ薬局 矢口渡店:37m -
ポニークリーニング 矢口渡駅前店:69m -
りそな銀行 蒲田支店:1621m
- コンビニ
-
ローソンストア100 矢口渡駅前店43m
- 買物
-
まいばすけつと 矢口渡店116m
- ショッピング施設
-
-
- ドラッグストア
-
スギ薬局 矢口渡店37m
- ホームセンター
-
島忠ホームス 大田千鳥店1174m
- 病院
-
東京蒲田病院1383m
- 役所
-
-
- 郵便局
-
-
- 図書館
-
-
- 交番
-
-
- 公園
-
西六郷公園2098m
- 銀行
-
りそな銀行 蒲田支店1621m
- 幼稚園
-
-
- 小学校
-
-
- 中学校
-
-
- 高校
-
-
大田区多摩川マンションの近隣物件
生活情報
大田区の暮らしデータ
大田区は、1947年3月15日に当時の大森区と蒲田区が合併して誕生しました。東京都の東南部に位置し、海と川に臨み、昔から人が住みやすく、交通の要路として栄えてきました。江戸期は農漁村で、海岸の大森・糀谷・羽田地区では1963年頃まで海苔の養殖が盛んに行われました。大正期以降、中小工場が進出し、低地部は住宅や工場が密集する商業・工業地域を形成し、京浜工業地帯の一部となっています。また、台地部は、田園調布、雪谷、久が原など比較的緑の多い住宅地です。臨海部は埋め立て地で、羽田空港をはじめトラックターミナルや市場など物流施設のほか、工場団地、野鳥公園など都市機能施設が整備されています。
基本データ
| 市区役所所在地 | 大田区蒲田5-13-14 |
|---|---|
| 公式ホームページURL | https://www.city.ota.tokyo.jp// |
| 総人口 | 748,081人 |
| 人口増減率(2015年/2020年) | 104.3% |
地域のおすすめ情報ブログ
一覧を見る
-
夏休みのおやつは伊勢屋こんにちは!ピタットハウス蒲田店です。今回は、東急多摩川線・矢口渡駅からすぐ、矢口の渡商店会の中にある「伊勢屋」さんをご紹介しま...続きを読む -
矢口渡でマグロといえばここ!本日は、矢口渡にある和泉水産まぐろ専門店さんをご紹介します。まぐろ専門店を謳われてるだけあって廉価で美味しいまぐろを店内でもお家...続きを読む -
もちもちのパン本日は鵜の木にある人気のパン屋さん「マルアベーカリー」さんをご紹介いたします!たくさんのコインランドリーが並ぶ中、かわいらしい看...続きを読む -
自家製そばで夏を乗り切る!本日は大森駅北口にある【そば処笑庵】さんをご紹介させていただきます。昼は丼ものとお蕎麦の定食をメインに、夜は自家製の二八蕎麦とお...続きを読む
取扱店舗
株式会社リライフ
- 交通
- 四ツ谷駅 徒歩3分JR中央総武線・東京メトロ丸ノ内線・東京メトロ南北線四谷三丁目駅 徒歩9分東京メトロ丸ノ内線
- 営業時間
- 10:00 〜 18:30
- 定休日
- 毎週水曜日(1月〜3月を除く)