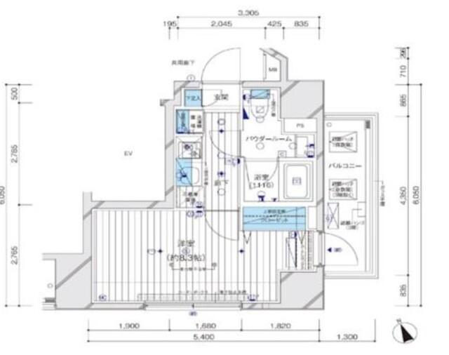
賃貸マンション
目黒区目黒マンション
NEW-
東京都目黒区目黒3丁目 MAP
-
- JR山手線 「目黒駅」 徒歩12分 / 東京メトロ日比谷線 「恵比寿駅」 徒歩19分 / 東急目黒線 「不動前駅」 徒歩20分
- 築年月
- 2021年6月
- 構造
- 鉄筋コンクリート造
- 階数/戸数
- 地上14階建て / -
- 管理形態
- -
- 建物設備
- オートロック/宅配BOX
- 管理会社
- -
- 施工会社
- -
更新日:2025年10月14日
目黒区目黒マンションの他の空室物件
1
件

お問い合わせお待ちしております!
周辺環境
-
マルエツ プチ 中目黒四丁目店:338m
-
マルエツ 目黒店:457m
-
ファミリーマート 目黒三丁目店:57m
-
ローソン H目黒二丁目店:155m
-
東京共済病院:962m
-
目黒三郵便局:176m
-
中目黒公園:824m
- コンビニ
-
ファミリーマート 目黒三丁目店57m
- 買物
-
マルエツ プチ 中目黒四丁目店338m
- ショッピング施設
-
ドン・キホーテ ピカソ目黒駅前店803m
- ドラッグストア
-
ケイポート 下目黒店451m
- ホームセンター
-
-
- 病院
-
東京共済病院962m
- 役所
-
-
- 郵便局
-
目黒三郵便局176m
- 図書館
-
-
- 交番
-
-
- 公園
-
中目黒公園824m
- 銀行
-
-
- 幼稚園
-
-
- 小学校
-
-
- 中学校
-
-
- 高校
-
-
目黒区目黒マンションの近隣物件
生活情報
目黒区の暮らしデータ
目黒区は、東京23区の南西部にあり、区内は台地の中を二つの川の谷が走り、起伏の多い地形です。1932年に目黒町と碑衾町が合併し誕生した、山の手の緑ある良好な住宅地です。世論調査でも、「住み続けたい」という人が90%を超える、良好な住環境が特徴です。
基本データ
市区役所所在地 | 目黒区上目黒2-19-15 |
---|---|
公式ホームページURL | https://www.city.meguro.tokyo.jp// |
総人口 | 288,088人 |
人口増減率(2015年/2020年) | 103.8% |
地域のおすすめ情報ブログ
一覧を見る
-
〜小さなスイーツで大きな笑顔を〜今日は、都立大学駅で人気のスイーツ店「とよんちのたまご都立大学駅前店」のご紹介です!駅から歩いて2分!卵好きにはたまらないスイー...続きを読む
-
〜食の楽しさを求めて〜こんにちは!ピタットハウス都立大学店の佐藤です。本日ご紹介するのは、都立大学駅徒歩2分にお店を構える、『freefromstyl...続きを読む
-
味良しコスパ良しの焼肉屋さん『大統領』〜お久しぶりです!都立大学店の佐藤です。本日は弊社の男性スタッフに大人気のお店『大統領』さんをご紹介します♪都立大学駅から徒歩5分...続きを読む
-
ママの元気を貰いに行こう!愛される名店こんにちは!新人の須田です!記念すべき私の初投稿でご紹介させていただくのは、地元に愛される隠れた名店『ママズキッチン』さんです!...続きを読む
取扱店舗

株式会社リライフ
- 交通
- 四ツ谷駅 徒歩3分JR中央総武線・東京メトロ丸ノ内線・東京メトロ南北線四谷三丁目駅 徒歩9分東京メトロ丸ノ内線
- 営業時間
- 10:00 〜 18:30
- 定休日
- 毎週水曜日