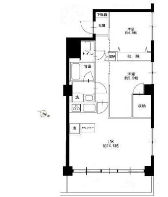
賃貸マンション
渋谷区恵比寿南マンション
NEW-
東京都渋谷区恵比寿南2丁目 MAP
-
- JR山手線 「恵比寿駅」 徒歩4分 / 東急東横線 「代官山駅」 徒歩9分 / 東京メトロ日比谷線 「中目黒駅」 徒歩12分
- 築年月
- 1969年4月
- 構造
- 鉄筋コンクリート造
- 階数/戸数
- 地上7階建て / -
- 管理形態
- -
- 建物設備
- オートロック/分譲マンションタイプ
- 管理会社
- -
- 施工会社
- -
更新日:2025年10月18日
渋谷区恵比寿南マンションの他の空室物件
1
件

お問い合わせお待ちしております!
周辺環境
-
ピーコックストア 恵比寿南店
-
成城石井 アトレ恵比寿西館店:290m
-
ローソン H恵比寿店:77m
-
ファミリーマート 恵比寿神社前店:246m
-
ポニークリーニング 恵比寿西2丁目店:469m
-
東京共済病院:745m
-
恵比寿駅前郵便局:109m
- コンビニ
-
ローソン H恵比寿店77m
- 買物
-
-
- ショッピング施設
-
アトレ恵比寿350m
- ドラッグストア
-
ココカラファイン 恵比寿店417m
- ホームセンター
-
-
- 病院
-
東京共済病院745m
- 役所
-
-
- 郵便局
-
恵比寿駅前郵便局109m
- 図書館
-
-
- 交番
-
-
- 公園
-
恵比寿公園248m
- 銀行
-
-
- 幼稚園
-
-
- 小学校
-
-
- 中学校
-
-
- 高校
-
-
渋谷区恵比寿南マンションの近隣物件
生活情報
渋谷区の暮らしデータ
渋谷区は、1932年10月1日に渋谷町・千駄ヶ谷町・代々幡町が合併し、ほかの79町村とともに大東京35区の一環として誕生しました。渋谷や原宿周辺の都市部は、ファッション関係の店舗をはじめ、表参道ヒルズ、渋谷ヒカリエ、渋谷ストリーム、渋谷スクランブルスクエア、WITH HARAJUKU、MIYASHITA PARKなどさまざまな商業ビル・施設があり、区民だけでなく多くの来街者が集まるエリアです。また、都心でありながらも明治神宮や代々木公園など自然豊かな場所にも恵まれている区です。
基本データ
市区役所所在地 | 渋谷区宇田川町1-1 |
---|---|
公式ホームページURL | https://www.city.shibuya.tokyo.jp// |
総人口 | 243,883人 |
人口増減率(2015年/2020年) | 108.6% |
地域のおすすめ情報ブログ
一覧を見る
取扱店舗

株式会社リライフ
- 交通
- 四ツ谷駅 徒歩3分JR中央総武線・東京メトロ丸ノ内線・東京メトロ南北線四谷三丁目駅 徒歩9分東京メトロ丸ノ内線
- 営業時間
- 10:00 〜 18:30
- 定休日
- 毎週水曜日