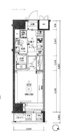
賃貸マンション
台東区松が谷マンション
NEW-
東京都台東区松が谷4丁目 MAP
-
- 東京メトロ日比谷線 「入谷駅」 徒歩4分 / JR山手線 「鶯谷駅」 徒歩11分 / つくばエクスプレス 「浅草駅」 徒歩10分
- 築年月
- 2012年3月
- 構造
- 鉄筋コンクリート造
- 階数/戸数
- 地上12階建て / -
- 管理形態
- -
- 建物設備
- オートロック/宅配BOX/分譲マンションタイプ
- 管理会社
- -
- 施工会社
- -
更新日:2026年1月11日
台東区松が谷マンションの他の空室物件
1
件
お問い合わせお待ちしております!
周辺環境
-
まいばすけっと 入谷2丁目店:153m -
セブンイレブン台東入谷1丁目店:45m -
ファミリーマート入谷二丁目店:238m -
ポニークリーニング入谷1丁目店:172m -
区立台東病院:981m -
しまむら浅草 ROX・3G店:1303m -
みずほ銀行千束町支店:799m
- コンビニ
-
セブンイレブン台東入谷1丁目店45m
- 買物
-
まいばすけっと 入谷2丁目店153m
- ショッピング施設
-
-
- ドラッグストア
-
ミヤモトドラッグ 入谷店210m
- ホームセンター
-
しまむら浅草 ROX・3G店1303m
- 病院
-
区立台東病院981m
- 役所
-
-
- 郵便局
-
-
- 図書館
-
-
- 交番
-
-
- 公園
-
入谷南公園265m
- 銀行
-
みずほ銀行千束町支店799m
- 幼稚園
-
-
- 小学校
-
-
- 中学校
-
-
- 高校
-
-
台東区松が谷マンションの近隣物件
生活情報
台東区の暮らしデータ
台東区は、東京23区のほぼ中心に位置し、面積10.11km2、西は上野の山、東は隅田川に接した典型的な下町で、面積は23区中で最も小さい区です。東京の北の玄関として交通の要所になっているほか、伝統、歴史、芸術などの豊かな文化資源を有し、四季折々の多彩な行事を通じて多くの来街者があります。
基本データ
| 市区役所所在地 | 台東区東上野4-5-6 |
|---|---|
| 公式ホームページURL | https://www.city.taito.lg.jp// |
| 総人口 | 211,444人 |
| 人口増減率(2015年/2020年) | 106.8% |
地域のおすすめ情報ブログ
一覧を見る
-
Calm Coffee ROASTERSこんにちは!ピタットハウス日暮里店の横尾です♪今回は谷中銀座商店街にある「CalmCoffeeROASTERS」をご紹介させてい...続きを読む -
全粒粉のくるみパンこんにちは!ピタットハウス日暮里店の横尾です♪今回は谷中銀座商店街にある「BAKERYヒトテマ」さんをご紹介させていただきます。...続きを読む -
よみせ通りにある珈琲ショップこんにちは!ピタットハウス日暮里店の横尾です♪今回は谷中銀座商店街近くのよみせ通り沿いにある「YANAKACOFFE谷中店」をご...続きを読む -
谷中銀座商店街と谷中霊園こんにちは!ピタットハウス日暮里店の横尾です♪今回は谷中銀座商店街と谷中霊園をご紹介させていただきます。谷中谷中銀座商店街谷中霊...続きを読む
取扱店舗
株式会社リライフ
- 交通
- 四ツ谷駅 徒歩3分JR中央総武線・東京メトロ丸ノ内線・東京メトロ南北線四谷三丁目駅 徒歩9分東京メトロ丸ノ内線
- 営業時間
- 10:00 〜 18:30
- 定休日
- 毎週水曜日(1月〜3月を除く)