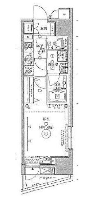
賃貸マンション
荒川区西日暮里マンション
NEW-
東京都荒川区西日暮里1丁目 MAP
-
- 京成本線 「新三河島駅」 徒歩3分 / JR常磐線 「三河島駅」 徒歩8分 / 東京メトロ千代田線 「西日暮里駅」 徒歩10分
- 築年月
- 2014年4月
- 構造
- 鉄筋コンクリート造
- 階数/戸数
- 地上10階建て / -
- 管理形態
- -
- 建物設備
- オートロック/宅配BOX/分譲マンションタイプ
- 管理会社
- -
- 施工会社
- -
更新日:2026年3月20日
荒川区西日暮里マンションの他の空室物件
1
件
お問い合わせお待ちしております!
周辺環境
-
マルエツ 西日暮里店:313m -
ローソン荒川西日暮里一丁目店:46m -
セブンイレブン荒川西日暮里1丁目店:155m -
ドラッグストアスマイル西日暮里店:520m -
ホワイト急便モンテシト西日暮里1丁目店:268m -
西日暮里郵便局:411m -
三井住友銀行日暮里支店:989m
- コンビニ
-
ローソン荒川西日暮里一丁目店46m
- 買物
-
エヌ・マート 新三河島店285m
- ショッピング施設
-
-
- ドラッグストア
-
ドラッグストアスマイル西日暮里店520m
- ホームセンター
-
-
- 病院
-
岡田病院183m
- 役所
-
-
- 郵便局
-
西日暮里郵便局411m
- 図書館
-
荒川区立冠新道図書サービスステー489m
- 交番
-
-
- 公園
-
-
- 銀行
-
三井住友銀行日暮里支店989m
- 幼稚園
-
-
- 小学校
-
-
- 中学校
-
-
- 高校
-
-
荒川区西日暮里マンションの近隣物件
生活情報
荒川区の暮らしデータ
荒川区は、東京都の北東部に位置する、人口約22万人の街です。古くからの歴史や下町風情を随所に残しつつ、新しいまちづくりも進み、懐かしさと新しさが混ざり合う、個性と魅力あふれるまちです。「世代をつなぐ」「地域をつなぐ」「みんなの力をつなぐ」をテーマに、子育てしやすい環境や健康づくりの取組のほか、誰もが安心して暮らせるまちづくりを進めるとともに、区民一人ひとりが輝く、活力のある持続可能な街を目指しています。
基本データ
| 市区役所所在地 | 荒川区荒川2-2-3 |
|---|---|
| 公式ホームページURL | https://www.city.arakawa.tokyo.jp// |
| 総人口 | 217,475人 |
| 人口増減率(2015年/2020年) | 102.5% |
地域のおすすめ情報ブログ
一覧を見る
-
ニュー恵美須こんにちは!ピタットハウス日暮里店の横尾です♪今回は銭湯「ニュー恵美須」さんをご紹介させて頂きます。●住所:荒川区東尾久4-17...続きを読む -
とんかつ専門店 しみずこんにちは!ピタットハウス日暮里店の横尾です♪今回は「とんかつ専門店しみず」をご紹介させて頂きます。物件調査等で日暮里駅周辺を回...続きを読む -
日暮里南公園こんにちは!ピタットハウス日暮里店の横尾です♪最近銭湯のブログばかりだったので、今回は日暮里南公園をご紹介させて頂きます。●住所...続きを読む -
千歳湯こんにちは!ピタットハウス日暮里店の横尾です♪今回は千歳湯さんをご紹介させて頂きます。●住所:荒川区西日暮里4-8-4●TEL:...続きを読む
取扱店舗
株式会社リライフ
- 交通
- 四ツ谷駅 徒歩3分JR中央総武線・東京メトロ丸ノ内線・東京メトロ南北線四谷三丁目駅 徒歩9分東京メトロ丸ノ内線
- 営業時間
- 10:00 〜 18:30
- 定休日
- 毎週水曜日(1月〜3月を除く)