前へ
次へ
前へ
次へ
賃貸マンション

中央区日本橋浜町マンション

NEW
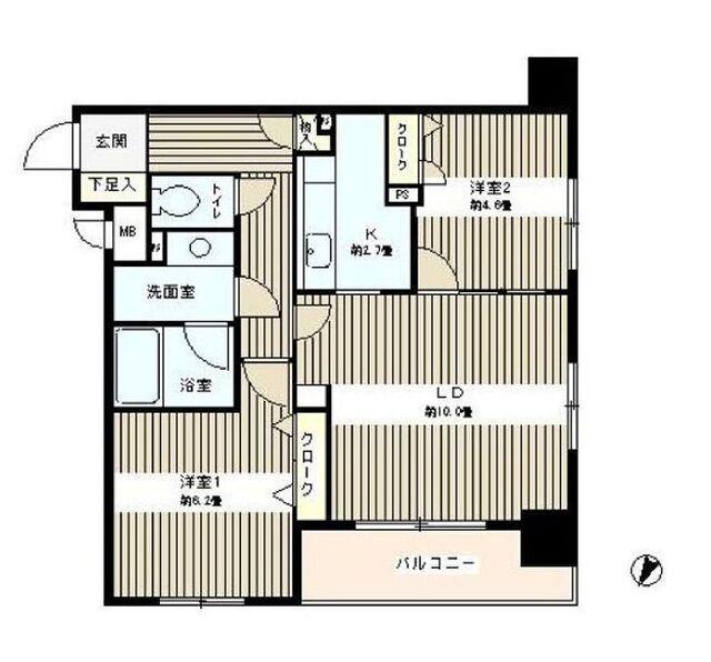
築年月
2000年1月
構造
鉄骨鉄筋コンクリート造
階数/戸数
地上12階建て / -
管理形態
-
建物設備
オートロック/宅配BOX
管理会社
-
施工会社
-
更新日:2026年1月12日

中央区日本橋浜町マンションの他の空室物件

2

周辺環境

  • 成城石井 日本橋浜町店:272m
    成城石井 日本橋浜町店:272m
  • まいばすけっと 清洲橋西店:352m
    まいばすけっと 清洲橋西店:352m
  • ファミリーマート日本橋浜町Fタワー店:271m
    ファミリーマート日本橋浜町Fタワー店:271m
  • ローソンLTF日本橋中洲店:500m
    ローソンLTF日本橋中洲店:500m
  • くすりの福太郎  森下駅前店:814m
    くすりの福太郎  森下駅前店:814m
  • ポニークリーニング浜町3丁目店:221m
    ポニークリーニング浜町3丁目店:221m
  • 永寿総合病院 柳橋分院:1554m
    永寿総合病院 柳橋分院:1554m
  • 東京東信用金庫 森下駅前支店:725m
    東京東信用金庫 森下駅前支店:725m
  • 江東区立 森下公園:797m
    江東区立 森下公園:797m
コンビニ
ファミリーマート日本橋浜町Fタワー店
271m
買物
成城石井 日本橋浜町店
272m
ショッピング施設
-
ドラッグストア
くすりの福太郎  森下駅前店
814m
ホームセンター
生活道具屋surou n.n
1011m
病院
永寿総合病院 柳橋分院
1554m
役所
-
郵便局
-
図書館
-
交番
-
公園
江東区立 森下公園
797m
銀行
東京東信用金庫 森下駅前支店
725m
幼稚園
-
小学校
-
中学校
-
高校
-

中央区日本橋浜町マンションの近隣物件

前へ
次へ

生活情報

中央区の暮らしデータ

中央区は、江戸以来、400年以上にわたって日本の文化・商業・情報の中心として発展してきた由緒あるまちです。1947年に日本橋区と京橋区が統合され、現在の中央区が誕生しました。面積はわずか約10km2ですが、美しい水辺の景観や全国的に有名な「銀座」「日本橋」「築地」「月島」など魅力的なスポットを擁する、「遊」「職」「住」の三拍子そろった活気と魅力にあふれる都心のまちです。

基本データ

市区役所所在地 中央区築地1-1-1
公式ホームページURL https://www.city.chuo.lg.jp//
総人口 169,179人
人口増減率(2015年/2020年) 119.8%
中央区の生活情報を詳しくみる

地域のおすすめ情報ブログ

一覧を見る

取扱店舗

株式会社リライフ
交通
四ツ谷駅 徒歩3分JR中央総武線・東京メトロ丸ノ内線・東京メトロ南北線四谷三丁目駅 徒歩9分東京メトロ丸ノ内線
営業時間
10:00 〜 18:30
定休日
毎週水曜日(1月〜3月を除く)