前へ
次へ
前へ
次へ
賃貸マンション

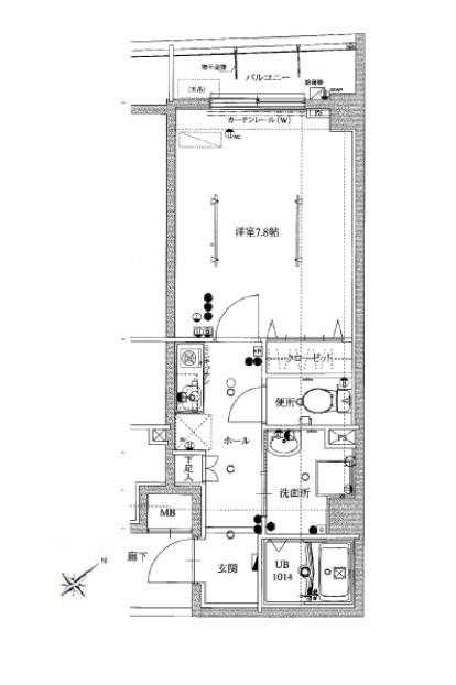
北区上中里マンション

NEW
  • 東京都北区上中里1丁目 MAP
    • JR京浜東北・根岸線 「上中里駅」 徒歩5分 / 東京メトロ南北線 「西ケ原駅」 徒歩10分 / JR東北本線 「尾久駅」 徒歩8分
築年月
2007年3月
構造
鉄筋コンクリート造
階数/戸数
地上4階建て / -
管理形態
-
建物設備
オートロック/宅配BOX
管理会社
-
施工会社
-
更新日:2026年1月14日

北区上中里マンションの他の空室物件

1

周辺環境

  • マルエツ プチ 上中里店:370m
    マルエツ プチ 上中里店:370m
  • マルエツプチ 駒込店:743m
    マルエツプチ 駒込店:743m
  • セブンイレブン 北区上中里2丁目店:404m
    セブンイレブン 北区上中里2丁目店:404m
  • セブンイレブン 北区上中里2丁目店:408m
    セブンイレブン 北区上中里2丁目店:408m
  • スギ薬局西ケ原店:537m
    スギ薬局西ケ原店:537m
  • 三菱UFJ銀行駒込支店:1128m
    三菱UFJ銀行駒込支店:1128m
コンビニ
セブンイレブン 北区上中里2丁目店
404m
買物
マルエツ プチ 上中里店
370m
ショッピング施設
-
ドラッグストア
スギ薬局西ケ原店
537m
ホームセンター
コーナンPRO 王子堀船店
1269m
病院
花と森の東京病院
669m
役所
-
郵便局
-
図書館
-
交番
-
公園
都立 旧古河庭園
558m
銀行
三菱UFJ銀行駒込支店
1128m
幼稚園
-
小学校
-
中学校
-
高校
-

北区上中里マンションの近隣物件

前へ
次へ

生活情報

北区の暮らしデータ

北区は、武蔵野台地の縁辺部から東京低地へと連続した地勢を有し、荒川、隅田川、石神井川といった水辺空間に囲まれた、緑豊かな自然が魅力のまちです。これら河川周辺は憩いの空間として整備されており、週末にはスポーツやレジャーを楽しむ多くの人々で賑わっています。一方、JRの駅が都内最多の11駅あり、加えて、地下鉄・都電が区内各所を走り、交通の利便性が抜群です。また、子どもが安心して遊べる公園が数多く設置され、商店街も活気があり、暮らしやすい環境がそろっています。

基本データ

市区役所所在地 北区王子本町1-15-22
公式ホームページURL https://www.city.kita.lg.jp//
総人口 355,213人
人口増減率(2015年/2020年) 104.1%
北区の生活情報を詳しくみる

地域のおすすめ情報ブログ

取扱店舗

株式会社リライフ
交通
四ツ谷駅 徒歩3分JR中央総武線・東京メトロ丸ノ内線・東京メトロ南北線四谷三丁目駅 徒歩9分東京メトロ丸ノ内線
営業時間
10:00 〜 18:30
定休日
毎週水曜日(1月〜3月を除く)