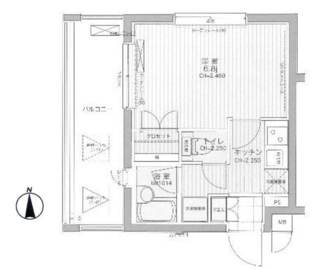
賃貸マンション
杉並区上高井戸マンション
NEW-
東京都杉並区上高井戸1丁目 MAP
-
- 京王線 「八幡山駅」 徒歩3分 / 京王線 「芦花公園駅」 徒歩8分 / 京王線 「上北沢駅」 徒歩11分
- 築年月
- 2004年3月
- 構造
- 鉄筋コンクリート造
- 階数/戸数
- 地上5階建て / 48戸
- 管理形態
- -
- 建物設備
- オートロック/宅配BOX/分譲マンションタイプ
- 管理会社
- -
- 施工会社
- -
更新日:2026年1月31日
杉並区上高井戸マンションの他の空室物件
1
件
お問い合わせお待ちしております!
周辺環境
-
京王ストア 八幡山店:139m -
まいばすけっと八幡山駅前店:161m -
セブンイレブン八幡山駅北口店:220m -
ファミリーマート 環八八幡山店:278m -
スワローチェーン 八幡山店:216m -
東京都立松沢病院:784m -
オリンピック高井戸店:2199m -
三菱UFJ銀行上北沢支店:969m -
蘆花恒春園:1052m
- コンビニ
-
セブンイレブン八幡山駅北口店220m
- 買物
-
京王ストア 八幡山店139m
- ショッピング施設
-
-
- ドラッグストア
-
ココカラファイン ヘルスケアセイ596m
- ホームセンター
-
オリンピック高井戸店2199m
- 病院
-
東京都立松沢病院784m
- 役所
-
-
- 郵便局
-
-
- 図書館
-
-
- 交番
-
-
- 公園
-
蘆花恒春園1052m
- 銀行
-
三菱UFJ銀行上北沢支店969m
- 幼稚園
-
-
- 小学校
-
-
- 中学校
-
-
- 高校
-
-
杉並区上高井戸マンションの近隣物件
生活情報
杉並区の暮らしデータ
杉並区は、東京23区の最西部に位置し、地名は江戸時代の初めに領地の境である青梅街道に沿って植えられた杉並木が由来となっています。杉並木はなくなりましたが、村名、町名として採用され、1932年の区制施行を経て現在に至っています。関東大震災以降、農村的たたずまいから住宅地へと変貌を遂げ、文化人や学者が多数移住するなど、今日に至るまで良好な住宅都市として発展を続けています。
基本データ
| 市区役所所在地 | 杉並区阿佐谷南1-15-1 |
|---|---|
| 公式ホームページURL | https://www.city.suginami.tokyo.jp// |
| 総人口 | 591,108人 |
| 人口増減率(2015年/2020年) | 104.8% |
地域のおすすめ情報ブログ
一覧を見る
-
高円寺駅南口広場イルミネーションご無沙汰しております!ピタットハウス高円寺店です♪先日11月22日(土)当店が加盟している高円寺南商店会主催の「高円寺駅南口広場...続きを読む -
仕事は都心、暮らしは静かに都心へのアクセスは抜群!東京メトロ丸ノ内線「東高円寺」駅から新宿までわずか約6分。それでいて、駅周辺には大型商業施設が少なく、ど...続きを読む -
分譲賃貸マンション・ペット可【方南町】グループ650店舗のネットワークでお客様のお部屋探しをサポートする方南町唯一の大手不動産会社ピタットハウス方南町店です。お部屋の...続きを読む -
杉並区和泉のマーケット特性と単身者需要グループ650店舗のネットワークでお客様のお部屋探しをサポートする方南町唯一の大手不動産会社ピタットハウス方南町店です。【杉並区...続きを読む
取扱店舗
株式会社リライフ
- 交通
- 四ツ谷駅 徒歩3分JR中央総武線・東京メトロ丸ノ内線・東京メトロ南北線四谷三丁目駅 徒歩9分東京メトロ丸ノ内線
- 営業時間
- 10:00 〜 18:30
- 定休日
- 毎週水曜日(1月〜3月を除く)