前へ
次へ
前へ
次へ
賃貸マンション

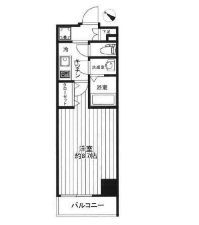
中央区新川マンション

NEW
  • 東京都中央区新川2丁目 MAP
    • JR京葉線 「八丁堀駅」 徒歩4分 / 東京メトロ日比谷線 「八丁堀駅」 徒歩4分 / 東京メトロ有楽町線 「新富町駅」 徒歩11分
築年月
2022年8月
構造
鉄筋コンクリート造
階数/戸数
地上11階建て / -
管理形態
-
建物設備
オートロック/宅配BOX
管理会社
-
施工会社
-
更新日:2026年2月19日

中央区新川マンションの他の空室物件

1

周辺環境

  • まいばすけっと新川2丁目店:292m
    まいばすけっと新川2丁目店:292m
  • 肉のハナマサ 新川店:661m
    肉のハナマサ 新川店:661m
  • ファミリーマート新川中央大橋店:61m
    ファミリーマート新川中央大橋店:61m
  • ナチュラルローソン新川二丁目店:167m
    ナチュラルローソン新川二丁目店:167m
  • ポニークリーニング新川2丁目店:49m
    ポニークリーニング新川2丁目店:49m
  • 中央新川二郵便局:283m
    中央新川二郵便局:283m
  • みずほ銀行 深川支店:949m
    みずほ銀行 深川支店:949m
コンビニ
ファミリーマート新川中央大橋店
61m
買物
まいばすけっと新川2丁目店
292m
ショッピング施設
-
ドラッグストア
スギドラッグ新川一丁目店
658m
ホームセンター
ROUND ROBIN
494m
病院
-
役所
-
郵便局
中央新川二郵便局
283m
図書館
-
交番
-
公園
佃公園
452m
銀行
みずほ銀行 深川支店
949m
幼稚園
-
小学校
-
中学校
-
高校
-

中央区新川マンションの近隣物件

前へ
次へ

生活情報

中央区の暮らしデータ

中央区は、江戸以来、400年以上にわたって日本の文化・商業・情報の中心として発展してきた由緒あるまちです。1947年に日本橋区と京橋区が統合され、現在の中央区が誕生しました。面積はわずか約10km2ですが、美しい水辺の景観や全国的に有名な「銀座」「日本橋」「築地」「月島」など魅力的なスポットを擁する、「遊」「職」「住」の三拍子そろった活気と魅力にあふれる都心のまちです。

基本データ

市区役所所在地 中央区築地1-1-1
公式ホームページURL https://www.city.chuo.lg.jp//
総人口 169,179人
人口増減率(2015年/2020年) 119.8%
中央区の生活情報を詳しくみる

地域のおすすめ情報ブログ

一覧を見る

取扱店舗

株式会社リライフ
交通
四ツ谷駅 徒歩3分JR中央総武線・東京メトロ丸ノ内線・東京メトロ南北線四谷三丁目駅 徒歩9分東京メトロ丸ノ内線
営業時間
10:00 〜 18:30
定休日
毎週水曜日(1月〜3月を除く)