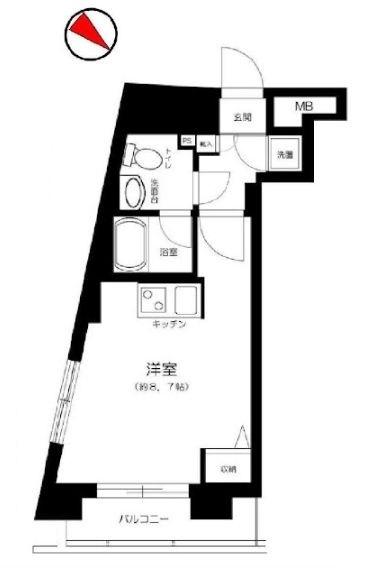
賃貸マンション
中野区新井マンション
NEW-
東京都中野区新井1丁目 MAP
-
- 西武新宿線 「新井薬師前駅」 徒歩8分 / JR総武・中央緩行線 「中野駅」 徒歩13分 / 西武新宿線 「沼袋駅」 徒歩10分
- 築年月
- 2004年7月
- 構造
- 鉄筋コンクリート造
- 階数/戸数
- 地上7階建て / -
- 管理形態
- -
- 建物設備
- オートロック/宅配BOX/分譲マンションタイプ
- 管理会社
- -
- 施工会社
- -
更新日:2026年4月28日
中野区新井マンションの他の空室物件
1
件
お問い合わせお待ちしております!
周辺環境
-
ライフ 中野新井店:280m -
まいばすけっと 中野新井1丁目店:413m -
セブンイレブン 中野新井4丁目店:63m -
ファミリーマート 新井薬師店:271m -
スギ薬局 新井薬師店:247m -
中野新井郵便局:248m
- コンビニ
-
セブンイレブン 中野新井4丁目店63m
- 買物
-
ライフ 中野新井店280m
- ショッピング施設
-
中野ブロードウェイ653m
- ドラッグストア
-
スギ薬局 新井薬師店247m
- ホームセンター
-
-
- 病院
-
中野共立病院664m
- 役所
-
-
- 郵便局
-
中野新井郵便局248m
- 図書館
-
-
- 交番
-
-
- 公園
-
新井薬師公園151m
- 銀行
-
-
- 幼稚園
-
-
- 小学校
-
-
- 中学校
-
-
- 高校
-
-
中野区新井マンションの近隣物件
生活情報
中野区の暮らしデータ
中野区は、1889年、甲武鉄道(現・中央線)の開通で中野駅が開設され、近郊住宅地として発展しました。その後、西武新宿線や地下鉄丸の内線の開通により人口増加と宅地化が一層進行しました。人口密度は東京23区の中でも上位に位置し、世帯の6割以上は単身世帯、また、65歳以上の人口は、約19.4%を占めています。最も多い年齢層は、25〜29歳となっています(2025年6月現在)。中野駅周辺のまちづくりの進展により、2012年にオープンした「中野四季の都市(まち)」に大学や企業が集積し、占めている昼間人口が増えました。さらに、中野駅周辺各地区の再開発により、中野が「東京の新たなエネルギーを生み出す活動拠点」となることを目指しています。
基本データ
| 市区役所所在地 | 中野区中野4-11-19 |
|---|---|
| 公式ホームページURL | https://www.city.tokyo-nakano.lg.jp// |
| 総人口 | 344,880人 |
| 人口増減率(2015年/2020年) | 105.1% |
地域のおすすめ情報ブログ
一覧を見る
-
店の壁までおしゃれな帽子屋さん中野店新人の小林です!最近暑くなってきて4月なのに春とは思えない気候ですね、今日は中野店から徒歩3分の場所にある素敵な店主のおし...続きを読む -
素敵なお花屋さんピタットハウス中野店新人の小林です!本日は中野駅から南口を出て徒歩3分の素敵なお花屋さんです♪店内はカラフルなお花と花のいい匂い...続きを読む -
街のおいしいすてきなカフェピタットハウス中野店新人の小林です!今日は中野駅から徒歩約10分のところにある【カフェサンマリノ】を紹介します??ドリンクも食べ...続きを読む -
中野店スタッフ大人気のフォーのお店ピタットハウス中野店新人の小林です!今日は中野店のスタッフにも大人気駅から徒歩5分の場所にあるフォーのおいしいお店を紹介します♪...続きを読む
取扱店舗
株式会社リライフ
- 交通
- 四ツ谷駅 徒歩3分JR中央総武線・東京メトロ丸ノ内線・東京メトロ南北線四谷三丁目駅 徒歩9分東京メトロ丸ノ内線
- 営業時間
- 10:00 〜 18:30
- 定休日
- 毎週火水曜日(1月〜3月を除く)