★共用屋上テラス・ワークスペース有り

お気軽にお問い合わせください!
物件情報・周辺環境・契約手続きについてなどお気軽にお問い合わせください。
設備・条件
|
|
---|---|
|
|
|
|
|
|
|
|
|
|
|
|
|
|
物件概要
物件種別
部屋種別 | マンション | ||
---|---|---|---|
建物名称 | スタイリオ池上WeLL(405) | ||
所在地 | 東京都大田区池上7丁目 | ||
築年月 | 2024年1月 | 階数 | 5階建ての4階 |
建物構造 | 鉄筋コンクリート造 | 総戸数 | 45戸 |
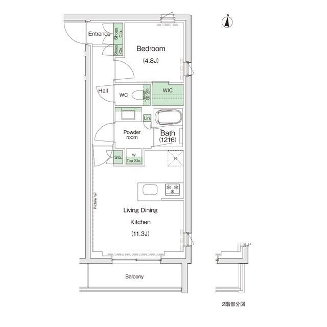
間取り | 1LDK(LDK11.3帖 洋4.8帖) | 専有面積 | 42.63㎡ |
向き | 南 | バルコニー面積 | - |
その他 | - |
費用
賃料 |
19.3万円
初期費用の確認をする
|
共益費 | 15,000円 |
---|---|---|---|
礼金 | - | 敷金 | 19.3万円 |
保証金 | - | 償却金 | - |
その他一時金 | 清掃費:45980円 / エアコン清掃費:11000円 | ||
その他月額費用 | - | ||
住宅保険 | 要加入(2年16550円) | ||
保証会社 | 必須 | ||
保証会社補足 | あんしんQ−Rent 初回保証料:賃料等の50%(最低2万)、月次保証料:賃料等の1% | ||
更新料 | 更新後賃料:1ヶ月 | 更新事務手数料 | - |
契約条件
貸家契約区分 | 普通賃貸借 | 契約期間 | 2年 |
---|---|---|---|
入居可能日 |
2026年1月20日予定
空室状況を確認をする
|
引渡時期相談内容 | - |
フリーレント | あり 2ヶ月 賃料のみ※2年未満解約時賃料2ヶ月違約金 | ||
クレジットカード決済 | - |
駐車場
駐車場 |
なし
駐車場について質問する
|
||
---|---|---|---|
駐車場契約形態 | - | ||
駐車場備考 | - | ||
バイク置き場 | - | ||
駐輪場 | - |
備考
その他 | ■指定保証会社利用必須※一部法人契約除く敷金賃料2ヶ月分■ペット飼育不可、楽器演奏不可、事務所・SOHO利用不可■礼金0ヶ月■フリーレント2ヶ月※賃料のみ、2年未満解約時賃料2ヶ月違約金有■屋上テラス6〜22時、ワークスペース7時〜22時の間で利用可能■解約予告2ヵ月前。 | ||
---|---|---|---|
関連リンク | |||
取引態様 | 媒介 | 管理コード | 4311866 |
情報登録(更新)日 | 2025年10月20日 | 次回更新予定日 | 2025年10月26日 |
取扱店舗

ピタットハウスでは信頼されるサイトを目指して、物件情報の精度向上に努めています。
掲載物件に誤りがある場合は
こちら からご連絡ください。現状と異なる場合は、現状を優先させていただきます。
取引態様の欄に「媒介」と表示された物件は「仲介物件」です。ご成約の際には仲介手数料を申し受けます。
その他の取扱店舗
不動産会社毎に募集条件等が異なる場合があります。詳細は各店の物件詳細ページにてご確認ください。- 交通
- JR山手線「新宿」駅徒歩6分都営大江戸線「新宿西口」駅徒歩2分
- 営業時間
- 09:30 〜 18:30
- 定休日
- 毎週水曜日・2月・3月は無休、夏季休暇無し・年末年始
- 交通
- JR中央線「阿佐ヶ谷駅」南口徒歩1分ロータリーに面した駅直結の店舗です。
- 営業時間
- 10:00 〜 19:00
- 定休日
- 毎週火・水曜日・1月から3月は毎日営業・夏季休業8/12から8/20まで
- 交通
- 東横線「都立大学駅」の改札を出て左へ。1Fにラーメン屋さんがあるビルの3Fです。
- 営業時間
- 10:00 〜 18:30
- 定休日
- 毎週火曜日・水曜日
- 交通
- JR中央線 『武蔵境駅』 南口より 徒歩30秒 駐車場有
- 営業時間
- 10:00 〜 19:00
- 定休日
- 毎週水曜日・夏季休業・8/12から8/20まで
生活情報
大田区の暮らしデータ
大田区は、1947年3月15日に当時の大森区と蒲田区が合併して誕生しました。東京都の東南部に位置し、海と川に臨み、昔から人が住みやすく、交通の要路として栄えてきました。江戸期は農漁村で、海岸の大森・糀谷・羽田地区では1963年頃まで海苔の養殖が盛んに行われました。大正期以降、中小工場が進出し、低地部は住宅や工場が密集する商業・工業地域を形成し、京浜工業地帯の一部となっています。また、台地部は、田園調布、雪谷、久が原など比較的緑の多い住宅地です。臨海部は埋め立て地で、羽田空港をはじめトラックターミナルや市場など物流施設のほか、工場団地、野鳥公園など都市機能施設が整備されています。
基本データ
市区役所所在地 | 大田区蒲田5-13-14 |
---|---|
公式ホームページURL | https://www.city.ota.tokyo.jp/ |
総人口 | 748,081人 |
人口増減率(2015年/2020年) | 104.3% |
地域のおすすめ情報ブログ
一覧を見る
-
夏休みのおやつは伊勢屋こんにちは!ピタットハウス蒲田店です。今回は、東急多摩川線・矢口渡駅からすぐ、矢口の渡商店会の中にある「伊勢屋」さんをご紹介しま...続きを読む
-
矢口渡でマグロといえばここ!本日は、矢口渡にある和泉水産まぐろ専門店さんをご紹介します。まぐろ専門店を謳われてるだけあって廉価で美味しいまぐろを店内でもお家...続きを読む
-
もちもちのパン本日は鵜の木にある人気のパン屋さん「マルアベーカリー」さんをご紹介いたします!たくさんのコインランドリーが並ぶ中、かわいらしい看...続きを読む
-
自家製そばで夏を乗り切る!本日は大森駅北口にある【そば処笑庵】さんをご紹介させていただきます。昼は丼ものとお蕎麦の定食をメインに、夜は自家製の二八蕎麦とお...続きを読む
池上駅近隣の駅から探す
大田区の近隣エリアから探す
FAQ
-
A. スタイリオ池上WeLL(AAB4311866_279)の内見は、見学予約でお問い合わせいただくか、直接鵜の木店(0037-6001-04596)までご連絡ください。
-
A. 可能です。スタイリオ池上WeLL(AAB4311866_279)周辺の情報は、ピタットハウスの地域情報ブログ「街ピタ」や住みたい街の暮らしデータをご活用ください。
-
A. スタイリオ池上WeLL(AAB4311866_279)の費用は、こちらよりお問い合わせいただくか、直接鵜の木店(0037-6001-04596)までご連絡ください。
-
A. はい、可能です。賃貸希望物件リクエストをご利用ください。スタイリオ池上WeLL(AAB4311866_279)に似た物件も合わせてご紹介させていただきます。