前へ
次へ
前へ
次へ
マンション

テラス杉並方南町(111)

23.4 万円
共益費 23,000
23.4万円
-
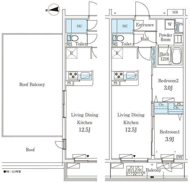
間取り
3LDK
専有面積
54.87㎡
所在階
5階建ての1階
向き
  • アイコン: 住所 東京都杉並区堀ノ内2丁目
  • アイコン: 交通 東京メトロ丸ノ内方南支線 「方南町駅」 徒歩6分
簡単無料
アイコン: お電話 0037-6001-05701
IP電話ご利用のお客様 : 03-3317-9117
ピタットハウス
方南町店
お気軽にお問い合わせください!
簡単無料
お気軽にお問い合わせください!
物件情報・周辺環境・契約手続きについてなどお気軽にお問い合わせください。

設備・条件

建物・立地
  • エレベータ
  • 宅配ボックス
  • 敷地内ごみ置き場
  • 常時ゴミ出し可能
  • バイク置場
通信
  • CATV
  • BSアンテナ
  • CSアンテナ
セキュリティ
  • オートロック
部屋設備
  • フローリング
  • バルコニー
  • 室内洗濯機置場
冷暖房
  • エアコン
キッチン
  • システムキッチン
  • グリル
バス・トイレ
  • バス・トイレ別
  • 浴室乾燥機
  • 追い焚き風呂
  • 独立洗面台
特徴
  • ペット相談可
  • 事務所利用不可
  • フリーレント1ヶ月

物件概要

物件種別

部屋種別 マンション
建物名称 テラス杉並方南町(111)
所在地 東京都杉並区堀ノ内2丁目 MAP
築年月 2024年9月 階数 5階建ての1階
建物構造 鉄筋コンクリート造 総戸数 -
間取り 3LDK 専有面積 54.87㎡
向き バルコニー面積 6.00㎡
その他 管理形態:日勤管理 

費用

賃料 23.4万円 初期費用の確認をする 初期費用の確認をする 共益費 23,000円
礼金 - 敷金 23.4万円
保証金 - 償却金 -
その他一時金 室内清掃費:84499円 / 鍵交換費:22000円
その他月額費用 口座振替事務手数料:220円/月
住宅保険 要加入
保証会社 必須
保証会社補足 初回保証委託料(最低15,000円):月額賃料等の50%、 2年目以降:10,000円/年
更新料 更新後賃料:1ヶ月 更新事務手数料 -

契約条件

貸家契約区分 普通賃貸借 契約期間 2年
入居可能日 2026年6月20日予定 空室状況を確認をする 空室状況を確認をする 引渡時期相談内容 -
フリーレント あり 1ヶ月
クレジットカード決済 -

駐車場

駐車場 なし 駐車場について質問する 駐車場について質問する
駐車場契約形態 -
駐車場備考 -
バイク置き場 -
駐輪場 -

備考

その他
関連リンク
取引態様 媒介 管理コード 4464401
情報登録(更新)日 2026年4月15日 次回更新予定日 2026年4月22日
備考 めやす賃料:

めやす賃料とは賃料、共益費・管理費、敷引金、更新料を含み、賃料等条件の改定がないものと仮定して4年間賃借した場合(定期借家の場合は契約期間)の1ヶ月当たりの金額です。

※敷引金は、敷金の償却、保証金の償却など、預かった金額から必ず引くものをいいます。
※めやす賃料は、消費者に適切な情報を提供するための表示であり事業者に一時金を推奨するものではありません。
※めやす賃料は、実際の総支払額と異なる場合があります。詳しくは不動産会社にご確認ください。  

取扱店舗

ピタットハウス方南町店
ピタットハウス方南町店
City Area株式会社
交通
東京メトロ丸ノ内線 方南町駅 東改札2番出口を出てから徒歩1分
営業時間
09:00 〜 18:00
定休日
毎週水曜日・年末年始(12/30〜1/5)
お電話 0037-6001-05701 無料
メール お問い合わせ
  • お問い合わせ区分

  • 内見希望日時

    第一希望

    第二希望

  • お名前

    全角
  • ご希望の連絡方法

    メールアドレス

    電話番号

    半角
    半角
  • その他ご希望等

ピタットハウスの個人情報の取り扱いについて

ピタットハウスでは信頼されるサイトを目指して、物件情報の精度向上に努めています。
掲載物件に誤りがある場合は こちら からご連絡ください。現状と異なる場合は、現状を優先させていただきます。
取引態様の欄に「媒介」と表示された物件は「仲介物件」です。ご成約の際には仲介手数料を申し受けます。

その他の取扱店舗

不動産会社毎に募集条件等が異なる場合があります。詳細は各店の物件詳細ページにてご確認ください。
交通
JR線「新宿」駅西口より徒歩6分、都営大江戸線「新宿西口」駅D5出口より徒歩2分
営業時間
09:30 〜 18:30
定休日
毎週水曜日・GW休暇、5月2日(土)〜5月6日(水)・2月・3月は無休、夏季休暇無し
お電話 0037-6001-05237 無料
交通
JR中央線「阿佐ヶ谷駅」南口徒歩1分ロータリーに面した駅直結の店舗です。
営業時間
10:00 〜 19:00
定休日
毎週火・水曜日・1月から3月は毎日営業・冬期休業12/28から1/4まで
  • キッズスペースあり
お電話 0037-6001-07674 無料
交通
JR中央線 『武蔵境駅』 南口より 徒歩30秒 駐車場有 
営業時間
10:00 〜 19:00
定休日
毎週水曜日・冬期休業・12/28から1/4まで
  • 近隣駐車場あり/キッズスペースあり
お電話 0037-6001-08163 無料

生活情報

杉並区の暮らしデータ

杉並区は、東京23区の最西部に位置し、地名は江戸時代の初めに領地の境である青梅街道に沿って植えられた杉並木が由来となっています。杉並木はなくなりましたが、村名、町名として採用され、1932年の区制施行を経て現在に至っています。関東大震災以降、農村的たたずまいから住宅地へと変貌を遂げ、文化人や学者が多数移住するなど、今日に至るまで良好な住宅都市として発展を続けています。

基本データ

市区役所所在地 杉並区阿佐谷南1-15-1
公式ホームページURL https://www.city.suginami.tokyo.jp/
総人口 591,108人
人口増減率(2015年/2020年) 104.8%
杉並区の生活情報を詳しくみる

地域のおすすめ情報ブログ

一覧を見る

方南町駅近隣の駅から探す

杉並区の近隣エリアから探す

FAQ

  • A. テラス杉並方南町(ABD4464401_286)の内見は、見学予約でお問い合わせいただくか、直接方南町店(0037-6001-05701)までご連絡ください。
  • A. 可能です。テラス杉並方南町(ABD4464401_286)周辺の情報は、ピタットハウスの地域情報ブログ「街ピタ」住みたい街の暮らしデータをご活用ください。
  • A. テラス杉並方南町(ABD4464401_286)の費用は、こちらよりお問い合わせいただくか、直接方南町店(0037-6001-05701)までご連絡ください。
  • A. はい、可能です。賃貸希望物件リクエストをご利用ください。テラス杉並方南町(ABD4464401_286)に似た物件も合わせてご紹介させていただきます。