JR東海道本線「横浜駅」徒歩9分 定期借家2年(再契約型)

お気軽にお問い合わせください!
物件情報・周辺環境・契約手続きについてなどお気軽にお問い合わせください。
設備・条件
|
|
---|---|
|
|
|
|
|
|
|
|
|
|
|
|
|
|
物件概要
物件種別
部屋種別 | マンション | ||
---|---|---|---|
建物名称 | ディームス横濱青木町(0702) | ||
所在地 | 神奈川県横浜市神奈川区青木町 | ||
築年月 | 2020年5月 | 階数 | 10階建ての7階 |
建物構造 | 鉄筋コンクリート造 | 総戸数 | 60戸 |
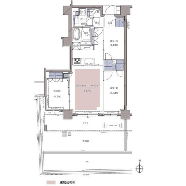
間取り | 2SLDK(LDK13.2帖 洋4帖 洋4帖 その他4帖 その他6帖) | 専有面積 | 70.95㎡ |
向き | 南 | バルコニー面積 | - |
その他 | - |
費用
賃料 |
29.6万円
初期費用の確認をする
|
共益費 | 15,000円 |
---|---|---|---|
礼金 | 29.6万円 | 敷金 | 29.6万円 |
保証金 | - | 償却金 | - |
その他一時金 | 鍵交換代:22000円 / 清掃費:73700円 / エアコン清掃費:55000円 | ||
その他月額費用 | - | ||
住宅保険 | 要加入(2年16550円) | ||
保証会社 | 必須 | ||
保証会社補足 | エポスカード(RP) 保証料:賃料等の50%(最低2万)、月額保証料:賃料等の1%(更新料無) | ||
更新料 | - | 更新事務手数料 | - |
契約条件
貸家契約区分 | 定期賃貸借 | 契約期間 | 2年 |
---|---|---|---|
入居可能日 |
相談
空室状況を確認をする
|
引渡時期相談内容 | - |
フリーレント | - | ||
クレジットカード決済 | - |
駐車場
駐車場 |
なし
駐車場について質問する
|
||
---|---|---|---|
駐車場契約形態 | - | ||
駐車場備考 | - | ||
バイク置き場 | - | ||
駐輪場 | - |
備考
その他 | ■定期借家2年(再契約型) ■ペット飼育可 (小型犬1匹または猫1匹まで)※敷金積み増し1ヶ月 ■全居室エアコン・照明付 ■非接触電気錠採用(Raccess)(LDK一部) ■インターネット無料(auひかりマンション 03-6678-0903) | ||
---|---|---|---|
関連リンク | |||
取引態様 | 媒介 | 管理コード | 3614667 |
情報登録(更新)日 | 2025年10月10日 | 次回更新予定日 | 2025年10月16日 |
取扱店舗

ピタットハウス井土ヶ谷店
株式会社0
- 交通
- 京急本線「井土ヶ谷」駅から南に徒歩約3分。駐車場もありますのでお車でも大丈夫です。
- 営業時間
- 10:00 〜 19:00
- 定休日
- 毎週水曜日
ピタットハウスでは信頼されるサイトを目指して、物件情報の精度向上に努めています。
掲載物件に誤りがある場合は
こちら からご連絡ください。現状と異なる場合は、現状を優先させていただきます。
取引態様の欄に「媒介」と表示された物件は「仲介物件」です。ご成約の際には仲介手数料を申し受けます。
その他の取扱店舗
不動産会社毎に募集条件等が異なる場合があります。詳細は各店の物件詳細ページにてご確認ください。- 交通
- 相鉄いずみ野線『緑園都市駅』下車。徒歩14分
- 営業時間
- 09:00 〜 18:00
- 定休日
- 火・水曜日
- 交通
- JR山手線「新宿」駅徒歩6分都営大江戸線「新宿西口」駅徒歩2分
- 営業時間
- 09:30 〜 18:30
- 定休日
- 毎週水曜日・2月・3月は無休、夏季休暇無し・年末年始
生活情報
横浜市の暮らしデータ
横浜市は、神奈川県の東端に位置し、東は東京湾、北は川崎市、西は町田市・大和市・藤沢市、南は鎌倉市・逗子市・横須賀市に接しています。横浜市の中心部から東京都心部までは、約30kmです。国を代表する国際貿易港である横浜港を基盤として、首都圏の中核都市としての役割を担っています。総面積は、約435km2で、これは東京23区の約7割にあたります。
基本データ
市区役所所在地 | 横浜市中区本町6-50-10 |
---|---|
公式ホームページURL | https://www.city.yokohama.lg.jp/ |
総人口 | 3,777,491人 |
人口増減率(2015年/2020年) | 101.4% |
地域のおすすめ情報ブログ
一覧を見る
-
美味しくてリーズナブルな焼肉屋さん皆さんこんにちは!ピタットハウス横浜元町店です!本日は、黄金町駅より徒歩3分のところにある「焼肉・友」さんをご紹介いたします!中...続きを読む
-
撮る前に食べちゃった行ってきました、丸源ラーメン瀬谷店!看板メニューの「熟成醤油ラーメン肉そば」。……が、あまりにおいしそうで、つい、つい、箸が先に...続きを読む
-
味噌ラーメン専門「田所商店 瀬谷店」瀬谷にある味噌ラーメン専門田所商店瀬谷店さんへ。全国各地の味噌を使ったラーメンが楽しめる人気店です。メニューの魅力田所商店といえ...続きを読む
-
居酒屋さんのランチ!皆さんこんにちは!ピタットハウス横浜元町店です!本日は、目利きの銀次さんをご紹介いたします!こちらは石川町駅から徒歩2分ほどのと...続きを読む
横浜市神奈川区の近隣エリアから探す
FAQ
-
A. ディームス横濱青木町(ABZ3614667_88)の内見は、見学予約でお問い合わせいただくか、直接井土ヶ谷店(0037-6001-03993)までご連絡ください。
-
A. 可能です。ディームス横濱青木町(ABZ3614667_88)周辺の情報は、ピタットハウスの地域情報ブログ「街ピタ」や住みたい街の暮らしデータをご活用ください。
-
A. ディームス横濱青木町(ABZ3614667_88)の費用は、こちらよりお問い合わせいただくか、直接井土ヶ谷店(0037-6001-03993)までご連絡ください。
-
A. はい、可能です。賃貸希望物件リクエストをご利用ください。ディームス横濱青木町(ABZ3614667_88)に似た物件も合わせてご紹介させていただきます。