前へ
次へ
前へ
次へ
マンション

パークヒルズ横浜星川(404)

NEW
14.1 万円
共益費 8,000
14.1万円
14.1万円
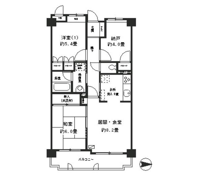
間取り
2SDK
専有面積
60.55㎡
所在階
5階建ての4階
向き
  • アイコン: 住所 神奈川県横浜市保土ケ谷区桜ケ丘2丁目
  • アイコン: 交通 相鉄本線 「星川駅」 徒歩11分
簡単無料
アイコン: お電話 0037-6001-03993
IP電話ご利用のお客様 : 045-714-0050
ピタットハウス
井土ヶ谷店
お気軽にお問い合わせください!
簡単無料
お気軽にお問い合わせください!
物件情報・周辺環境・契約手続きについてなどお気軽にお問い合わせください。

設備・条件

建物・立地
  • エレベータ
  • 敷地内駐車場
  • 敷地内ごみ置き場
  • バイク置場
通信
  • インターネット対応
  • CATV
  • BSアンテナ
セキュリティ
  • オートロック
部屋設備
  • フローリング
  • バルコニー
  • 室内洗濯機置場
冷暖房
  • エアコン
キッチン
  • システムキッチン
  • グリル
バス・トイレ
  • バス・トイレ別
  • 浴室乾燥機
  • 追い焚き風呂
  • 独立洗面台
特徴
  • ピアノ相談可
  • 事務所利用不可

物件概要

物件種別

部屋種別 マンション
建物名称 パークヒルズ横浜星川(404)
所在地 神奈川県横浜市保土ケ谷区桜ケ丘2丁目 MAP
築年月 1997年2月 階数 5階建ての4階
建物構造 鉄筋コンクリート造 総戸数 -
間取り 2SDK 専有面積 60.55㎡
向き バルコニー面積 8.00㎡
その他 管理形態:巡回管理 

費用

賃料 14.1万円 初期費用の確認をする 初期費用の確認をする 共益費 8,000円
礼金 14.1万円 敷金 14.1万円
保証金 - 償却金 -
その他一時金 室内清掃費:113228円 / 鍵交換費:33000円
その他月額費用 口座振替事務手数料:220円/月
住宅保険 要加入
保証会社 必須
保証会社補足 初回保証委託料(最低20,000円):月額賃料等の50%、 2年目以降:9,600円/年
更新料 更新後賃料:1ヶ月 更新事務手数料 -

契約条件

貸家契約区分 普通賃貸借 契約期間 2年
入居可能日 2026年5月22日予定 空室状況を確認をする 空室状況を確認をする 引渡時期相談内容 -
フリーレント -
クレジットカード決済 -

駐車場

駐車場 有り 月額22,000円 駐車場について質問する 駐車場について質問する
駐車場契約形態 -
駐車場備考 -
バイク置き場 -
駐輪場 -

備考

その他
関連リンク
取引態様 媒介 管理コード 3656126
情報登録(更新)日 2026年4月11日 次回更新予定日 2026年4月24日
備考 めやす賃料:

めやす賃料とは賃料、共益費・管理費、敷引金、更新料を含み、賃料等条件の改定がないものと仮定して4年間賃借した場合(定期借家の場合は契約期間)の1ヶ月当たりの金額です。

※敷引金は、敷金の償却、保証金の償却など、預かった金額から必ず引くものをいいます。
※めやす賃料は、消費者に適切な情報を提供するための表示であり事業者に一時金を推奨するものではありません。
※めやす賃料は、実際の総支払額と異なる場合があります。詳しくは不動産会社にご確認ください。  

取扱店舗

ピタットハウス井土ヶ谷店
ピタットハウス井土ヶ谷店
株式会社0
交通
京急本線「井土ヶ谷」駅から南に徒歩約3分。駐車場もありますのでお車でも大丈夫です。
営業時間
10:00 〜 19:00
定休日
毎週水曜日・※年末年始休暇※12月28日~1月4日
  • 駐車場あり/キッズスペースあり/中国語対応可
お電話 0037-6001-03993 無料
メール お問い合わせ
  • お問い合わせ区分

  • 内見希望日時

    第一希望

    第二希望

  • お名前

    全角
  • ご希望の連絡方法

    メールアドレス

    電話番号

    半角
    半角
  • その他ご希望等

ピタットハウスの個人情報の取り扱いについて

ピタットハウスでは信頼されるサイトを目指して、物件情報の精度向上に努めています。
掲載物件に誤りがある場合は こちら からご連絡ください。現状と異なる場合は、現状を優先させていただきます。
取引態様の欄に「媒介」と表示された物件は「仲介物件」です。ご成約の際には仲介手数料を申し受けます。

その他の取扱店舗

不動産会社毎に募集条件等が異なる場合があります。詳細は各店の物件詳細ページにてご確認ください。
交通
相鉄いずみ野線『緑園都市駅』下車。徒歩14分・『南万騎が原駅』下車。徒歩10分
営業時間
09:00 〜 18:00
定休日
火・水曜日・5/5(火)から5/8(金)GW休暇
  • 駐車場あり
お電話 0037-6001-07509 無料

生活情報

横浜市の暮らしデータ

横浜市は、神奈川県の東端に位置し、東は東京湾、北は川崎市、西は町田市・大和市・藤沢市、南は鎌倉市・逗子市・横須賀市に接しています。横浜市の中心部から東京都心部までは、約30kmです。国を代表する国際貿易港である横浜港を基盤として、首都圏の中核都市としての役割を担っています。総面積は、約435km2で、これは東京23区の約7割にあたります。

基本データ

市区役所所在地 横浜市中区本町6-50-10
公式ホームページURL https://www.city.yokohama.lg.jp/
総人口 3,777,491人
人口増減率(2015年/2020年) 101.4%
横浜市の生活情報を詳しくみる

地域のおすすめ情報ブログ

一覧を見る

星川駅近隣の駅から探す

横浜市保土ケ谷区の近隣エリアから探す

FAQ

  • A. パークヒルズ横浜星川(ABZ3656126_20)の内見は、見学予約でお問い合わせいただくか、直接井土ヶ谷店(0037-6001-03993)までご連絡ください。
  • A. 可能です。パークヒルズ横浜星川(ABZ3656126_20)周辺の情報は、ピタットハウスの地域情報ブログ「街ピタ」住みたい街の暮らしデータをご活用ください。
  • A. パークヒルズ横浜星川(ABZ3656126_20)の費用は、こちらよりお問い合わせいただくか、直接井土ヶ谷店(0037-6001-03993)までご連絡ください。
  • A. はい、可能です。賃貸希望物件リクエストをご利用ください。パークヒルズ横浜星川(ABZ3656126_20)に似た物件も合わせてご紹介させていただきます。