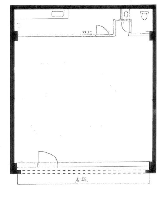
スケルトン
飲食店は不可

お気軽にお問い合わせください!
物件情報・周辺環境・契約手続きについてなどお気軽にお問い合わせください。
設備・条件
|
|
---|---|
|
|
物件概要
物件種別
部屋種別 | 店舗 | ||
---|---|---|---|
建物名称 | プチレジデンス(103) | ||
所在地 | 和歌山県和歌山市楠見中 MAP | ||
築年月 | 1988年4月 | 階数 | 3階建ての1階 |
建物構造 | 鉄筋コンクリート造 | 総戸数 | - |
間取り | 店舗 | 専有面積 | 38.61㎡ |
その他 | - |
費用
賃料 |
6.05万円
初期費用の確認をする
|
共益費 | - |
---|---|---|---|
礼金 | - | 敷金 | 11万円 |
保証金 | - | 償却金 | 6.0万円(解約時) |
その他一時金 | - | ||
その他月額費用 | - | ||
住宅保険 | 要加入 | ||
保証会社 | 必須 | ||
保証会社補足 | 実費 | ||
更新料 | - | 更新事務手数料 | - |
契約条件
貸家契約区分 | 普通賃貸借 | 契約期間 | 2年 |
---|---|---|---|
入居可能日 |
即可
空室状況を確認をする
|
||
フリーレント | - | ||
クレジットカード決済 | - |
駐車場
駐車場 |
有り 月額5,500円
駐車場について質問する
|
||
---|---|---|---|
駐車場契約形態 | - | ||
駐車場備考 | - | ||
バイク置き場 | - | ||
駐輪場 | - |
備考
その他 | 2年以内の解約の場合賃料1か月分の違約金に加え、値引き分の賃料を契約時に遡ってお支払い頂きます。 水道代、実費。 | ||
---|---|---|---|
関連リンク | |||
取引態様 | 媒介 | 管理コード | 3471106 |
情報登録(更新)日 | 2025年10月14日 | 次回更新予定日 | 2025年10月28日 |
プチレジデンス の他の空室物件
1
件
周辺環境
-
和歌山市立楠見東小学校:779m
-
和歌山市立紀之川中学校:2745m
-
あわ保育園:322m
-
和歌山市河北サービスセンター:1507m
-
和歌山楠見中郵便局:177m
-
和歌山市民図書館:2524m
-
和歌山県警察本部:3967m
-
愛晋会中江病院:402m
-
きのくに信用金庫楠見支店:45m
-
サンキョー楠見店:733m
-
セブンイレブン和歌山楠見中店:203m
-
ウエルシア和歌山楠見中店:211m
-
ジップドラッグ善明寺店:1693m
-
ジョーシン和歌山北店:1283m
-
TSUTAYA WAYガーデンパーク和歌山店:3297m
-
オー・ストリート和歌山北バイパス:1324m
- コンビニ
-
セブンイレブン和歌山楠見中店203m
- 買物
-
サンキョー楠見店733m
- ドラッグストア
-
ウエルシア和歌山楠見中店211m
- ホームセンター
-
ジョーシン和歌山北店1283m
- 病院
-
愛晋会中江病院402m
- 役所
-
和歌山市河北サービスセンター1507m
- 郵便局
-
和歌山楠見中郵便局177m
- 図書館
-
和歌山市民図書館2524m
- 交番
-
和歌山県警察本部3967m
- 銀行
-
きのくに信用金庫楠見支店45m
- 幼稚園
-
あわ保育園322m
- 小学校
-
和歌山市立楠見東小学校779m
- 中学校
-
和歌山市立紀之川中学校2745m
取扱店舗

ピタットハウス和歌山駅前店
株式会社スマートホーム
- 交通
- JR和歌山駅中央出口より南西に徒歩3分
- 営業時間
- 10:00 〜 19:00
- 定休日
- 冬季休業12/29〜1/4・GW 5/3〜6
ピタットハウスでは信頼されるサイトを目指して、物件情報の精度向上に努めています。
掲載物件に誤りがある場合は
こちら からご連絡ください。現状と異なる場合は、現状を優先させていただきます。
取引態様の欄に「媒介」と表示された物件は「仲介物件」です。ご成約の際には仲介手数料を申し受けます。
生活情報
和歌山市の暮らしデータ
和歌山市は、1889年4月1日に市制施行しました。紀伊半島の北西部に位置し、北はみどり豊かな和泉山脈ののどかな山並みに囲まれ、西は風光明媚な紀淡海峡に面し、紀の川の河口に位置する和歌山県の県都です。1997年4月から中核市となっています。
基本データ
市区役所所在地 | 和歌山市七番丁23 |
---|---|
公式ホームページURL | https://www.city.wakayama.wakayama.jp/ |
総人口 | 356,729人 |
人口増減率(2015年/2020年) | 98.0% |
紀ノ川駅近隣の駅から探す
FAQ
-
A. プチレジデンス(ACI001876_103)の内見は、見学予約でお問い合わせいただくか、直接和歌山駅前店(0037-6001-01210)までご連絡ください。
-
A. 可能です。プチレジデンス(ACI001876_103)周辺の情報は、ピタットハウスの地域情報ブログ「街ピタ」や住みたい街の暮らしデータをご活用ください。
-
A. プチレジデンス(ACI001876_103)の費用は、こちらよりお問い合わせいただくか、直接和歌山駅前店(0037-6001-01210)までご連絡ください。
-
A. はい、可能です。賃貸希望物件リクエストをご利用ください。プチレジデンス(ACI001876_103)に似た物件も合わせてご紹介させていただきます。