和歌山城前の貸事務所
各階に給湯室有り エレベーター2基 新耐震基準耐震補強工事実施済

お気軽にお問い合わせください!
物件情報・周辺環境・契約手続きについてなどお気軽にお問い合わせください。
設備・条件
|
|
---|---|
|
|
|
|
|
|
物件概要
物件種別
部屋種別 | 事務所 | ||
---|---|---|---|
建物名称 | 和歌山六番丁801ビル(204) | ||
所在地 | 和歌山県和歌山市六番丁 MAP | ||
築年月 | 1980年11月 | 階数 | 地下1階・地上8階建ての2階 |
建物構造 | 鉄骨鉄筋コンクリート造 | 総戸数 | - |
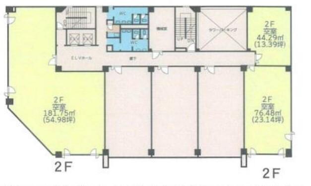
間取り | 事務所 | 専有面積 | 181.75㎡ |
その他 | - |
費用
賃料 |
36.2868万円
初期費用の確認をする
|
共益費 | 151,195円 |
---|---|---|---|
礼金 | - | 敷金 | 197.928万円 |
保証金 | - | 償却金 | - |
その他一時金 | - | ||
その他月額費用 | - | ||
住宅保険 | 要加入 | ||
保証会社 | 必須 | ||
保証会社補足 | 実費 | ||
更新料 | - | 更新事務手数料 | - |
契約条件
貸家契約区分 | 普通賃貸借 | 契約期間 | 2年 |
---|---|---|---|
入居可能日 |
即可
空室状況を確認をする
|
||
フリーレント | - | ||
クレジットカード決済 | - |
駐車場
駐車場 |
有り 月額22,000円
駐車場について質問する
|
||
---|---|---|---|
駐車場契約形態 | - | ||
駐車場備考 | 機械式駐 / 機械式(立体)全長5,05m全高1,6m車幅1,85m車重1600㎏以下 | ||
バイク置き場 | - | ||
駐輪場 | - |
備考
その他 | エントランス開閉時間(正面入口)平日7:00〜19:00 土日祝日8:00〜12:00(通用口)平日7:00〜22:00 土日祝日7:00〜20:00 (休館日)12/31〜1/3 時間外カードで入室可能 空調費用共益費に含む(但し時間外別途請求) | ||
---|---|---|---|
関連リンク | |||
取引態様 | 媒介 | 管理コード | 4198073 |
情報登録(更新)日 | 2025年9月27日 | 次回更新予定日 | 2025年10月10日 |
和歌山六番丁801ビル の他の空室物件
5
件
周辺環境
-
和歌山市立伏虎義務教育学校:933m
-
和歌山市役所:481m
-
和歌山市民図書館:1359m
-
FORTE食品館:470m
-
ツルハドラッグ屋形店:1009m
- 買物
-
FORTE食品館470m
- ドラッグストア
-
ツルハドラッグ屋形店1009m
- 役所
-
和歌山市役所481m
- 図書館
-
和歌山市民図書館1359m
- 小学校
-
和歌山市立伏虎義務教育学校933m
取扱店舗

ピタットハウス和歌山駅前店
株式会社スマートホーム
- 交通
- JR和歌山駅中央出口より南西に徒歩3分
- 営業時間
- 10:00 〜 19:00
- 定休日
- 冬季休業12/29〜1/4・GW 5/3〜6
ピタットハウスでは信頼されるサイトを目指して、物件情報の精度向上に努めています。
掲載物件に誤りがある場合は
こちら からご連絡ください。現状と異なる場合は、現状を優先させていただきます。
取引態様の欄に「媒介」と表示された物件は「仲介物件」です。ご成約の際には仲介手数料を申し受けます。
生活情報
和歌山市の暮らしデータ
和歌山市は、1889年4月1日に市制施行しました。紀伊半島の北西部に位置し、北はみどり豊かな和泉山脈ののどかな山並みに囲まれ、西は風光明媚な紀淡海峡に面し、紀の川の河口に位置する和歌山県の県都です。1997年4月から中核市となっています。
基本データ
市区役所所在地 | 和歌山市七番丁23 |
---|---|
公式ホームページURL | https://www.city.wakayama.wakayama.jp/ |
総人口 | 356,729人 |
人口増減率(2015年/2020年) | 98.0% |
和歌山市駅近隣の駅から探す
FAQ
-
A. 和歌山六番丁801ビル(ACI4198073_1)の内見は、見学予約でお問い合わせいただくか、直接和歌山駅前店(0037-6001-01210)までご連絡ください。
-
A. 可能です。和歌山六番丁801ビル(ACI4198073_1)周辺の情報は、ピタットハウスの地域情報ブログ「街ピタ」や住みたい街の暮らしデータをご活用ください。
-
A. 和歌山六番丁801ビル(ACI4198073_1)の費用は、こちらよりお問い合わせいただくか、直接和歌山駅前店(0037-6001-01210)までご連絡ください。
-
A. はい、可能です。賃貸希望物件リクエストをご利用ください。和歌山六番丁801ビル(ACI4198073_1)に似た物件も合わせてご紹介させていただきます。