前へ
次へ
前へ
次へ
マンション

パークシティ柏の葉キャンパス ザ・ゲートタワー ウエスト(1702)

NEW
23.5 万円
共益費 12,000
23.5万円
-
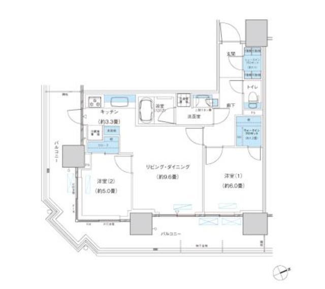
間取り
1LDK
専有面積
59.09㎡
所在階
36階建ての17階
向き
南西
  • アイコン: 住所 千葉県柏市若柴
  • アイコン: 交通 つくばエクスプレス 「柏の葉キャンパス駅」 徒歩4分
簡単無料
アイコン: お電話 0037-6001-05237
IP電話ご利用のお客様 : 03-5909-5601
ピタットハウス
新宿西口店
お気軽にお問い合わせください!
簡単無料
お気軽にお問い合わせください!
物件情報・周辺環境・契約手続きについてなどお気軽にお問い合わせください。

設備・条件

建物・立地
  • エレベータ
  • 宅配ボックス
  • フロントサービス
  • 敷地内ごみ置き場
  • タワー型マンション
  • バイク置場
通信
  • インターネット対応
  • 光回線
セキュリティ
  • オートロック
部屋設備
  • フローリング
  • バルコニー
  • 室内洗濯機置場
冷暖房
  • エアコン
キッチン
  • システムキッチン
  • グリル
バス・トイレ
  • バス・トイレ別
  • 浴室乾燥機
  • 独立洗面台
特徴
  • ペット相談可
  • ピアノ相談可
  • 事務所利用不可
  • フリーレント1ヶ月

物件概要

物件種別

部屋種別 マンション
建物名称 パークシティ柏の葉キャンパス ザ・ゲートタワー ウエスト(1702)
所在地 千葉県柏市若柴 MAP
築年月 2018年1月 階数 36階建ての17階
建物構造 鉄筋コンクリート造 総戸数 -
間取り 1LDK 専有面積 59.09㎡
向き 南西 バルコニー面積 25.00㎡
その他 管理形態:日勤管理 

費用

賃料 23.5万円 初期費用の確認をする 初期費用の確認をする 共益費 12,000円
礼金 - 敷金 23.5万円
保証金 - 償却金 -
その他一時金 室内清掃費:110498円 / 鍵交換費:33000円
その他月額費用 口座振替事務手数料:220円/月
住宅保険 要加入
保証会社 必須
保証会社補足 初回保証委託料(最低20,000円):月額賃料等の50%、 2年目以降:9,600円/年
更新料 更新後賃料:1ヶ月 更新事務手数料 -

契約条件

貸家契約区分 普通賃貸借 契約期間 2年
入居可能日 2026年4月25日予定 空室状況を確認をする 空室状況を確認をする 引渡時期相談内容 -
フリーレント あり 1ヶ月
クレジットカード決済 -

駐車場

駐車場 なし 駐車場について質問する 駐車場について質問する
駐車場契約形態 -
駐車場備考 -
バイク置き場 -
駐輪場 -

備考

その他
関連リンク
取引態様 媒介 管理コード 3571102
情報登録(更新)日 2026年4月4日 次回更新予定日 2026年4月11日
備考 めやす賃料:

めやす賃料とは賃料、共益費・管理費、敷引金、更新料を含み、賃料等条件の改定がないものと仮定して4年間賃借した場合(定期借家の場合は契約期間)の1ヶ月当たりの金額です。

※敷引金は、敷金の償却、保証金の償却など、預かった金額から必ず引くものをいいます。
※めやす賃料は、消費者に適切な情報を提供するための表示であり事業者に一時金を推奨するものではありません。
※めやす賃料は、実際の総支払額と異なる場合があります。詳しくは不動産会社にご確認ください。  

取扱店舗

ピタットハウス新宿西口店
ピタットハウス新宿西口店
株式会社エスケイ・コミュニティー
交通
JR線「新宿」駅西口より徒歩6分、都営大江戸線「新宿西口」駅D5出口より徒歩2分
営業時間
09:30 〜 18:30
定休日
毎週水曜日・2月・3月は無休、夏季休暇無し
お電話 0037-6001-05237 無料
メール お問い合わせ
  • お問い合わせ区分

  • 内見希望日時

    第一希望

    第二希望

  • お名前

    全角
  • ご希望の連絡方法

    メールアドレス

    電話番号

    半角
    半角
  • その他ご希望等

ピタットハウスの個人情報の取り扱いについて

ピタットハウスでは信頼されるサイトを目指して、物件情報の精度向上に努めています。
掲載物件に誤りがある場合は こちら からご連絡ください。現状と異なる場合は、現状を優先させていただきます。
取引態様の欄に「媒介」と表示された物件は「仲介物件」です。ご成約の際には仲介手数料を申し受けます。

生活情報

柏市の暮らしデータ

柏市は、Jリーグ柏レイソルのホームタウンです。JR・東武柏駅周辺は買い物客や若者で賑わい、北柏駅からの徒歩圏内には手賀沼もあります。つくばエクスプレス柏の葉キャンパス駅周辺では、東京大学や千葉大学、県の東葛テクノプラザなどの公民学連携による国際学術都市づくりが進んでいます。沼南町と合併後、2008年4月中核市に移行しました。

基本データ

市区役所所在地 柏市柏5-10-1
公式ホームページURL https://www.city.kashiwa.lg.jp/
総人口 426,468人
人口増減率(2015年/2020年) 103.0%
柏市の生活情報を詳しくみる

地域のおすすめ情報ブログ

一覧を見る

柏の葉キャンパス駅近隣の駅から探す

柏市の近隣エリアから探す

FAQ

  • A. パークシティ柏の葉キャンパス ザ・ゲートタワー ウエスト(ADJ3571102_746)の内見は、見学予約でお問い合わせいただくか、直接新宿西口店(0037-6001-05237)までご連絡ください。
  • A. 可能です。パークシティ柏の葉キャンパス ザ・ゲートタワー ウエスト(ADJ3571102_746)周辺の情報は、ピタットハウスの地域情報ブログ「街ピタ」住みたい街の暮らしデータをご活用ください。
  • A. パークシティ柏の葉キャンパス ザ・ゲートタワー ウエスト(ADJ3571102_746)の費用は、こちらよりお問い合わせいただくか、直接新宿西口店(0037-6001-05237)までご連絡ください。
  • A. はい、可能です。賃貸希望物件リクエストをご利用ください。パークシティ柏の葉キャンパス ザ・ゲートタワー ウエスト(ADJ3571102_746)に似た物件も合わせてご紹介させていただきます。