牛込柳町駅徒歩4分の地上13階建てマンションです
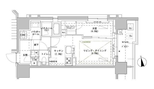
パークスフィア牛込神楽坂は2021年築のきれいなマンションです! 2LDK(55.6㎡)ご夫婦やファミリー向けの間取りです。

お気軽にお問い合わせください!
物件情報・周辺環境・契約手続きについてなどお気軽にお問い合わせください。
設備・条件
|
|
---|---|
|
|
|
|
|
|
|
|
|
|
|
|
|
|
物件概要
物件種別
部屋種別 | マンション | ||
---|---|---|---|
建物名称 | パークスフィア牛込神楽坂(803) | ||
所在地 | 東京都新宿区南山伏町 MAP | ||
築年月 | 2021年7月 | 階数 | 13階建ての8階 |
建物構造 | 鉄筋コンクリート造 | 総戸数 | - |
間取り | 2LDK | 専有面積 | 55.60㎡ |
向き | 西 | バルコニー面積 | 9.00㎡ |
その他 | 管理形態:日勤管理 |
費用
賃料 |
31.6万円
初期費用の確認をする
|
共益費 | 20,000円 |
---|---|---|---|
礼金 | 31.6万円 | 敷金 | 31.6万円 |
保証金 | - | 償却金 | - |
その他一時金 | 室内清掃費:85624円 / 鍵交換費:16500円 | ||
その他月額費用 | 口座振替事務手数料:110円/月 | ||
住宅保険 | 要加入 | ||
保証会社 | 必須 | ||
保証会社補足 | 初回保証委託料(最低20,000円):月額賃料等の50%、2年目以降:10,000円/年 | ||
更新料 | 更新後賃料:1ヶ月 | 更新事務手数料 | - |
契約条件
貸家契約区分 | 普通賃貸借 | 契約期間 | 2年 |
---|---|---|---|
入居可能日 |
2025年12月13日予定
空室状況を確認をする
|
引渡時期相談内容 | - |
フリーレント | - | ||
クレジットカード決済 | - |
駐車場
駐車場 |
なし
駐車場について質問する
|
||
---|---|---|---|
駐車場契約形態 | - | ||
駐車場備考 | - | ||
バイク置き場 | - | ||
駐輪場 | - |
備考
その他 | |||
---|---|---|---|
関連リンク |
新宿区の賃貸情報一覧 新築マンション・建築予定の賃貸物件一覧はこちら フィットネスジム付きマンションの物件一覧はこちら ピタットハウス新宿西口店のホームページはこちら |
||
取引態様 | 媒介 | 管理コード | 3571586 |
情報登録(更新)日 | 2025年10月7日 | 次回更新予定日 | 2025年10月14日 |
スタッフコメント

- パークスフィア牛込神楽坂のことならピタットハウス新宿西口店までお問合せください。都心部の物件はどのエリアでも取り扱い可能です。ご内覧は物件現地でお待ち合わせもOK。ほかの物件もご検討いただく場合はまとめてご案内も可能です。ご希望の条件を教えていただければ、市場に出ている情報を事前にメールでご紹介いたします。
周辺環境
- コンビニ
-
セブンイレブン市谷柳町店262m
- 買物
-
まいばすけっと牛込柳町駅東店128m
- ショッピング施設
-
新宿マルイメン2561m
- ドラッグストア
-
ウエルシア新宿牛込店316m
- ホームセンター
-
ソメヤ家具新宿店(ソメイユ東京)1894m
- 病院
-
医療法人社団鉄友会柳町病院253m
- 役所
-
千代田区役所麹町出張所2360m
- 郵便局
-
牛込郵便局299m
- 図書館
-
新宿区立中町図書館634m
- 交番
-
牛込警察署318m
- 公園
-
新宿区立富久さくら公園1995m
- 銀行
-
ゆうちょ銀行牛込店299m
- 幼稚園
-
新宿区立市谷幼稚園113m
- 小学校
-
新宿区立市谷小学校169m
- 中学校
-
新宿区立牛込第一中学校277m
- 高校
-
私立成城高校872m
取扱店舗

ピタットハウス新宿西口店
株式会社エスケイ・コミュニティー
- 交通
- JR山手線「新宿」駅徒歩6分都営大江戸線「新宿西口」駅徒歩2分
- 営業時間
- 09:30 〜 18:30
- 定休日
- 毎週水曜日・2月・3月は無休、夏季休暇無し・年末年始
ピタットハウスでは信頼されるサイトを目指して、物件情報の精度向上に努めています。
掲載物件に誤りがある場合は
こちら からご連絡ください。現状と異なる場合は、現状を優先させていただきます。
取引態様の欄に「媒介」と表示された物件は「仲介物件」です。ご成約の際には仲介手数料を申し受けます。
その他の取扱店舗
不動産会社毎に募集条件等が異なる場合があります。詳細は各店の物件詳細ページにてご確認ください。- 交通
- JR中央線「阿佐ヶ谷駅」南口徒歩1分ロータリーに面した駅直結の店舗です。
- 営業時間
- 10:00 〜 19:00
- 定休日
- 毎週火・水曜日・1月から3月は毎日営業・夏季休業8/12から8/20まで
- 交通
- JR中央線 『武蔵境駅』 南口より 徒歩30秒 駐車場有
- 営業時間
- 10:00 〜 19:00
- 定休日
- 毎週水曜日・夏季休業・8/12から8/20まで
- 交通
- JR総武線 亀戸駅
- 営業時間
- 10:00 〜 18:00
- 定休日
- 毎週水曜日、木曜日・GW休業・夏季休業・年末年始休業・冬季休業:12/28(日)〜1/3(土)
生活情報
新宿区の暮らしデータ
新宿区は、1947年3月15日に旧四谷・旧牛込・旧淀橋の3区が統合し発足しました。東京23区のほぼ中央に位置し、面積は18.22km2。23区中13番目の広さです。歌舞伎町や西新宿などの繁華街を有する一方、緑豊かな新宿御苑や、情緒ある神楽坂、住宅街の落合など様々な特色を持つ都市です。
基本データ
市区役所所在地 | 新宿区歌舞伎町1-4-1 |
---|---|
公式ホームページURL | https://www.city.shinjuku.lg.jp/ |
総人口 | 349,385人 |
人口増減率(2015年/2020年) | 104.7% |
地域のおすすめ情報ブログ
一覧を見る
-
【四谷】地元で愛されるパティスリーこんにちは!ピタットハウス飯田橋店新人の角屋敷です。今回紹介させていただくお店は「MOCHI」さんです!四ツ谷駅から徒歩7分、曙...続きを読む
-
【牛込柳町】栄養満点のジュースが飲める!こんにちは!ピタットハウス飯田橋店の角屋敷です!今回は牛込柳町エリアでおすすめのスムージーショップをご紹介します。牛込柳町から徒...続きを読む
-
【神楽坂】想いのこもった美味しいコーヒーこんにちは!ピタットハウス飯田橋店新人の角屋敷です。今回紹介させていただくお店は「AKHAAMACOFFEEKAGRAZAKA」...続きを読む
-
【神楽坂】店長は猫ちゃん!?こんにちは!ピタットハウス飯田橋店の角屋敷です。今回は、神楽坂にある着物・雑貨店の「ふくねこ堂」さんをご紹介します♪お店の名前に...続きを読む
牛込柳町駅近隣の駅から探す
新宿区の近隣エリアから探す
FAQ
-
A. パークスフィア牛込神楽坂(ADJ3571586_346)の内見は、見学予約でお問い合わせいただくか、直接新宿西口店(0037-6001-05237)までご連絡ください。
-
A. 可能です。パークスフィア牛込神楽坂(ADJ3571586_346)周辺の情報は、ピタットハウスの地域情報ブログ「街ピタ」や住みたい街の暮らしデータをご活用ください。
-
A. パークスフィア牛込神楽坂(ADJ3571586_346)の費用は、こちらよりお問い合わせいただくか、直接新宿西口店(0037-6001-05237)までご連絡ください。
-
A. はい、可能です。賃貸希望物件リクエストをご利用ください。パークスフィア牛込神楽坂(ADJ3571586_346)に似た物件も合わせてご紹介させていただきます。