前へ
次へ
前へ
次へ
マンション

パークアクシスプレミア表参道(508)

83.4 万円
共益費 -
83.4万円
-
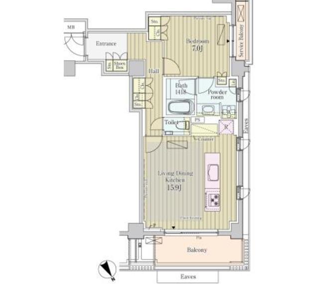
間取り
1LDK
専有面積
81.07㎡
所在階
4階建ての3階
向き
北西
  • アイコン: 住所 東京都渋谷区神宮前4丁目
  • アイコン: 交通 東京メトロ銀座線 「表参道駅」 徒歩6分 / 東京メトロ千代田線 「表参道駅」 徒歩4分 / 東京メトロ半蔵門線 「表参道駅」 徒歩4分
簡単無料
アイコン: お電話 0037-6001-05237
IP電話ご利用のお客様 : 03-5909-5601
ピタットハウス
新宿西口店
point!
表参道駅徒歩6分の地上4階建てマンションです
パークアクシスプレミア表参道は2017年築のきれいなマンションです! 1LDK(81.07㎡)ゆとりのある単身者様向けの間取りです。
お気軽にお問い合わせください!
簡単無料
お気軽にお問い合わせください!
物件情報・周辺環境・契約手続きについてなどお気軽にお問い合わせください。

設備・条件

建物・立地
  • エレベータ
  • 宅配ボックス
  • フロントサービス
  • 敷地内ごみ置き場
  • バイク置場
通信
  • インターネット対応
  • CATV
  • CATVインターネット
セキュリティ
  • オートロック
部屋設備
  • フローリング
  • バルコニー
  • 室内洗濯機置場
  • ウォークインクロゼット
冷暖房
  • エアコン
  • 床暖房
キッチン
  • システムキッチン
  • 食器乾燥機
  • 食器洗浄乾燥機
  • グリル
  • オーブンレンジ
バス・トイレ
  • バス・トイレ別
  • 浴室乾燥機
  • 独立洗面台
特徴
  • ペット相談可
  • ピアノ相談可
  • 事務所利用不可

物件概要

物件種別

部屋種別 マンション
建物名称 パークアクシスプレミア表参道(508)
所在地 東京都渋谷区神宮前4丁目 MAP
築年月 2017年7月 階数 4階建ての3階
建物構造 鉄筋コンクリート造 総戸数 -
間取り 1LDK 専有面積 81.07㎡
向き 北西 バルコニー面積 9.00㎡
その他 管理形態:日勤管理 

費用

賃料 83.4万円 初期費用の確認をする 初期費用の確認をする 共益費 -
礼金 - 敷金 83.4万円
保証金 - 償却金 -
その他一時金 室内清掃費:151600円 / 鍵交換費:33000円
その他月額費用 口座振替事務手数料:110円/月
住宅保険 要加入
保証会社 必須
保証会社補足 初回保証委託料(最低15,000円):月額賃料等の50%、 2年目以降:10,000円/年
更新料 - 更新事務手数料 -

契約条件

貸家契約区分 定期賃貸借 契約期間 2年
入居可能日 2026年1月6日予定 空室状況を確認をする 空室状況を確認をする 引渡時期相談内容 -
フリーレント -
クレジットカード決済 -

駐車場

駐車場 なし 駐車場について質問する 駐車場について質問する
駐車場契約形態 -
駐車場備考 -
バイク置き場 -
駐輪場 -

備考

その他
関連リンク 渋谷区の賃貸情報一覧
新築マンション・建築予定の賃貸物件一覧はこちら
フィットネスジム付きマンションの物件一覧はこちら
ピタットハウス新宿西口店のホームページはこちら
取引態様 媒介 管理コード 3571793
情報登録(更新)日 2025年12月18日 次回更新予定日 2025年12月25日
備考 めやす賃料:

めやす賃料とは賃料、共益費・管理費、敷引金、更新料を含み、賃料等条件の改定がないものと仮定して4年間賃借した場合(定期借家の場合は契約期間)の1ヶ月当たりの金額です。

※敷引金は、敷金の償却、保証金の償却など、預かった金額から必ず引くものをいいます。
※めやす賃料は、消費者に適切な情報を提供するための表示であり事業者に一時金を推奨するものではありません。
※めやす賃料は、実際の総支払額と異なる場合があります。詳しくは不動産会社にご確認ください。  

パークアクシスプレミア表参道 の他の空室物件

1
建物の空室物件一覧 次へ

スタッフコメント

スタッフコメント
  • パークアクシスプレミア表参道のことならピタットハウス新宿西口店までお問合せください。都心部の物件はどのエリアでも取り扱い可能です。ご内覧は物件現地でお待ち合わせもOK。ほかの物件もご検討いただく場合はまとめてご案内も可能です。ご希望の条件を教えていただければ、市場に出ている情報を事前にメールでご紹介いたします。

周辺環境

コンビニ
セブンイレブン神宮前店
114m
買物
KINOKUNIYA entre
545m
ショッピング施設
ラフォーレ原宿
734m
ドラッグストア
スギ薬局南青山店
636m
ホームセンター
Olympic青山店
519m
病院
伊藤病院
279m
役所
渋谷区役所
1799m
郵便局
外苑前郵便局
734m
図書館
渋谷区立中央図書館
908m
交番
原宿警察署
783m
公園
南青山三丁目緑地
858m
銀行
三菱UFJ銀行原宿支店
370m
幼稚園
青山保育園
364m
小学校
渋谷区立神宮前小学校
378m
中学校
渋谷区立原宿外苑中学校
1152m
高校
東京都立青山高校
1044m

取扱店舗

ピタットハウス新宿西口店
ピタットハウス新宿西口店
株式会社エスケイ・コミュニティー
交通
JR山手線「新宿」駅徒歩6分都営大江戸線「新宿西口」駅徒歩2分
営業時間
09:30 〜 18:30
定休日
毎週水曜日・2月・3月は無休、夏季休暇無し・年末年始
お電話 0037-6001-05237 無料
メール お問い合わせ
  • お問い合わせ区分

  • 内見希望日時

    第一希望

    第二希望

  • お名前

    全角
  • ご希望の連絡方法

    メールアドレス

    電話番号

    半角
    半角
  • その他ご希望等

ピタットハウスの個人情報の取り扱いについて

ピタットハウスでは信頼されるサイトを目指して、物件情報の精度向上に努めています。
掲載物件に誤りがある場合は こちら からご連絡ください。現状と異なる場合は、現状を優先させていただきます。
取引態様の欄に「媒介」と表示された物件は「仲介物件」です。ご成約の際には仲介手数料を申し受けます。

その他の取扱店舗

不動産会社毎に募集条件等が異なる場合があります。詳細は各店の物件詳細ページにてご確認ください。
交通
JR中央線「阿佐ヶ谷駅」南口徒歩1分ロータリーに面した駅直結の店舗です。
営業時間
10:00 〜 19:00
定休日
毎週火・水曜日・1月から3月は毎日営業・夏季休業8/12から8/20まで
  • キッズスペースあり
お電話 0037-6001-07674 無料
交通
JR中央線 『武蔵境駅』 南口より 徒歩30秒 駐車場有 
営業時間
10:00 〜 19:00
定休日
毎週水曜日・夏季休業・8/12から8/20まで
  • 近隣駐車場あり/キッズスペースあり
お電話 0037-6001-08163 無料

生活情報

渋谷区の暮らしデータ

渋谷区は、1932年10月1日に渋谷町・千駄ヶ谷町・代々幡町が合併し、ほかの79町村とともに大東京35区の一環として誕生しました。渋谷や原宿周辺の都市部は、ファッション関係の店舗をはじめ、表参道ヒルズ、渋谷ヒカリエ、渋谷ストリーム、渋谷スクランブルスクエア、WITH HARAJUKU、MIYASHITA PARKなどさまざまな商業ビル・施設があり、区民だけでなく多くの来街者が集まるエリアです。また、都心でありながらも明治神宮や代々木公園など自然豊かな場所にも恵まれている区です。

基本データ

市区役所所在地 渋谷区宇田川町1-1
公式ホームページURL https://www.city.shibuya.tokyo.jp/
総人口 243,883人
人口増減率(2015年/2020年) 108.6%
渋谷区の生活情報を詳しくみる

地域のおすすめ情報ブログ

一覧を見る

表参道駅近隣の駅から探す

渋谷区の近隣エリアから探す

FAQ

  • A. パークアクシスプレミア表参道(ADJ3571793_83)の内見は、見学予約でお問い合わせいただくか、直接新宿西口店(0037-6001-05237)までご連絡ください。
  • A. 可能です。パークアクシスプレミア表参道(ADJ3571793_83)周辺の情報は、ピタットハウスの地域情報ブログ「街ピタ」住みたい街の暮らしデータをご活用ください。
  • A. パークアクシスプレミア表参道(ADJ3571793_83)の費用は、こちらよりお問い合わせいただくか、直接新宿西口店(0037-6001-05237)までご連絡ください。
  • A. はい、可能です。賃貸希望物件リクエストをご利用ください。パークアクシスプレミア表参道(ADJ3571793_83)に似た物件も合わせてご紹介させていただきます。