前へ
次へ
前へ
次へ
マンション

コンフォリア春日富坂(1003)

21.5 万円
共益費 10,000
21.5万円
-
間取り
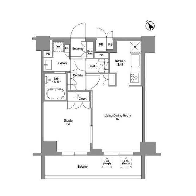
1LDK
専有面積
43.10㎡
所在階
地下1階・地上12階建ての10階
向き
  • アイコン: 住所 東京都文京区春日1丁目
  • アイコン: 交通 東京メトロ丸ノ内線 「後楽園駅」 徒歩7分 / 都営三田線 「春日駅」 徒歩8分
簡単無料
アイコン: お電話 0037-6001-05237
IP電話ご利用のお客様 : 03-5909-5601
ピタットハウス
新宿西口店
point!
後楽園駅徒歩7分の地上12階建てマンションです
コンフォリア春日富坂は2008年築のおすすめマンションです!1LDK(43.1㎡)ゆとりのある単身者様向けの間取りです。
お気軽にお問い合わせください!
簡単無料
お気軽にお問い合わせください!
物件情報・周辺環境・契約手続きについてなどお気軽にお問い合わせください。

設備・条件

建物・立地
  • エレベータ
  • 宅配ボックス
  • 駐輪場
  • バイク置場
通信
  • インターネット無料
セキュリティ
  • オートロック
  • TVモニター付きインターホン
  • 防犯カメラ
部屋設備
  • フローリング
  • 室内洗濯機置場
冷暖房
  • エアコン
キッチン
  • システムキッチン
バス・トイレ
  • バス・トイレ別
  • 浴室乾燥機
  • 追い焚き風呂
  • 独立洗面台
特徴
  • ペット相談可

物件概要

物件種別

部屋種別 マンション
建物名称 コンフォリア春日富坂(1003)
所在地 東京都文京区春日1丁目
築年月 2008年2月 階数 地下1階・地上12階建ての10階
建物構造 鉄筋コンクリート造 総戸数 106戸
間取り 1LDK(LDK12.4帖 洋6帖) 専有面積 43.10㎡
向き バルコニー面積 -
その他 -

費用

賃料 21.5万円 初期費用の確認をする 初期費用の確認をする 共益費 10,000円
礼金 - 敷金 21.5万円
保証金 - 償却金 -
その他一時金 鍵交換代:33000円 / 清掃費:39600円 / エアコン清掃費:22000円
その他月額費用 -
住宅保険 要加入(2年16550円)
保証会社 必須
保証会社補足 エポスカード(RP) 保証料:賃料等の50%(最低2万)、月額保証料:賃料等の1%(更新料無)
更新料 更新後賃料:1ヶ月 更新事務手数料 -

契約条件

貸家契約区分 普通賃貸借 契約期間 2年
入居可能日 2026年1月31日予定 空室状況を確認をする 空室状況を確認をする 引渡時期相談内容 -
フリーレント -
クレジットカード決済 -

駐車場

駐車場 なし 駐車場について質問する 駐車場について質問する
駐車場契約形態 -
駐車場備考 -
バイク置き場 -
駐輪場 -

備考

その他 ■礼金ゼロ!※1年以内解約時賃料1か月分違約金有 ■指定保証会社利用必須※一部法人契約除く敷金1カ月積み増し ■ペット飼育相談可能※敷金1ヵ月積み増し※小型犬1匹迄 ■留学生本人契約可能(GTN利用必須)所定審査有
関連リンク 文京区の賃貸情報一覧
新築マンション・建築予定の賃貸物件一覧はこちら
フィットネスジム付きマンションの物件一覧はこちら
ピタットハウス新宿西口店のホームページはこちら
取引態様 媒介 管理コード 3615241
情報登録(更新)日 2025年11月18日 次回更新予定日 2025年11月24日
備考 めやす賃料:

めやす賃料とは賃料、共益費・管理費、敷引金、更新料を含み、賃料等条件の改定がないものと仮定して4年間賃借した場合(定期借家の場合は契約期間)の1ヶ月当たりの金額です。

※敷引金は、敷金の償却、保証金の償却など、預かった金額から必ず引くものをいいます。
※めやす賃料は、消費者に適切な情報を提供するための表示であり事業者に一時金を推奨するものではありません。
※めやす賃料は、実際の総支払額と異なる場合があります。詳しくは不動産会社にご確認ください。  

スタッフコメント

スタッフコメント
  • コンフォリア春日富坂のことならピタットハウス新宿西口店までお問合せください。都心部の物件はどのエリアでも取り扱い可能です。ご内覧は物件現地でお待ち合わせもOK。ほかの物件もご検討いただく場合はまとめてご案内も可能です。ご希望の条件を教えていただければ、市場に出ている情報を事前にメールでご紹介いたします。

周辺環境

コンビニ
セブンイレブン文京伝通院前店
101m
買物
まいばすけっと春日2丁目店
360m
ショッピング施設
松坂屋上野店
2567m
ドラッグストア
スギ薬局小石川店
560m
ホームセンター
ホームセンターコーナンドイト後楽
704m
病院
独立行政法人地域医療機能推進機構
1170m
役所
文京区役所
636m
郵便局
小石川郵便局
674m
図書館
中央大学図書館理工学部分館
259m
交番
富坂警察署
185m
公園
礫川公園
457m
銀行
朝日信用金庫小石川支店
185m
幼稚園
グローバルキッズ春日園
28m
小学校
文京区立礫川小学校
268m
中学校
文京区立第三中学校
284m
高校
淑徳SC高等部
360m

取扱店舗

ピタットハウス新宿西口店
ピタットハウス新宿西口店
株式会社エスケイ・コミュニティー
交通
JR山手線「新宿」駅徒歩6分都営大江戸線「新宿西口」駅徒歩2分
営業時間
09:30 〜 18:30
定休日
毎週水曜日・2月・3月は無休、夏季休暇無し・年末年始
お電話 0037-6001-05237 無料
メール お問い合わせ
  • お問い合わせ区分

  • 内見希望日時

    第一希望

    第二希望

  • お名前

    全角
  • ご希望の連絡方法

    メールアドレス

    電話番号

    半角
    半角
  • その他ご希望等

ピタットハウスの個人情報の取り扱いについて

ピタットハウスでは信頼されるサイトを目指して、物件情報の精度向上に努めています。
掲載物件に誤りがある場合は こちら からご連絡ください。現状と異なる場合は、現状を優先させていただきます。
取引態様の欄に「媒介」と表示された物件は「仲介物件」です。ご成約の際には仲介手数料を申し受けます。

その他の取扱店舗

不動産会社毎に募集条件等が異なる場合があります。詳細は各店の物件詳細ページにてご確認ください。
交通
JR中央線「阿佐ヶ谷駅」南口徒歩1分ロータリーに面した駅直結の店舗です。
営業時間
10:00 〜 19:00
定休日
毎週火・水曜日・1月から3月は毎日営業・夏季休業8/12から8/20まで
  • キッズスペースあり
お電話 0037-6001-07674 無料
交通
JR中央線 『武蔵境駅』 南口より 徒歩30秒 駐車場有 
営業時間
10:00 〜 19:00
定休日
毎週水曜日・夏季休業・8/12から8/20まで
  • 近隣駐車場あり/キッズスペースあり
お電話 0037-6001-08163 無料
交通
丸ノ内線本郷三丁目駅1番出口を右に曲がって春日通り渡ってたところ。大江戸線本郷三丁目駅3番出口を出たら春日通り向かい。
営業時間
10:00 〜 19:00
定休日
毎週水曜日
  • 近隣駐車場あり
お電話 0037-6001-05919 無料

生活情報

文京区の暮らしデータ

文京区は、東京23区の中心部に位置し、由緒ある寺社、歴史を語る建造物等が数多く残るほか、江戸の大名屋敷庭園の面影を残す庭園もあります。また、明治時代には東京大学をはじめ多くの学校がつくられ、さらに、森鴎外、夏目漱石、樋口一葉、石川啄木など多くの文人ゆかりの地であり、緑豊かな文化の薫り高いまちとして発展してきました。

基本データ

市区役所所在地 文京区春日1-16-21
公式ホームページURL https://www.city.bunkyo.lg.jp/
総人口 240,069人
人口増減率(2015年/2020年) 109.3%
文京区の生活情報を詳しくみる

地域のおすすめ情報ブログ

一覧を見る

後楽園駅近隣の駅から探す

文京区の近隣エリアから探す

FAQ

  • A. コンフォリア春日富坂(ADJ3615241_155)の内見は、見学予約でお問い合わせいただくか、直接新宿西口店(0037-6001-05237)までご連絡ください。
  • A. 可能です。コンフォリア春日富坂(ADJ3615241_155)周辺の情報は、ピタットハウスの地域情報ブログ「街ピタ」住みたい街の暮らしデータをご活用ください。
  • A. コンフォリア春日富坂(ADJ3615241_155)の費用は、こちらよりお問い合わせいただくか、直接新宿西口店(0037-6001-05237)までご連絡ください。
  • A. はい、可能です。賃貸希望物件リクエストをご利用ください。コンフォリア春日富坂(ADJ3615241_155)に似た物件も合わせてご紹介させていただきます。