前へ
次へ
前へ
次へ
マンション

コンフォリア滝野川(0508)

NEW
24.5 万円
共益費 12,000
24.5万円
-
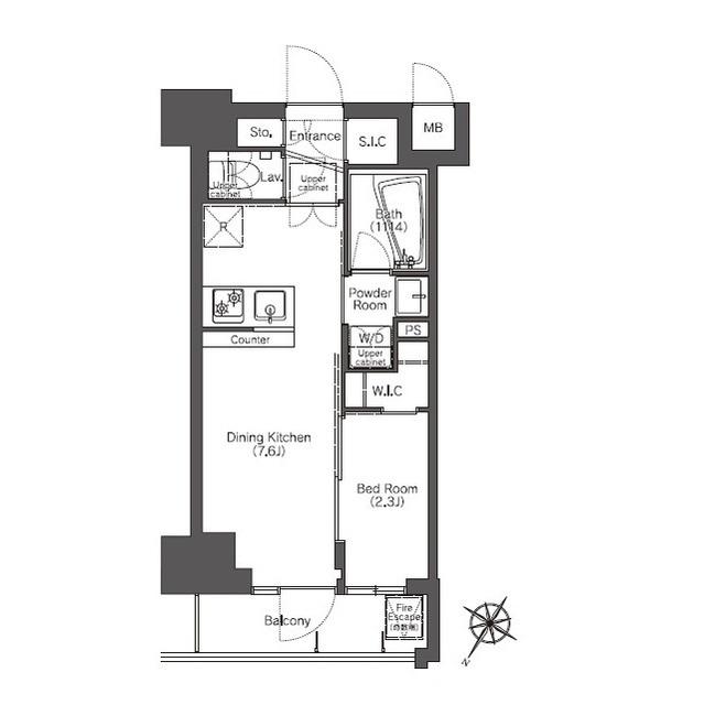
間取り
2LDK
専有面積
56.33㎡
所在階
15階建ての5階
向き
南東
  • アイコン: 住所 東京都北区滝野川7丁目
  • アイコン: 交通 都営三田線 「西巣鴨駅」 徒歩6分 / JR埼京線 「板橋駅」 徒歩10分
簡単無料
アイコン: お電話 0037-6001-05237
IP電話ご利用のお客様 : 03-5909-5601
ピタットハウス
新宿西口店
point!
西巣鴨駅徒歩6分の地上15階建てマンションです
コンフォリア滝野川は2018年築のきれいなマンションです! 2LDK(56.33㎡)ご夫婦やファミリー向けの間取りです。
お気軽にお問い合わせください!
簡単無料
お気軽にお問い合わせください!
物件情報・周辺環境・契約手続きについてなどお気軽にお問い合わせください。

設備・条件

建物・立地
  • 角部屋
  • 外壁タイル張り
  • エレベータ
  • 宅配ボックス
  • 駐輪場
  • 常時ゴミ出し可能
  • バイク置場
通信
  • インターネット無料
セキュリティ
  • オートロック
  • TVモニター付きインターホン
  • 防犯カメラ
部屋設備
  • 室内洗濯機置場
  • ウォークインクロゼット
冷暖房
  • エアコン
キッチン
  • システムキッチン
  • カウンターキッチン
バス・トイレ
  • バス・トイレ別
  • 追い焚き風呂
  • 洗髪洗面化粧台
  • 独立洗面台
  • 温水洗浄便座
特徴
  • ペット相談可

物件概要

物件種別

部屋種別 マンション
建物名称 コンフォリア滝野川(0508)
所在地 東京都北区滝野川7丁目
築年月 2018年9月 階数 15階建ての5階
建物構造 鉄筋コンクリート造 総戸数 123戸
間取り 2LDK(LDK12.8帖 洋6帖 洋4.7帖) 専有面積 56.33㎡
向き 南東 バルコニー面積 -
その他 -

費用

賃料 24.5万円 初期費用の確認をする 初期費用の確認をする 共益費 12,000円
礼金 - 敷金 24.5万円
保証金 - 償却金 -
その他一時金 鍵交換代:33000円 / 清掃費:52800円 / エアコン清掃費:33000円
その他月額費用 -
住宅保険 要加入(2年16550円)
保証会社 必須
保証会社補足 エポスカード(RP) 保証料:賃料等の50%(最低2万)、月額保証料:賃料等の1%(更新料無)
更新料 更新後賃料:1ヶ月 更新事務手数料 -

契約条件

貸家契約区分 普通賃貸借 契約期間 2年
入居可能日 2025年12月10日予定 空室状況を確認をする 空室状況を確認をする 引渡時期相談内容 -
フリーレント -
クレジットカード決済 -

駐車場

駐車場 なし 駐車場について質問する 駐車場について質問する
駐車場契約形態 -
駐車場備考 -
バイク置き場 -
駐輪場 -

備考

その他 本物件南東側に東京都道305号芝新宿王子線(明治通り)が隣接しており、騒音・振動等が発生する可能性があります。 【管理組合実施の点検等】 本物件が区分所有建物の建物賃貸借契約であることを認識し、管理組合による汚水・雑排水管清掃、消防設備点検、小・大規模修繕、その他管理組合が発注する作業等に協力頂きます。
関連リンク 北区の賃貸情報一覧
新築マンション・建築予定の賃貸物件一覧はこちら
フィットネスジム付きマンションの物件一覧はこちら
先行申込についてはこちらをご覧ください
取引態様 媒介 管理コード 3657822
情報登録(更新)日 2025年11月22日 次回更新予定日 2025年11月28日
備考 めやす賃料:

めやす賃料とは賃料、共益費・管理費、敷引金、更新料を含み、賃料等条件の改定がないものと仮定して4年間賃借した場合(定期借家の場合は契約期間)の1ヶ月当たりの金額です。

※敷引金は、敷金の償却、保証金の償却など、預かった金額から必ず引くものをいいます。
※めやす賃料は、消費者に適切な情報を提供するための表示であり事業者に一時金を推奨するものではありません。
※めやす賃料は、実際の総支払額と異なる場合があります。詳しくは不動産会社にご確認ください。  

スタッフコメント

スタッフコメント
  • コンフォリア滝野川のことならピタットハウス新宿西口店までお問合せください。都心部の物件はどのエリアでも取り扱い可能です。ご内覧は物件現地でお待ち合わせもOK。ほかの物件もご検討いただく場合はまとめてご案内も可能です。ご希望の条件を教えていただければ、市場に出ている情報を事前にメールでご紹介いたします。本物件の空き予定の(退去前で内見できない)お部屋については、「先行申込」が可能です。先行申込は1部屋のみ受付いたします。※「先行申込」は内見後に契約をするかしないかを判断する形態の申込のことをいいます。ご希望の際は「その他ご希望」欄に先行申込希望とご入力ください。詳細は関連リンクをご覧ください

周辺環境

コンビニ
ローソン滝野川6丁目店
208m
買物
まいばすけっと滝野川7丁目店
114m
ショッピング施設
P’パルコ
1688m
ドラッグストア
くすりの福太郎上池袋店
341m
ホームセンター
(株)かねたや巣鴨店
1130m
病院
山口病院
605m
役所
豊島区役所東池袋分庁舎
1429m
郵便局
滝野川郵便局
451m
図書館
大正大学附属図書館
275m
交番
巣鴨警察署
1541m
公園
西ヶ原みんなの公園
1485m
銀行
朝日信用金庫西巣鴨支店
349m
幼稚園
うぃず滝野川保育園
197m
小学校
豊島区立西巣鴨小学校
393m
中学校
私立淑徳巣鴨中学校
354m
高校
私立淑徳巣鴨高校
360m

取扱店舗

ピタットハウス新宿西口店
ピタットハウス新宿西口店
株式会社エスケイ・コミュニティー
交通
JR山手線「新宿」駅徒歩6分都営大江戸線「新宿西口」駅徒歩2分
営業時間
09:30 〜 18:30
定休日
毎週水曜日・2月・3月は無休、夏季休暇無し・年末年始
お電話 0037-6001-05237 無料
メール お問い合わせ
  • お問い合わせ区分

  • 内見希望日時

    第一希望

    第二希望

  • お名前

    全角
  • ご希望の連絡方法

    メールアドレス

    電話番号

    半角
    半角
  • その他ご希望等

ピタットハウスの個人情報の取り扱いについて

ピタットハウスでは信頼されるサイトを目指して、物件情報の精度向上に努めています。
掲載物件に誤りがある場合は こちら からご連絡ください。現状と異なる場合は、現状を優先させていただきます。
取引態様の欄に「媒介」と表示された物件は「仲介物件」です。ご成約の際には仲介手数料を申し受けます。

生活情報

北区の暮らしデータ

北区は、武蔵野台地の縁辺部から東京低地へと連続した地勢を有し、荒川、隅田川、石神井川といった水辺空間に囲まれた、緑豊かな自然が魅力のまちです。これら河川周辺は憩いの空間として整備されており、週末にはスポーツやレジャーを楽しむ多くの人々で賑わっています。一方、JRの駅が都内最多の11駅あり、加えて、地下鉄・都電が区内各所を走り、交通の利便性が抜群です。また、子どもが安心して遊べる公園が数多く設置され、商店街も活気があり、暮らしやすい環境がそろっています。

基本データ

市区役所所在地 北区王子本町1-15-22
公式ホームページURL https://www.city.kita.tokyo.jp/
総人口 355,213人
人口増減率(2015年/2020年) 104.1%
北区の生活情報を詳しくみる

地域のおすすめ情報ブログ

西巣鴨駅近隣の駅から探す

北区の近隣エリアから探す

FAQ

  • A. コンフォリア滝野川(ADJ3657822_258)の内見は、見学予約でお問い合わせいただくか、直接新宿西口店(0037-6001-05237)までご連絡ください。
  • A. 可能です。コンフォリア滝野川(ADJ3657822_258)周辺の情報は、ピタットハウスの地域情報ブログ「街ピタ」住みたい街の暮らしデータをご活用ください。
  • A. コンフォリア滝野川(ADJ3657822_258)の費用は、こちらよりお問い合わせいただくか、直接新宿西口店(0037-6001-05237)までご連絡ください。
  • A. はい、可能です。賃貸希望物件リクエストをご利用ください。コンフォリア滝野川(ADJ3657822_258)に似た物件も合わせてご紹介させていただきます。