前へ
次へ
前へ
次へ
マンション
即入居可

MFPR目黒タワー(608)

41.5 万円
共益費 15,000
41.5万円
-
間取り
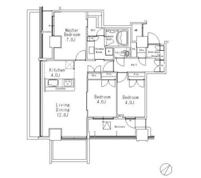
2LDK
専有面積
56.24㎡
所在階
25階建ての6階
向き
北東
  • アイコン: 住所 東京都目黒区目黒1丁目
  • アイコン: 交通 JR山手線 「目黒駅」 徒歩7分 / 東急目黒線 「目黒駅」 徒歩8分 / 東京メトロ南北線 「目黒駅」 徒歩7分
簡単無料
アイコン: お電話 0037-6001-05237
IP電話ご利用のお客様 : 03-5909-5601
ピタットハウス
新宿西口店
point!
目黒駅徒歩7分の地上25階建てマンションです
MFPR目黒タワーは2008年築のおすすめマンションです!2LDK(56.24㎡)ご夫婦やファミリー向けの間取りです。
お気軽にお問い合わせください!
簡単無料
お気軽にお問い合わせください!
物件情報・周辺環境・契約手続きについてなどお気軽にお問い合わせください。

設備・条件

建物・立地
  • エレベータ
  • 宅配ボックス
  • フロントサービス
  • 敷地内ごみ置き場
  • タワー型マンション
  • バイク置場
通信
  • インターネット対応
  • CATV
  • BSアンテナ
  • CSアンテナ
セキュリティ
  • オートロック
  • モニタ付オートロック
部屋設備
  • フローリング
  • バルコニー
  • 室内洗濯機置場
  • ウォークインクロゼット
冷暖房
  • エアコン
キッチン
  • グリル
バス・トイレ
  • バス・トイレ別
  • 浴室乾燥機
  • 追い焚き風呂
  • 独立洗面台
特徴
  • ペット相談可
  • 事務所利用不可

物件概要

物件種別

部屋種別 マンション
建物名称 MFPR目黒タワー(608)
所在地 東京都目黒区目黒1丁目 MAP
築年月 2008年2月 階数 25階建ての6階
建物構造 鉄筋コンクリート造 総戸数 -
間取り 2LDK 専有面積 56.24㎡
向き 北東 バルコニー面積 5.00㎡
その他 管理形態:日勤管理 

費用

賃料 41.5万円 初期費用の確認をする 初期費用の確認をする 共益費 15,000円
礼金 - 敷金 41.5万円
保証金 - 償却金 -
その他一時金 室内清掃費:105168円 / 鍵交換費:22000円
その他月額費用 口座振替事務手数料:220円/月
住宅保険 要加入
保証会社 必須
保証会社補足 初回保証委託料(最低20,000円):月額賃料等の50%、 2年目以降:9,600円/年
更新料 更新後賃料:1ヶ月 更新事務手数料 -

契約条件

貸家契約区分 普通賃貸借 契約期間 2年
入居可能日 相談 空室状況を確認をする 空室状況を確認をする 引渡時期相談内容 -
フリーレント -
クレジットカード決済 -

駐車場

駐車場 なし 駐車場について質問する 駐車場について質問する
駐車場契約形態 -
駐車場備考 -
バイク置き場 -
駐輪場 -

備考

その他
関連リンク 目黒区の賃貸情報一覧
タワーマンションの賃貸物件一覧はこちら
フィットネスジム付きマンションの物件一覧はこちら
ピタットハウス新宿西口店のホームページはこちら
取引態様 媒介 管理コード 3878909
情報登録(更新)日 2026年2月14日 次回更新予定日 2026年2月22日
備考 めやす賃料:

めやす賃料とは賃料、共益費・管理費、敷引金、更新料を含み、賃料等条件の改定がないものと仮定して4年間賃借した場合(定期借家の場合は契約期間)の1ヶ月当たりの金額です。

※敷引金は、敷金の償却、保証金の償却など、預かった金額から必ず引くものをいいます。
※めやす賃料は、消費者に適切な情報を提供するための表示であり事業者に一時金を推奨するものではありません。
※めやす賃料は、実際の総支払額と異なる場合があります。詳しくは不動産会社にご確認ください。  

スタッフコメント

スタッフコメント
  • MFPR目黒タワーのことならピタットハウス新宿西口店までお問合せください。都心部の物件はどのエリアでも取り扱い可能です。ご内覧は物件現地でお待ち合わせもOK。ほかの物件もご検討いただく場合はまとめてご案内も可能です。ご希望の条件を教えていただければ、市場に出ている情報を事前にメールでご紹介いたします。

周辺環境

コンビニ
ローソン下目黒1丁目店
271m
買物
マルエツ目黒店
427m
ショッピング施設
東急百貨店渋谷ヒカリエShinQ
3585m
ドラッグストア
ココカラファイン目黒店
205m
ホームセンター
DCM DIY place
1407m
病院
総合病院厚生中央病院
1115m
役所
目黒区役所
1902m
郵便局
目黒三郵便局
553m
図書館
目黒区立目黒区民センター図書館
421m
交番
目黒警察署
726m
公園
目黒区民センター公園
398m
銀行
さわやか信用金庫中目黒駅前支店
461m
幼稚園
目黒日本大学幼稚園
208m
小学校
目黒区立下目黒小学校
388m
中学校
私立目黒日本大学中学校
334m
高校
私立目黒日本大学高校
334m

取扱店舗

ピタットハウス新宿西口店
ピタットハウス新宿西口店
株式会社エスケイ・コミュニティー
交通
JR山手線「新宿」駅徒歩6分都営大江戸線「新宿西口」駅徒歩2分
営業時間
09:30 〜 18:30
定休日
毎週水曜日・2月・3月は無休、夏季休暇無し
お電話 0037-6001-05237 無料
メール お問い合わせ
  • お問い合わせ区分

  • 内見希望日時

    第一希望

    第二希望

  • お名前

    全角
  • ご希望の連絡方法

    メールアドレス

    電話番号

    半角
    半角
  • その他ご希望等

ピタットハウスの個人情報の取り扱いについて

ピタットハウスでは信頼されるサイトを目指して、物件情報の精度向上に努めています。
掲載物件に誤りがある場合は こちら からご連絡ください。現状と異なる場合は、現状を優先させていただきます。
取引態様の欄に「媒介」と表示された物件は「仲介物件」です。ご成約の際には仲介手数料を申し受けます。

その他の取扱店舗

不動産会社毎に募集条件等が異なる場合があります。詳細は各店の物件詳細ページにてご確認ください。
交通
JR中央線 『武蔵境駅』 南口より 徒歩30秒 駐車場有 
営業時間
10:00 〜 19:00
定休日
毎週水曜日・冬期休業・12/28から1/4まで
  • 近隣駐車場あり/キッズスペースあり
お電話 0037-6001-08163 無料
交通
潮見駅西口から徒歩2分の立地にございます。
営業時間
10:00 〜 19:00
定休日
毎週水曜日・GW休業・夏季休業・年末年始休業
  • 駐車場あり/近隣駐車場あり
お電話 0037-6001-06934 無料
交通
JR山手線 五反田駅より徒歩1分、都営浅草線 五反田駅より徒歩1分、東急池上線 五反田駅より徒歩1分
営業時間
10:00 〜 18:00
定休日
毎週水曜日、第2・3木曜日・GW休業・夏季休業・年末年始休業・GW休業:5/3(日)〜5/6(水)
  • バリアフリー
お電話 0037-6001-04360 無料
交通
東急目黒線・西小山駅より徒歩3分、「にこま通り商店街」の中にあります。
営業時間
10:00 〜 19:00
定休日
毎週火曜日・水曜日 
お電話 0037-6001-09056 無料
交通
東横線「都立大学駅」の改札を出て左へ。1Fにラーメン屋さんがあるビルの3Fです。
営業時間
10:00 〜 18:30
定休日
毎週火曜日・水曜日
  • 近隣駐車場あり
お電話 0037-6001-02068 無料
交通
JR中央線「阿佐ヶ谷駅」南口徒歩1分ロータリーに面した駅直結の店舗です。
営業時間
10:00 〜 19:00
定休日
毎週火・水曜日・1月から3月は毎日営業・冬期休業12/28から1/4まで
  • キッズスペースあり
お電話 0037-6001-07674 無料
交通
南北線「白金台」駅徒歩2分。白金台駅1番出口から地上に上がり、そのまま大通りを左に歩いてドンキホーテを越えてキャンドゥの隣です。
営業時間
10:00 〜 18:00
定休日
毎週水曜日・第4火曜日
お電話 0037-6001-02519 無料
交通
JR中央線・東京メトロ東西線中野駅南口より徒歩1分
営業時間
10:00 〜 18:00
定休日
毎週水曜日
お電話 0037-6001-06881 無料

生活情報

目黒区の暮らしデータ

目黒区は、東京23区の南西部にあり、区内は台地の中を二つの川の谷が走り、起伏の多い地形です。1932年に目黒町と碑衾町が合併し誕生した、山の手の緑ある良好な住宅地です。世論調査でも、「住み続けたい」という人が90%を超える、良好な住環境が特徴です。

基本データ

市区役所所在地 目黒区上目黒2-19-15
公式ホームページURL https://www.city.meguro.tokyo.jp/
総人口 288,088人
人口増減率(2015年/2020年) 103.8%
目黒区の生活情報を詳しくみる

地域のおすすめ情報ブログ

一覧を見る

目黒駅近隣の駅から探す

目黒区の近隣エリアから探す

FAQ

  • A. MFPR目黒タワー(ADJ3878909_490)の内見は、見学予約でお問い合わせいただくか、直接新宿西口店(0037-6001-05237)までご連絡ください。
  • A. 可能です。MFPR目黒タワー(ADJ3878909_490)周辺の情報は、ピタットハウスの地域情報ブログ「街ピタ」住みたい街の暮らしデータをご活用ください。
  • A. MFPR目黒タワー(ADJ3878909_490)の費用は、こちらよりお問い合わせいただくか、直接新宿西口店(0037-6001-05237)までご連絡ください。
  • A. はい、可能です。賃貸希望物件リクエストをご利用ください。MFPR目黒タワー(ADJ3878909_490)に似た物件も合わせてご紹介させていただきます。