目黒駅徒歩7分の地上10階建てマンションです
					
					
						MFPRコート目黒南は2008年築のおすすめマンションです!1Kタイプ(31.64㎡)の広々とした間取りです!
					
				
			お気軽にお問い合わせください!
						物件情報・周辺環境・契約手続きについてなどお気軽にお問い合わせください。
					設備・条件
| 
							 				 | 
							 			
							 				
  | 
							 		
|---|---|
| 
										 | 
									
										
  | 
								
| 
										 | 
									
										
  | 
								
| 
										 | 
									
										
  | 
								
| 
										 | 
									
										
  | 
								
| 
										 | 
									
										
  | 
								
| 
										 | 
									
										
  | 
								
物件概要
物件種別
| 部屋種別 | マンション | ||
|---|---|---|---|
| 建物名称 | MFPRコート目黒南(603) | ||
| 所在地 | 東京都目黒区下目黒2丁目 MAP | ||
| 築年月 | 2008年3月 | 階数 | 10階建ての6階 | 
| 建物構造 | 鉄筋コンクリート造 | 総戸数 | - | 
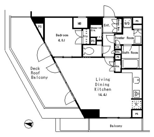
| 間取り | 1K | 専有面積 | 31.64㎡ | 
| 向き | 東 | バルコニー面積 | 4.00㎡ | 
| その他 | 管理形態:巡回管理 | ||
費用
| 賃料 | 
									
										14.5万円
									
									
										初期費用の確認をする
										 | 
								共益費 | 10,000円 | 
|---|---|---|---|
| 礼金 | - | 敷金 | 14.5万円 | 
| 保証金 | - | 償却金 | - | 
| その他一時金 | 室内清掃費:59400円 / 鍵交換費:22000円 | ||
| その他月額費用 | 口座振替事務手数料:110円/月 | ||
| 住宅保険 | 要加入 | ||
| 保証会社 | 必須 | ||
| 保証会社補足 | 初回保証委託料(最低20,000円):月額賃料等の50%、 2年目以降:9,600円/年 | ||
| 更新料 | 更新後賃料:1ヶ月 | 更新事務手数料 | - | 
契約条件
| 貸家契約区分 | 普通賃貸借 | 契約期間 | 2年 | 
|---|---|---|---|
| 入居可能日 | 
									相談
									
										空室状況を確認をする
										 | 
								
									引渡時期相談内容 | - | 
| フリーレント | - | ||
| クレジットカード決済 | - | ||
駐車場
| 駐車場 | 
										なし
										駐車場について質問する
											 | 
								||
|---|---|---|---|
| 駐車場契約形態 | - | ||
| 駐車場備考 | - | ||
| バイク置き場 | - | ||
| 駐輪場 | - | ||
備考
| その他 | |||
|---|---|---|---|
| 関連リンク | 
									
										
											
												目黒区の賃貸情報一覧 新築マンション・建築予定の賃貸物件一覧はこちら フィットネスジム付きマンションの物件一覧はこちら ピタットハウス新宿西口店のホームページはこちら  | 
							||
| 取引態様 | 媒介 | 管理コード | 3878924 | 
| 情報登録(更新)日 | 2025年11月2日 | 次回更新予定日 | 2025年11月10日 | 
スタッフコメント
					- MFPRコート目黒南のことならピタットハウス新宿西口店までお問合せください。都心部の物件はどのエリアでも取り扱い可能です。ご内覧は物件現地でお待ち合わせもOK。ほかの物件もご検討いただく場合はまとめてご案内も可能です。ご希望の条件を教えていただければ、市場に出ている情報を事前にメールでご紹介いたします。
 
周辺環境
- コンビニ
 - 
				セブンイレブン目黒柳通り店64m
 - ショッピング施設
 - 
				アトレ品川3395m
 - ドラッグストア
 - 
				K−PORT下目黒店330m
 - ホームセンター
 - 
				ニトリ目黒通り店1238m
 - 病院
 - 
				総合病院厚生中央病院1425m
 - 役所
 - 
				目黒区役所2181m
 - 郵便局
 - 
				下目黒郵便局368m
 - 図書館
 - 
				目黒区立目黒区民センター図書館672m
 - 交番
 - 
				目黒警察署1039m
 - 公園
 - 
				目黒区民センター公園511m
 - 銀行
 - 
				さわやか信用金庫中目黒駅前支店476m
 - 幼稚園
 - 
				アンジェリカ下目黒2丁目保育園172m
 - 小学校
 - 
				目黒区立下目黒小学校469m
 - 中学校
 - 
				目黒区立大鳥中学校666m
 - 高校
 - 
				私立目黒日本大学高校505m
 
取扱店舗
				
								ピタットハウス新宿西口店
							
							株式会社エスケイ・コミュニティー
						
					
					- 交通
 - JR山手線「新宿」駅徒歩6分都営大江戸線「新宿西口」駅徒歩2分
 
- 営業時間
 - 09:30 〜 18:30
 - 定休日
 - 毎週水曜日・2月・3月は無休、夏季休暇無し・年末年始
 
                ピタットハウスでは信頼されるサイトを目指して、物件情報の精度向上に努めています。
                掲載物件に誤りがある場合は 
                こちら からご連絡ください。現状と異なる場合は、現状を優先させていただきます。
                取引態様の欄に「媒介」と表示された物件は「仲介物件」です。ご成約の際には仲介手数料を申し受けます。
            
その他の取扱店舗
不動産会社毎に募集条件等が異なる場合があります。詳細は各店の物件詳細ページにてご確認ください。- 交通
 - 東急目黒線「武蔵小山」駅徒歩3分/パークホームズ武蔵小山1階
 
- 営業時間
 - 10:00 〜 18:30
 - 定休日
 - 毎週水曜日・GW休業・5/3〜5/7まで
 
- 交通
 - JR総武線 亀戸駅
 
- 営業時間
 - 10:00 〜 18:00
 - 定休日
 - 毎週水曜日、木曜日・GW休業・夏季休業・年末年始休業・冬季休業:12/28(日)〜1/3(土)
 
- 交通
 - 東急目黒線・西小山駅より徒歩3分、「にこま通り商店街」の中にあります。
 
- 営業時間
 - 10:00 〜 19:00
 - 定休日
 - 毎週火曜日・水曜日 ・夏季休業8月13日〜20日
 
- 交通
 - 東横線「都立大学駅」の改札を出て左へ。1Fにラーメン屋さんがあるビルの3Fです。
 
- 営業時間
 - 10:00 〜 18:30
 - 定休日
 - 毎週火曜日・水曜日
 
- 交通
 - JR中央線 『武蔵境駅』 南口より 徒歩30秒 駐車場有
 
- 営業時間
 - 10:00 〜 19:00
 - 定休日
 - 毎週水曜日・夏季休業・8/12から8/20まで
 
生活情報
目黒区の暮らしデータ
目黒区は、東京23区の南西部にあり、区内は台地の中を二つの川の谷が走り、起伏の多い地形です。1932年に目黒町と碑衾町が合併し誕生した、山の手の緑ある良好な住宅地です。世論調査でも、「住み続けたい」という人が90%を超える、良好な住環境が特徴です。
基本データ
| 市区役所所在地 | 目黒区上目黒2-19-15 | 
|---|---|
| 公式ホームページURL | https://www.city.meguro.tokyo.jp/ | 
| 総人口 | 288,088人 | 
| 人口増減率(2015年/2020年) | 103.8% | 
								
								
									地域のおすすめ情報ブログ
									
								
							
							
								一覧を見る
							
						- 
										
											
											〜小さなスイーツで大きな笑顔を〜今日は、都立大学駅で人気のスイーツ店「とよんちのたまご都立大学駅前店」のご紹介です!駅から歩いて2分!卵好きにはたまらないスイー...続きを読む - 
										
											
											〜食の楽しさを求めて〜こんにちは!ピタットハウス都立大学店の佐藤です。本日ご紹介するのは、都立大学駅徒歩2分にお店を構える、『freefromstyl...続きを読む - 
										
											
											味良しコスパ良しの焼肉屋さん『大統領』〜お久しぶりです!都立大学店の佐藤です。本日は弊社の男性スタッフに大人気のお店『大統領』さんをご紹介します♪都立大学駅から徒歩5分...続きを読む - 
										
											
											ママの元気を貰いに行こう!愛される名店こんにちは!新人の須田です!記念すべき私の初投稿でご紹介させていただくのは、地元に愛される隠れた名店『ママズキッチン』さんです!...続きを読む 
目黒駅近隣の駅から探す
目黒区の近隣エリアから探す
FAQ
- 
								
								A. MFPRコート目黒南(ADJ3878924_190)の内見は、見学予約でお問い合わせいただくか、直接新宿西口店(0037-6001-05237)までご連絡ください。
 - 
								
								A. 可能です。MFPRコート目黒南(ADJ3878924_190)周辺の情報は、ピタットハウスの地域情報ブログ「街ピタ」や住みたい街の暮らしデータをご活用ください。
 - 
								
								A. MFPRコート目黒南(ADJ3878924_190)の費用は、こちらよりお問い合わせいただくか、直接新宿西口店(0037-6001-05237)までご連絡ください。
 - 
								
								A. はい、可能です。賃貸希望物件リクエストをご利用ください。MFPRコート目黒南(ADJ3878924_190)に似た物件も合わせてご紹介させていただきます。