大泉学園駅徒歩12分の地上6階建てマンションです
ルーウェ東大泉は2025年築のきれいなマンションです! 2LDK(62.04㎡)ご夫婦やファミリー向けの間取りです。

お気軽にお問い合わせください!
物件情報・周辺環境・契約手続きについてなどお気軽にお問い合わせください。
設備・条件
|
|
---|---|
|
|
|
|
|
|
|
|
|
|
|
|
|
|
物件概要
物件種別
部屋種別 | マンション | ||
---|---|---|---|
建物名称 | ルーウェ東大泉(512) | ||
所在地 | 東京都練馬区東大泉2丁目 | ||
築年月 | 2025年11月 | 階数 | 6階建ての5階 |
建物構造 | 鉄筋コンクリート造 | 総戸数 | 89戸 |
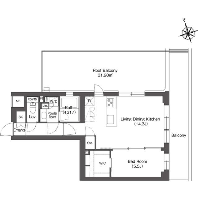
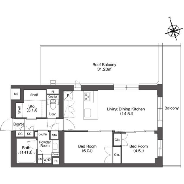
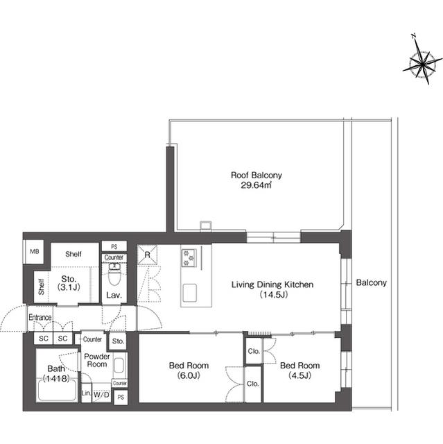
間取り | 2LDK(LDK14.5帖 洋6帖 洋4.5帖) | 専有面積 | 62.04㎡ |
向き | 東 | バルコニー面積 | - |
その他 | - |
費用
賃料 |
20万円
初期費用の確認をする
|
共益費 | 12,000円 |
---|---|---|---|
礼金 | 20万円 | 敷金 | 20万円 |
保証金 | - | 償却金 | - |
その他一時金 | 清掃費:65780円 / エアコン清掃費:33000円 | ||
その他月額費用 | - | ||
住宅保険 | 要加入(2年16550円) | ||
保証会社 | 必須 | ||
保証会社補足 | レジデンシャルパートナーズ 保証料:賃料等の50%(最低2万)、月額保証・事務手数料:賃料等の1%(更新料無) | ||
更新料 | 更新後賃料:1ヶ月 | 更新事務手数料 | - |
契約条件
貸家契約区分 | 普通賃貸借 | 契約期間 | 2年 |
---|---|---|---|
入居可能日 |
2025年12月10日予定
空室状況を確認をする
|
引渡時期相談内容 | - |
フリーレント | - | ||
クレジットカード決済 | - |
駐車場
駐車場 |
なし
駐車場について質問する
|
||
---|---|---|---|
駐車場契約形態 | - | ||
駐車場備考 | - | ||
バイク置き場 | - | ||
駐輪場 | - |
備考
その他 | ■指定保証会社利用必須※一部法人契約除く・敷金積増1ヶ月■ペット飼育・楽器演奏・SOHO利用不可■退居時エアコン清掃費・室内清掃費有■解約予告:2ヶ月前予告■設置予定の家具家電は事前に要寸法確認■ワークラウンジ/ブックラウンジ■ラクセスキー■スマート内覧/置配対応 | ||
---|---|---|---|
関連リンク |
練馬区の賃貸情報一覧 新築マンション・建築予定の賃貸物件一覧はこちら フィットネスジム付きマンションの物件一覧はこちら ピタットハウス新宿西口店のホームページはこちら |
||
取引態様 | 媒介 | 管理コード | 4550145 |
情報登録(更新)日 | 2025年10月6日 | 次回更新予定日 | 2025年10月12日 |
スタッフコメント

- ルーウェ東大泉のことならピタットハウス新宿西口店までお問合せください。都心部の物件はどのエリアでも取り扱い可能です。ご内覧は物件現地でお待ち合わせもOK。ほかの物件もご検討いただく場合はまとめてご案内も可能です。ご希望の条件を教えていただければ、市場に出ている情報を事前にメールでご紹介いたします。
取扱店舗

ピタットハウス新宿西口店
株式会社エスケイ・コミュニティー
- 交通
- JR山手線「新宿」駅徒歩6分都営大江戸線「新宿西口」駅徒歩2分
- 営業時間
- 09:30 〜 18:30
- 定休日
- 毎週水曜日・2月・3月は無休、夏季休暇無し・年末年始
ピタットハウスでは信頼されるサイトを目指して、物件情報の精度向上に努めています。
掲載物件に誤りがある場合は
こちら からご連絡ください。現状と異なる場合は、現状を優先させていただきます。
取引態様の欄に「媒介」と表示された物件は「仲介物件」です。ご成約の際には仲介手数料を申し受けます。
その他の取扱店舗
不動産会社毎に募集条件等が異なる場合があります。詳細は各店の物件詳細ページにてご確認ください。- 交通
- JR中央線 『武蔵境駅』 南口より 徒歩30秒 駐車場有
- 営業時間
- 10:00 〜 19:00
- 定休日
- 毎週水曜日・夏季休業・8/12から8/20まで
生活情報
練馬区の暮らしデータ
練馬区は、1947年8月1日に東京都の23番目の特別区として板橋区から分離独立し、農村から都市へと変貌を遂げてきました。みどり豊かな環境と都心に近い利便性が両立する、良好な住宅都市となっています。
基本データ
市区役所所在地 | 練馬区豊玉北6-12-1 |
---|---|
公式ホームページURL | https://www.city.nerima.tokyo.jp/ |
総人口 | 752,608人 |
人口増減率(2015年/2020年) | 104.3% |
地域のおすすめ情報ブログ
一覧を見る
-
商標登録のアジフライこんにちは練馬西口店の佐久間です。今回ご紹介するのは、お昼の時間帯は常に行列?2種類のアジフライの食べ比べができるお店『アジ好き...続きを読む
-
新設で利用のしやすい公園こんにちは練馬西口店の佐久間です。今回ご紹介するのは、新設で多くの設備が充実している公園『練馬総合運動公園いちょうひろば』です。...続きを読む
-
子育て世代にうれしい公園こんにちは練馬西口店の佐久間です。今回ご紹介するのは、子供たちに人気の広場『練馬けやき公園』です。練馬白山神社のすぐ横に広がって...続きを読む
-
歴史ある由緒正しき神社こんにちは練馬西口店の佐久間です。今回ご紹介するのは、樹齢900年を超えるケヤキのご神木が残っている由緒正しき神社である『練馬白...続きを読む
大泉学園駅近隣の駅から探す
練馬区の近隣エリアから探す
FAQ
-
A. ルーウェ東大泉(ADJ4550145_34)の内見は、見学予約でお問い合わせいただくか、直接新宿西口店(0037-6001-05237)までご連絡ください。
-
A. 可能です。ルーウェ東大泉(ADJ4550145_34)周辺の情報は、ピタットハウスの地域情報ブログ「街ピタ」や住みたい街の暮らしデータをご活用ください。
-
A. ルーウェ東大泉(ADJ4550145_34)の費用は、こちらよりお問い合わせいただくか、直接新宿西口店(0037-6001-05237)までご連絡ください。
-
A. はい、可能です。賃貸希望物件リクエストをご利用ください。ルーウェ東大泉(ADJ4550145_34)に似た物件も合わせてご紹介させていただきます。