2024年5月竣工★礼金0ヶ月(法人は1ヶ月)
					
				 
			お気軽にお問い合わせください!
						物件情報・周辺環境・契約手続きについてなどお気軽にお問い合わせください。
					設備・条件
|  | 
 | 
|---|---|
|  | 
 | 
|  | 
 | 
|  | 
 | 
|  | 
 | 
|  | 
 | 
|  | 
 | 
|  | 
 | 
物件概要
物件種別
| 部屋種別 | マンション | ||
|---|---|---|---|
| 建物名称 | コンフォリア・リヴ木場(1303) | ||
| 所在地 | 東京都江東区木場5丁目 | ||
| 築年月 | 2024年5月 | 階数 | 15階建ての13階 | 
| 建物構造 | 鉄筋コンクリート造 | 総戸数 | 42戸 | 
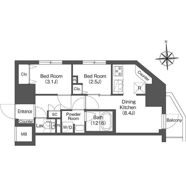
| 間取り | 2LDK(LDK11帖 洋4.6帖 洋2.4帖) | 専有面積 | 46.87㎡ | 
| 向き | 東 | バルコニー面積 | - | 
| その他 | - | ||
費用
| 賃料 | 23.5万円
									
									
										初期費用の確認をする | 共益費 | 10,000円 | 
|---|---|---|---|
| 礼金 | - | 敷金 | 23.5万円 | 
| 保証金 | - | 償却金 | - | 
| その他一時金 | 鍵交換代:33000円 / 清掃費:49940円 / エアコン清掃費:22000円 | ||
| その他月額費用 | - | ||
| 住宅保険 | 要加入(2年16550円) | ||
| 保証会社 | 必須 | ||
| 保証会社補足 | エポスカード(RP) 保証料:賃料等の50%(最低2万)、月額保証料:賃料等の1%(更新料無) | ||
| 更新料 | 更新後賃料:1ヶ月 | 更新事務手数料 | - | 
契約条件
| 貸家契約区分 | 普通賃貸借 | 契約期間 | 2年 | 
|---|---|---|---|
| 入居可能日 | 2025年12月20日予定
									
										空室状況を確認をする | 引渡時期相談内容 | - | 
| フリーレント | - | ||
| クレジットカード決済 | - | ||
駐車場
| 駐車場 | なし
										駐車場について質問する | ||
|---|---|---|---|
| 駐車場契約形態 | - | ||
| 駐車場備考 | - | ||
| バイク置き場 | - | ||
| 駐輪場 | - | ||
備考
| その他 | ■礼金ゼロ!※1年以内解約時賃料1か月分違約金有(※法人は礼金1ヶ月) ■ペット飼育相談可能※敷金1ヶ月積増※小型犬1匹又は猫1匹迄 ■指定保証会社利用必須※一部法人契約除く・敷金積み増し ◆置き配システム(ライナフ)◆Tebraキー(集合エントランスハンズフリーキー) | ||
|---|---|---|---|
| 関連リンク | |||
| 取引態様 | 媒介 | 管理コード | 4379260 | 
| 情報登録(更新)日 | 2025年10月31日 | 次回更新予定日 | 2025年11月6日 | 
取扱店舗
 
				
								ピタットハウス勝どき店
							
							株式会社SHEEPLANNER
						
					
					- 交通
- 都営大江戸線 勝どき駅『A3b出口』より豊海町方面へ徒歩3分・都営大江戸線、月島駅『10番出口』より勝どき方面へ徒歩12分。
- 営業時間
- 10:00 〜 17:00
- 定休日
- 毎週水曜日・木曜日
                ピタットハウスでは信頼されるサイトを目指して、物件情報の精度向上に努めています。
                掲載物件に誤りがある場合は 
                こちら からご連絡ください。現状と異なる場合は、現状を優先させていただきます。
                取引態様の欄に「媒介」と表示された物件は「仲介物件」です。ご成約の際には仲介手数料を申し受けます。
            
その他の取扱店舗
不動産会社毎に募集条件等が異なる場合があります。詳細は各店の物件詳細ページにてご確認ください。- 交通
- JR山手線「新宿」駅徒歩6分都営大江戸線「新宿西口」駅徒歩2分
- 営業時間
- 09:30 〜 18:30
- 定休日
- 毎週水曜日・2月・3月は無休、夏季休暇無し・年末年始
- 交通
- 潮見駅西口から徒歩2分の立地にございます。
- 営業時間
- 10:00 〜 19:00
- 定休日
- 毎週水曜日・年末年始・GW・夏季休業日
- 交通
- JR総武線 亀戸駅
- 営業時間
- 10:00 〜 18:00
- 定休日
- 毎週水曜日、木曜日・GW休業・夏季休業・年末年始休業・冬季休業:12/28(日)〜1/3(土)
- 交通
- JR中央線 『武蔵境駅』 南口より 徒歩30秒 駐車場有
- 営業時間
- 10:00 〜 19:00
- 定休日
- 毎週水曜日・夏季休業・8/12から8/20まで
- 交通
- JR総武線、総武中央線「錦糸町駅」北口より徒歩約2分 東京メトロ半蔵門線「錦糸町駅」3番出口より徒歩約1分
- 営業時間
- 10:00 〜 18:00
- 定休日
- 水曜日、第2・3木曜日・GW休業、夏季休業、冬季休業・冬季休業:12/28(日)〜1/3(土)
- 交通
- JR中央線「阿佐ヶ谷駅」南口徒歩1分ロータリーに面した駅直結の店舗です。
- 営業時間
- 10:00 〜 19:00
- 定休日
- 毎週火・水曜日・1月から3月は毎日営業・夏季休業8/12から8/20まで
- 交通
- 東京メトロ日比谷線「茅場町駅」徒歩1分/東京メトロ日比谷線「八丁堀駅」徒歩8分
- 営業時間
- 10:00 〜 17:00
- 定休日
- 水・土・日・祝祭日・夏季休業・8月9日から8月17日
- 交通
- 東西線西葛西駅南口 徒歩1分
- 営業時間
- 10:00 〜 18:00
- 定休日
- 毎週水曜日・GW休業・夏季休業・年末年始休業・冬季休業:12/28(日)〜1/3(土)
生活情報
江東区の暮らしデータ
江東区は、1947年に深川・城東の2区が合併し生まれました。現在の江東区は、水辺と緑に恵まれた自然的特性をいかしながら、「みんなでつくる伝統、未来 水彩都市・江東」を目指して、発展しています。中でも、臨海部の発展は著しく、2024年4月には人口54万人を突破しました。また、2021年開催の東京オリンピック・パラリンピック競技大会では、江東区に多くの競技場が配置され、更なる大きな発展の可能性を秘めています。
基本データ
| 市区役所所在地 | 江東区東陽4-11-28 | 
|---|---|
| 公式ホームページURL | https://www.city.koto.lg.jp/ | 
| 総人口 | 524,310人 | 
| 人口増減率(2015年/2020年) | 105.3% | 
								 地域のおすすめ情報ブログ
								
									地域のおすすめ情報ブログ
									 
								
							
							
								一覧を見る
							
						- 
										
											 リフォーム産業フェア&賃貸住宅フェア9月17日・18日の2日間、東京ビッグサイトで開催された「リフォーム産業フェア」&「賃貸住宅フェア2025東京」に参加してきまし...続きを読む リフォーム産業フェア&賃貸住宅フェア9月17日・18日の2日間、東京ビッグサイトで開催された「リフォーム産業フェア」&「賃貸住宅フェア2025東京」に参加してきまし...続きを読む
- 
										
											 ボリューム満点!!本場韓国料理こんにちは!亀戸店新人の木村です!今回ご紹介させていただくところは、JR総武線亀戸駅徒歩4分にあります『韓ビビンバ石焼家』さんで...続きを読む ボリューム満点!!本場韓国料理こんにちは!亀戸店新人の木村です!今回ご紹介させていただくところは、JR総武線亀戸駅徒歩4分にあります『韓ビビンバ石焼家』さんで...続きを読む
- 
										
											 自然がいっぱい!亀戸中央公園こんにちは!亀戸店新人の木村です!今回ご紹介させていただくところは、JR総武線亀戸駅徒歩12分にあります『亀戸中央公園』です!施...続きを読む 自然がいっぱい!亀戸中央公園こんにちは!亀戸店新人の木村です!今回ご紹介させていただくところは、JR総武線亀戸駅徒歩12分にあります『亀戸中央公園』です!施...続きを読む
- 
										
											 【深川芭蕉通り】平成20年3月23日に新たに命名された「深川芭蕉通り」は、江東区深川の歴史と文化を感じられる風情ある通りです。俳聖・松尾芭蕉にゆ...続きを読む 【深川芭蕉通り】平成20年3月23日に新たに命名された「深川芭蕉通り」は、江東区深川の歴史と文化を感じられる風情ある通りです。俳聖・松尾芭蕉にゆ...続きを読む
木場駅近隣の駅から探す
江東区の近隣エリアから探す
FAQ
- 
								
								A. コンフォリア・リヴ木場(ADV4379260_250)の内見は、見学予約でお問い合わせいただくか、直接勝どき店(0037-6001-00475)までご連絡ください。
- 
								
								A. 可能です。コンフォリア・リヴ木場(ADV4379260_250)周辺の情報は、ピタットハウスの地域情報ブログ「街ピタ」や住みたい街の暮らしデータをご活用ください。
- 
								
								A. コンフォリア・リヴ木場(ADV4379260_250)の費用は、こちらよりお問い合わせいただくか、直接勝どき店(0037-6001-00475)までご連絡ください。
- 
								
								A. はい、可能です。賃貸希望物件リクエストをご利用ください。コンフォリア・リヴ木場(ADV4379260_250)に似た物件も合わせてご紹介させていただきます。
 
			 
			 
					 LINEで共有する
										LINEで共有する
									 
											 
											 
											