★新築店舗★2025年3月下旬頃完成予定です!
美容室や事務所など用途様々です!ご相談ください☆

お気軽にお問い合わせください!
物件情報・周辺環境・契約手続きについてなどお気軽にお問い合わせください。
設備・条件
|
|
---|---|
|
|
物件概要
物件種別
部屋種別 | 店舗 | ||
---|---|---|---|
建物名称 | 岩泉五番街(B) | ||
所在地 | 青森県八戸市大字岩泉町5-4 MAP | ||
築年月 | 2025年3月 | 階数 | 2階建ての2階 |
建物構造 | 木造 | 総戸数 | 3戸 |
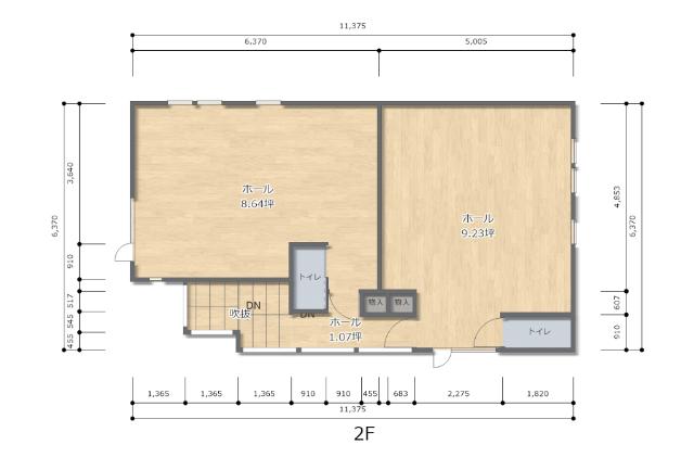
間取り | 店舗 | 専有面積 | 28.85㎡ |
その他 | 施工会社:らいずのお家 管理会社:らいず不動産 |
費用
賃料 |
8.91万円
初期費用の確認をする
|
共益費 | 1,000円 |
---|---|---|---|
礼金 | 4.05万円 | 敷金 | 8.1万円 |
保証金 | - | 償却金 | - |
その他一時金 | - | ||
その他月額費用 | - | ||
住宅保険 | 要加入 | ||
保証会社 | 必須 | ||
保証会社補足 | 初回:賃料総額100% 更新保証料:総賃料の10%/年 | ||
更新料 | - | 更新事務手数料 | 22,275円 |
契約条件
貸家契約区分 | 普通賃貸借 | 契約期間 | 2年 |
---|---|---|---|
入居可能日 |
2025年11月20日予定
空室状況を確認をする
|
||
フリーレント | - | ||
クレジットカード決済 | - |
駐車場
駐車場 |
なし
駐車場について質問する
|
||
---|---|---|---|
駐車場契約形態 | - | ||
駐車場備考 | - | ||
バイク置き場 | - | ||
駐輪場 | - |
備考
その他 | ※スケルトンでの貸出となります | ||
---|---|---|---|
関連リンク | |||
取引態様 | 媒介 | 管理コード | 4512991 |
情報登録(更新)日 | 2025年10月11日 | 次回更新予定日 | 2025年10月18日 |
岩泉五番街 の他の空室物件
1
件
周辺環境
-
マックスバリュ 八戸上組店:1154m
-
さくら野百貨店八戸店:579m
- コンビニ
-
ローソン八戸長横町ゆりの木通店113m
- 買物
-
マックスバリュ 八戸上組店1154m
- ショッピング施設
-
さくら野百貨店八戸店579m
- ドラッグストア
-
ツルハドラッグ十八日町店669m
- ホームセンター
-
リビングステージナナオ943m
- 病院
-
医療法人於本病院309m
- 役所
-
八戸市役所1035m
- 郵便局
-
八戸中央通郵便局289m
- 図書館
-
八戸市立図書館929m
- 交番
-
八戸警察署1344m
- 公園
-
長者緑地754m
- 銀行
-
岩手銀行十三日町支店622m
- 幼稚園
-
幼保連携型認定こども園ほうりん保206m
- 小学校
-
八戸市立吹上小学校653m
- 中学校
-
八戸市立第一中学校1133m
- 高校
-
私立千葉学園高校502m
取扱店舗

ピタットハウス八戸店
有限会社らいず不動産
- 交通
- 最寄駅:本八戸駅 1㎞(徒歩14分・車5分)新幹線停車駅:八戸駅 5.9㎞(徒歩1時間15分・車14分)
- 営業時間
- 10:00 〜 17:30
- 定休日
- 毎週日曜日・祝日・第1第3水曜日・8/30(土)15時半営業終了・9/3(水)営業 9/4-6研修の為休み
ピタットハウスでは信頼されるサイトを目指して、物件情報の精度向上に努めています。
掲載物件に誤りがある場合は
こちら からご連絡ください。現状と異なる場合は、現状を優先させていただきます。
取引態様の欄に「媒介」と表示された物件は「仲介物件」です。ご成約の際には仲介手数料を申し受けます。
生活情報
八戸市の暮らしデータ
八戸市は、太平洋を臨む青森県の南東部に位置しています。臨海部には大規模な工業港、漁港、商業港が整備されており、背後に工業地帯が形成され、優れた漁港施設や背後施設を有する全国屈指の水産都市、北東北随一の工業都市として、地域の拠点となっています。
基本データ
市区役所所在地 | 八戸市内丸1-1-1 |
---|---|
公式ホームページURL | https://www.city.hachinohe.aomori.jp/ |
総人口 | 223,415人 |
人口増減率(2015年/2020年) | 96.6% |
FAQ
-
A. 岩泉五番街(AEJ4512991_3)の内見は、見学予約でお問い合わせいただくか、直接八戸店(0037-6001-06797)までご連絡ください。
-
A. 可能です。岩泉五番街(AEJ4512991_3)周辺の情報は、ピタットハウスの地域情報ブログ「街ピタ」や住みたい街の暮らしデータをご活用ください。
-
A. 岩泉五番街(AEJ4512991_3)の費用は、こちらよりお問い合わせいただくか、直接八戸店(0037-6001-06797)までご連絡ください。
-
A. はい、可能です。賃貸希望物件リクエストをご利用ください。岩泉五番街(AEJ4512991_3)に似た物件も合わせてご紹介させていただきます。