前へ
次へ
前へ
次へ
一戸建

沼館2丁目貸家(A-2)

NEW
10 万円
共益費 -
20万円
-
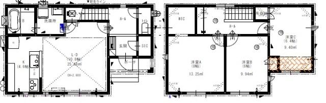
間取り
3LDK
専有面積
89.42㎡
所在階
2階建ての1階~2階
向き
-
  • アイコン: 住所 青森県八戸市沼館2丁目29-20-2
  • アイコン: 交通 JR八戸線 「本八戸駅」 徒歩16分 / JR八戸線 「小中野駅」 徒歩27分 / JR八戸線 「長苗代駅」 徒歩36分
簡単無料
アイコン: お電話 0037-6001-06797
IP電話ご利用のお客様 : 0178-71-1151
ピタットハウス
八戸店
point!
2月中旬完成予定!
便利な沼館に3LDK新築 現在建築中です!
お気軽にお問い合わせください!
簡単無料
お気軽にお問い合わせください!
物件情報・周辺環境・契約手続きについてなどお気軽にお問い合わせください。

設備・条件

建物・立地
  • 敷地内駐車場
  • 駐車場(2台)
  • 駐車場2台無料
部屋設備
  • ウォークインクロゼット
  • 全居室洋室
  • 全居室6畳以上
冷暖房
  • エアコン
キッチン
  • カウンターキッチン
  • IHコンロ
  • 食器洗浄乾燥機
バス・トイレ
  • バス・トイレ別
  • 追い焚き風呂
  • 洗面化粧台
  • トイレ
  • 洗面台
  • 浴室1坪以上
  • 洗面所にドア
特徴
  • 新築
  • ペット不可
  • 礼金不要

物件概要

物件種別

部屋種別 一戸建
建物名称 沼館2丁目貸家(A-2)
所在地 青森県八戸市沼館2丁目29-20-2
築年月 2026年2月 階数 2階建ての1階~2階
建物構造 木造 総戸数 1戸
間取り 3LDK(LDK0帖) 専有面積 89.42㎡
向き - バルコニー面積 -
その他 施工会社:ポラリス 管理会社:ポラリス

費用

賃料 10万円 初期費用の確認をする 初期費用の確認をする 共益費 -
礼金 - 敷金 20万円
保証金 - 償却金 -
その他一時金 -
その他月額費用 -
住宅保険 要加入(2年20000円)
保証会社 必須
保証会社補足 初回:賃料総額50% 月額800円
更新料 - 更新事務手数料 55,000円

契約条件

貸家契約区分 普通賃貸借 契約期間 2年
入居可能日 2026年2月28日予定 空室状況を確認をする 空室状況を確認をする 引渡時期相談内容 -
フリーレント -
クレジットカード決済 -

駐車場

駐車場 有り(無料) 駐車場について質問する 駐車場について質問する
駐車場契約形態 -
駐車場備考 駐2台可
バイク置き場 -
駐輪場 -

備考

その他
関連リンク
取引態様 媒介 管理コード 4768540
情報登録(更新)日 2026年1月29日 次回更新予定日 2026年2月5日
備考 めやす賃料:

めやす賃料とは賃料、共益費・管理費、敷引金、更新料を含み、賃料等条件の改定がないものと仮定して4年間賃借した場合(定期借家の場合は契約期間)の1ヶ月当たりの金額です。

※敷引金は、敷金の償却、保証金の償却など、預かった金額から必ず引くものをいいます。
※めやす賃料は、消費者に適切な情報を提供するための表示であり事業者に一時金を推奨するものではありません。
※めやす賃料は、実際の総支払額と異なる場合があります。詳しくは不動産会社にご確認ください。  

周辺環境

  • 八戸市役所
    八戸市役所
  • さくら野百貨店八戸店
    さくら野百貨店八戸店

取扱店舗

ピタットハウス八戸店
ピタットハウス八戸店
有限会社らいず不動産
交通
最寄駅:本八戸駅 1㎞(徒歩14分・車5分)新幹線停車駅:八戸駅 5.9㎞(徒歩1時間15分・車14分)
営業時間
10:00 〜 17:30
定休日
毎週日曜日・祝日・第1第3水曜日・≪2月定休日(日)のみ祝日は16時まで≫・≪3月は休まず営業、日・祝は16時まで≫
  • 駐車場あり
お電話 0037-6001-06797 無料
メール お問い合わせ
  • お問い合わせ区分

  • 内見希望日時

    第一希望

    第二希望

  • お名前

    全角
  • ご希望の連絡方法

    メールアドレス

    電話番号

    半角
    半角
  • その他ご希望等

ピタットハウスの個人情報の取り扱いについて

ピタットハウスでは信頼されるサイトを目指して、物件情報の精度向上に努めています。
掲載物件に誤りがある場合は こちら からご連絡ください。現状と異なる場合は、現状を優先させていただきます。
取引態様の欄に「媒介」と表示された物件は「仲介物件」です。ご成約の際には仲介手数料を申し受けます。

生活情報

八戸市の暮らしデータ

八戸市は、太平洋を臨む青森県の南東部に位置しています。臨海部には大規模な工業港、漁港、商業港が整備されており、背後に工業地帯が形成され、優れた漁港施設や背後施設を有する全国屈指の水産都市、北東北随一の工業都市として、地域の拠点となっています。

基本データ

市区役所所在地 八戸市内丸1-1-1
公式ホームページURL https://www.city.hachinohe.aomori.jp/
総人口 223,415人
人口増減率(2015年/2020年) 96.6%
八戸市の生活情報を詳しくみる

FAQ

  • A. 沼館2丁目貸家(AEJ4768540_1)の内見は、見学予約でお問い合わせいただくか、直接八戸店(0037-6001-06797)までご連絡ください。
  • A. 可能です。沼館2丁目貸家(AEJ4768540_1)周辺の情報は、ピタットハウスの地域情報ブログ「街ピタ」住みたい街の暮らしデータをご活用ください。
  • A. 沼館2丁目貸家(AEJ4768540_1)の費用は、こちらよりお問い合わせいただくか、直接八戸店(0037-6001-06797)までご連絡ください。
  • A. はい、可能です。賃貸希望物件リクエストをご利用ください。沼館2丁目貸家(AEJ4768540_1)に似た物件も合わせてご紹介させていただきます。