築浅、ペット相談可、浴室乾燥機、追焚き機能、宅配BOX♪
葛飾区、足立区、江戸川区と幅広く、お部屋探しのお手伝いが出来ます。お気軽にお問合せ下さい。お部屋探しはONEにお任せください。

お気軽にお問い合わせください!
物件情報・周辺環境・契約手続きについてなどお気軽にお問い合わせください。
設備・条件
|
|
---|---|
|
|
|
|
|
|
|
|
|
|
|
|
|
|
物件概要
物件種別
部屋種別 | マンション | ||
---|---|---|---|
建物名称 | S-RESIDENCE綾瀬rivie | ||
所在地 | 東京都足立区綾瀬3丁目16-2 MAP | ||
築年月 | 2023年8月 | 階数 | 12階建ての2階 |
建物構造 | 鉄筋コンクリート造 | 総戸数 | - |
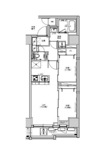
間取り | 1K(洋7.73帖 K0帖) | 専有面積 | 25.60㎡ |
向き | 南 | バルコニー面積 | - |
その他 | 管理形態:巡回管理 |
費用
賃料 |
11.5万円
初期費用の確認をする
|
共益費 | 10,000円 |
---|---|---|---|
礼金 | - | 敷金 | 11.5万円 + ペット積み増し(11.5万円) |
保証金 | - | 償却金 | - |
その他一時金 | 退去時鍵交換代:33000円 / 退去時エアコンクリーニング代:44000円 / 退去時クリーニング代:16500円 | ||
その他月額費用 | - | ||
住宅保険 | 要加入(2年18000円) | ||
保証会社 | 必須 | ||
保証会社補足 | 初回保証料:賃料等の30% 以降一年ごとに1万円 口座振替手数料:330円/月 | ||
更新料 | 更新後賃料:1ヶ月 | 更新事務手数料 | - |
契約条件
貸家契約区分 | 普通賃貸借 | 契約期間 | 2年 |
---|---|---|---|
入居可能日 |
即可
空室状況を確認をする
|
引渡時期相談内容 | - |
フリーレント | - | ||
クレジットカード決済 | 初期費用クレジット決済可 |
駐車場
駐車場 |
空きなし
駐車場について質問する
|
||
---|---|---|---|
駐車場契約形態 | - | ||
駐車場備考 | - | ||
バイク置き場 | 空きなし | ||
駐輪場 | 有り(無料) |
備考
その他 | ピタットハウス亀有店では、新築、築浅、リフォーム物件、貸家戸建、分譲賃貸、デザイナーズ、ペット可、など多数取り揃えております。カード決済も可能です。 | ||
---|---|---|---|
関連リンク | |||
取引態様 | 媒介 | 管理コード | 4438229 |
情報登録(更新)日 | 2025年10月7日 | 次回更新予定日 | 2025年10月14日 |
スタッフコメント

- 葛飾区、足立区、江戸川区と幅広く、お部屋探しのお手伝いが出来ます。お気軽にお問合せ下さい。お部屋探しはONEにお任せください。
周辺環境
-
足立区役所:2862m
-
綾瀬駅前郵便局:455m
-
綾瀬警察署:1993m
-
医療法人社団日岩会下井病院:623m
-
北千住マルイ:3632m
-
ノジマイトーヨーカドー綾瀬店:266m
- ショッピング施設
-
北千住マルイ3632m
- ホームセンター
-
ノジマイトーヨーカドー綾瀬店266m
- 病院
-
医療法人社団日岩会下井病院623m
- 役所
-
足立区役所2862m
- 郵便局
-
綾瀬駅前郵便局455m
- 交番
-
綾瀬警察署1993m
取扱店舗

ピタットハウスでは信頼されるサイトを目指して、物件情報の精度向上に努めています。
掲載物件に誤りがある場合は
こちら からご連絡ください。現状と異なる場合は、現状を優先させていただきます。
取引態様の欄に「媒介」と表示された物件は「仲介物件」です。ご成約の際には仲介手数料を申し受けます。
生活情報
足立区の暮らしデータ
足立区は、荒川をはじめとした水辺や区内に点在する公園の緑などの自然環境が豊かな街で、江戸四宿の一つである千住や西新井大師などの古き良き時代の香りが今なお残っています。近年は、駅前などの拠点整備や大学の開設が進み、伝統と新しさが融合した新たな魅力が生まれ、若者を中心に多くの人々で賑わう活気あふれる都市へと進化しています。
基本データ
市区役所所在地 | 足立区中央本町1-17-1 |
---|---|
公式ホームページURL | https://www.city.adachi.tokyo.jp/ |
総人口 | 695,043人 |
人口増減率(2015年/2020年) | 103.7% |
地域のおすすめ情報ブログ
一覧を見る
-
ヘルシーなたこ焼き屋!こんにちは!ピタットハウス西新井店です!今回ご紹介いたしますのは、「笑たこ」さんです!モチーフは油で揚げないヘルシーなタコ焼きで...続きを読む
-
気分もお腹も満足できるイタリアン!こんにちは!ピタットハウス西新井店の石川です!今回は梅島にございますイタリアン「BISTRO和」さんをご紹介いたします。梅島駅か...続きを読む
-
今年できた築浅物件!こんにちは!ピタットハウス西新井店の石川です!今回ご紹介させていただくのは、「フルール・デ・ダフネ」です!こちらの物件は今年の春...続きを読む
-
物件の購入もピタットハウスで!こんにちは!少し、お店のご紹介をさせていただきます。ピタットハウスでは、賃貸だけでなく、売買も行っております!ご友人様にもご紹介...続きを読む
綾瀬駅近隣の駅から探す
足立区の近隣エリアから探す
FAQ
-
A. S-RESIDENCE綾瀬rivie(AEU4438229_3)の内見は、見学予約でお問い合わせいただくか、直接亀有店(0037-6001-07596)までご連絡ください。
-
A. 可能です。S-RESIDENCE綾瀬rivie(AEU4438229_3)周辺の情報は、ピタットハウスの地域情報ブログ「街ピタ」や住みたい街の暮らしデータをご活用ください。
-
A. S-RESIDENCE綾瀬rivie(AEU4438229_3)の費用は、こちらよりお問い合わせいただくか、直接亀有店(0037-6001-07596)までご連絡ください。
-
A. はい、可能です。賃貸希望物件リクエストをご利用ください。S-RESIDENCE綾瀬rivie(AEU4438229_3)に似た物件も合わせてご紹介させていただきます。