インターネット無料☆犬・猫飼育可☆オートロック☆浴室乾燥☆

お気軽にお問い合わせください!
物件情報・周辺環境・契約手続きについてなどお気軽にお問い合わせください。
設備・条件
|
|
---|---|
|
|
|
|
|
|
|
|
|
|
|
|
|
|
物件概要
物件種別
部屋種別 | マンション | ||
---|---|---|---|
建物名称 | LaDouceur西宮北口 | ||
所在地 | 兵庫県西宮市大屋町 MAP | ||
築年月 | 2020年5月 | 階数 | 8階建ての4階 |
建物構造 | 鉄筋コンクリート造 | 総戸数 | 63戸 |
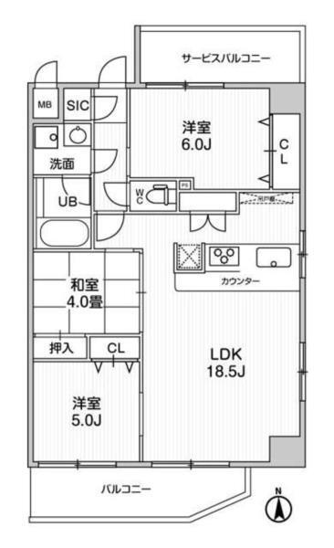
間取り | 2LDK(LDK25帖 洋5帖 和6.5帖) | 専有面積 | 78.02㎡ |
向き | - | バルコニー面積 | - |
その他 | - |
費用
賃料 |
22.8万円
初期費用の確認をする
|
共益費 | 15,000円 |
---|---|---|---|
礼金 | - | 敷金 | - |
保証金 | - | 償却金 | - |
その他一時金 | - | ||
その他月額費用 | - | ||
住宅保険 | 要加入 | ||
保証会社 | 必須 | ||
保証会社補足 | 初回総賃料50%〜 更新有:1年10,000円 | ||
更新料 | - | 更新事務手数料 | - |
契約条件
貸家契約区分 | 普通賃貸借 | 契約期間 | 2年 |
---|---|---|---|
入居可能日 |
即可
空室状況を確認をする
|
引渡時期相談内容 | - |
フリーレント | - | ||
クレジットカード決済 | - |
駐車場
駐車場 |
なし
駐車場について質問する
|
||
---|---|---|---|
駐車場契約形態 | - | ||
駐車場備考 | - | ||
バイク置き場 | - | ||
駐輪場 | - |
備考
その他 | |||
---|---|---|---|
関連リンク | |||
取引態様 | 媒介 | 管理コード | 4493076 |
情報登録(更新)日 | 2025年10月5日 | 次回更新予定日 | 2025年10月12日 |
周辺環境
-
イズミヤ 西宮ガーデンズ店:305m
-
セブンイレブン西宮ガーデンズ北口店:402m
-
阪急西宮ガーデンズ:647m
-
三井住友銀行 西宮北口支店:787m
-
甲南大学 西宮キャンパス:687m
-
アクタ西宮:1042m
- コンビニ
-
セブンイレブン西宮ガーデンズ北口店402m
- 買物
-
イズミヤ 西宮ガーデンズ店305m
- ショッピング施設
-
阪急西宮ガーデンズ647m
- 銀行
-
三井住友銀行 西宮北口支店787m
取扱店舗

ピタットハウス元町店
株式会社ライブデザイン兵庫
- 交通
- JR元町駅東口改札を出て北側すぐです 。事前にご予約頂いたお客様は改札出口へお出迎えさせていただきます(^_^)/
- 営業時間
- 09:00 〜 19:00
- 定休日
- 毎週水曜日・GW・夏季休暇・年末年始・冬期休暇12月28日〜1月3日
ピタットハウスでは信頼されるサイトを目指して、物件情報の精度向上に努めています。
掲載物件に誤りがある場合は
こちら からご連絡ください。現状と異なる場合は、現状を優先させていただきます。
取引態様の欄に「媒介」と表示された物件は「仲介物件」です。ご成約の際には仲介手数料を申し受けます。
生活情報
西宮市の暮らしデータ
西宮市は、1925年の市制施行後、2025年に市制100周年を迎えます。大阪と神戸のほぼ中間に位置する人口約48.5万人の中核市で、山・川・海などの豊かな自然や、多くの文化・教育施設など文教住宅都市としての優れた特性を有しており、若い子育て世代を中心に「住みたいまち」として評価されています。六甲山からの伏流水である「宮水」を使った酒造りや、阪神甲子園球場、えべっさんでにぎわう西宮神社などがあるまちとしても有名です。
基本データ
市区役所所在地 | 西宮市六湛寺町10-3 |
---|---|
公式ホームページURL | https://www.nishi.or.jp/ |
総人口 | 485,587人 |
人口増減率(2015年/2020年) | 99.5% |
西宮北口駅近隣の駅から探す
西宮市の近隣エリアから探す
FAQ
-
A. LaDouceur西宮北口(AEY4493076_11)の内見は、見学予約でお問い合わせいただくか、直接元町店(0037-6001-01535)までご連絡ください。
-
A. 可能です。LaDouceur西宮北口(AEY4493076_11)周辺の情報は、ピタットハウスの地域情報ブログ「街ピタ」や住みたい街の暮らしデータをご活用ください。
-
A. LaDouceur西宮北口(AEY4493076_11)の費用は、こちらよりお問い合わせいただくか、直接元町店(0037-6001-01535)までご連絡ください。
-
A. はい、可能です。賃貸希望物件リクエストをご利用ください。LaDouceur西宮北口(AEY4493076_11)に似た物件も合わせてご紹介させていただきます。